NewConstruction UnderBehandling Other

Ny støttemur med dispensasjoner i Furusvingen 15, Sætre

📍 Furusvingen 15 , 3475 SÆTRE

Nøkkelinfo

Sakstype
Nybygg
Bygningstype
Other
Kommune
Asker
Fylke
Akershus
Gnr / Bnr
357 / 573
Saksnummer
24/2597
Fase
Under behandling

Om byggesaken

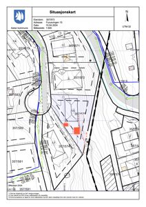
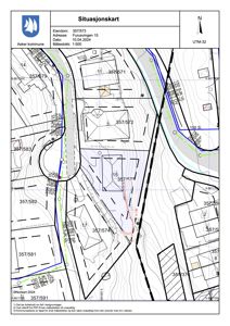
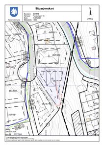
Ny støttemur skal oppføres på eiendommen Furusvingen 15 i Sætre, Asker kommune, som erstatning for en eksisterende mur fra 1981 som har sprekkdannelser og delvis ufagmessig utførelse. Muren varierer i høyde opp til 3-4 meter og skal plasseres innenfor eiendomsgrensen, med deler som rives der muren står på kommunal grunn. Tiltaket inkluderer terrengfylling for å etablere bedre uteoppholdsarealer i et bratt terreng. Det er gitt dispensasjoner fra kommuneplanens bestemmelser om murens høyde og regulert byggegrense. Prosjektet omfatter også sikringstiltak som drenering, bortleding av overvann, sikkerhetsnett og periodisk nivellering for overvåking av stabilitet. Arbeidet er prosjektert og utføres av fagkyndige med ansvarsrett, og det foreligger rammetillatelse og igangsettingstillatelse.

Produkter og materialer

Mur Støttemur i murt stein

🧱 Stein murt med mørtel, delvis fundamentert på berg og løsmasser

Muren varierer i høyde opp til 3-4 meter, med sprekk på ca. 10 cm bredde, skal rives og gjenoppføres innenfor eiendomsgrense, fundamentert på berg eller pelefundamentert såle med vertikale og skrå peler

Ny støttemur som erstatter eksisterende mur med stabilitetsproblemer og ufagmessig utførelse, inkludert fundamentering på berg eller pelefundamentert såle

Kontroll Nivellering og overvåking

Periodiske nivelleringer med målepunkter i topp og bunn av mur, på bergfundamenterte deler og på kjellervegg for å overvåke stabilitet

Overvåking av murens og boligens stabilitet for å avdekke eventuelle deformasjoner

Mur Sikringstiltak på mur

🧱 Sikkerhetsnett, mørtel, armeringsjern

Montering av sikkerhetsnett for å hindre nedfall av stein, lokal utbedring av sprekk med mørtel og eventuelt innslissing av armeringsjern

Sikring av mur i område med sprekk for å forhindre steinras

Grunnarbeid Terrengfylling og drenering

Terrengfylling for uteoppholdsareal, drenering, bortleding av overvann med rør og drensrenner, etablering av drenshull i murens bunn

Grunnarbeid knyttet til terrengfylling og drenering for stabilitet og funksjon av støttemur og uteareal

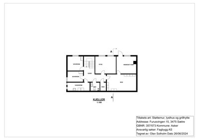
Plantegning

Hovedbygg 0.0 m²

Etasje 0 0.0 m²

Rom Areal Vinduer Dører
Soverom 001 0.0 m² 1 1
Soverom 002 0.0 m² 1 1
Vaskerom 003 0.0 m² 1 1
Gang 004 0.0 m² 0 3
Stue 005 0.0 m² 2 2
Innredet rom 006 0.0 m² 1 1
Bad 007 0.0 m² 0 1
Bod 008 0.0 m² 0 1
Bod 009 0.0 m² 0 1

Enebolig 240.4 m²

Etasje 1 120.2 m²

Rom Areal Vinduer Dører
Stue 101 20.9 m² 2 1
Kjøkken 102 6.8 m² 1 1
Bad 103 7.7 m² 0 1
Sov. 1 104 7.1 m² 1 1
Sov. 2 105 8.3 m² 1 1
Sov. 3 106 9.6 m² 1 1
Vask 107 7.2 m² 0 1
Bod 108 5.9 m² 0 1
Gang 109 12.1 m² 0 2

Etasje 2 120.2 m²

Rom Areal Vinduer Dører
Stue 201 40.3 m² 3 1
Kjøkken 202 13.7 m² 1 1
Soverom 203 14.6 m² 1 1
Hall 204 11.9 m² 0 2
Vask 205 1.9 m² 0 1
Bad 206 1.9 m² 0 1
Gang 207 14.7 m² 0 1
Vask 208 0.0 m² 0 1

Etasje 0 0.0 m²

Rom Areal Vinduer Dører

Fasader

Lysthus

Vest
Materiale
Tre
Taktype
Saltak
Høyde
3.2 m
Mønehøyde
4.9 m
Vinduer
5
Dører
1
Synlige etasjer
1
Øst
Materiale
Tre
Taktype
Saltak
Høyde
3.2 m
Mønehøyde
4.9 m
Vinduer
10
Dører
1
Balkonger
2
Synlige etasjer
2
Sør
Materiale
Tre
Taktype
Saltak
Takmat.
Tegl
Høyde
2.4 m
Mønehøyde
4.2 m
Vinduer
1
Dører
1
Balkonger
1
Synlige etasjer
2
Nord
Materiale
Tre
Taktype
Saltak
Takmat.
Tegl
Høyde
2.4 m
Mønehøyde
4.2 m
Vinduer
1
Dører
1
Synlige etasjer
2

Hus

Ukjent
Taktype
Saltak
Høyde
2.5 m
Vinduer
0
Dører
0
Balkonger
2
Synlige etasjer
1

Garasje

Vest
Materiale
Tre
Taktype
Saltak
Høyde
2.1 m
Mønehøyde
3.0 m
Vinduer
0
Dører
1
Synlige etasjer
1

Hovedbygg

Øst
Materiale
Tre
Taktype
Saltak
Høyde
3.2 m
Mønehøyde
5.0 m
Vinduer
10
Dører
1
Balkonger
1
Synlige etasjer
2

Hendelser

10.04.2026 357/573 Furusvingen 15 - Etterspør svar på brev datert 07.10.2025
08.10.2025 357/573 Furusvingen 15 - Ber om redegjørelse
07.10.2025 357/573 Furusvingen 15 - Spørsmål er om godkjent metode er fulgt og at det er søkt med tilstrekkelig tilgjengelig støttedokumentasjon
20.06.2025 357/573 Furusvingen 15 - Igangsettingstillatelse for riving og gjenoppføring av forstøtningsmur
12.06.2025 357/573 Furusvingen 15 - Søknad om igangsettingstillatelse
09.05.2025 357/573 Furusvingen 15 - Rammetillatelse til forstøtningsmur med dispensasjoner
05.03.2025 357/573 Furusvingen 15 - E-postkorrespondanse
05.03.2025 357/573 Furusvingen 15 - Kommentar til del av muren som står på kommunal grunn
28.02.2025 357/573 Furusvingen 15 - Avklaring om murens utforming i forbindelse med nabovarsling
28.02.2025 357/573 Furusvingen 15 - Svar på merknader til nabovarsel
28.02.2025 357/573 Furusvingen 15 - Merknader til nabovarsel
28.02.2025 357/573 Furusvingen 15 - Tilbakemelding på svar på merknader til nabovarsel
26.02.2025 357/573 Furusvingen 15 - Supplering av søknad
10.01.2025 357/573 Furusvingen 15 - Ufullstendig søknad nr. 2 om forstøtningsmur
02.12.2024 357/573 Furusvingen 15 - Supplering av søknad
30.09.2024 357/573 Furusvingen 15 - Ufullstendig søknad - Forstøtningsmur
19.07.2024 357/573 Furusvingen 15 - Bekreftelse på at vi har mottatt din søknad
15.07.2024 357/573 Furusvingen 15 - Søknad om forstøtningsmur