Facade
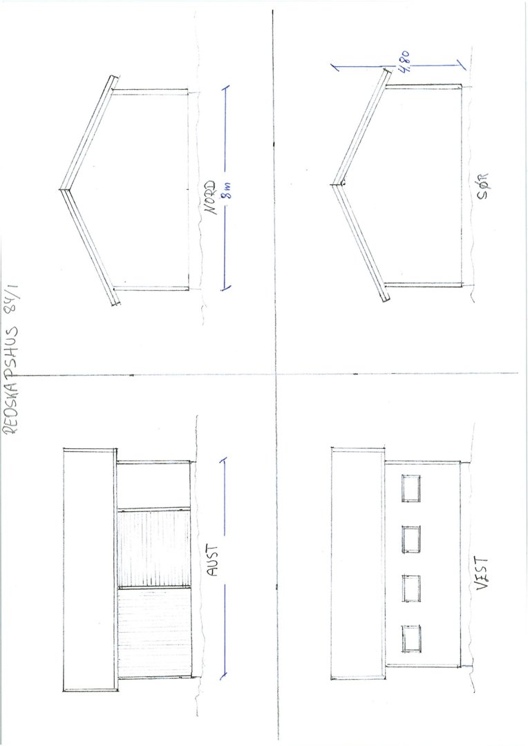
Fasadetegning som viser bygningens utseende fra fire sider (Nord, Sør, Aust og Vest) med mål og vindusoppsett.
1 / 3
NewConstruction
Soeknad
Other
Nyoppføring av redskapshus på Gardavegen 41B
📍 Gardavegen 41A , 6868 GAUPNE
Nøkkelinfo
- Sakstype
- Nybygg
- Bygningstype
- Other
- Kommune
- Luster
- Fylke
- Vestland
- Gnr / Bnr
- 84 / 1
- Saksnummer
- 2026/1202
- Fase
- Søknad
Om byggesaken
Ny frittliggende redskapshus (uthus) med saltak på Gardavegen 41B. Bygget har to etasjer med gesimshøyde på 8 meter, saltak på nord- og sørfasade, og inneholder fire vinduer på vestfasaden, en dør på østfasaden samt garasjeport på østfasaden. Bygget er under 70 m² og er ikke beregnet for bolig eller overnatting. Det er tegnet situasjonskart og fasadetegninger som viser plassering og utforming.
Produkter og materialer
Garasjeport
Garasjeport
Antall: 1
Garasjeport på østfasaden
Tømrer
Bygging av uthus
Tømrerarbeid for oppføring av redskapshus
Dører
Ytterdør
Antall: 1
En dør på østfasaden
Grunnarbeid
Fundamentering
Grunnarbeid for ny frittliggende bygning
Tak
Saltak
Antall: 1
Saltak på uthusets nord- og sørfasade
Vinduer
Fasadevindu
Antall: 4
Fire vinduer på vestfasaden
Fasader
Uthus
Nord
- Taktype
- Saltak
- Høyde
- 8.0 m
- Vinduer
- 0
- Dører
- 0
- Synlige etasjer
- 1
Sør
- Taktype
- Saltak
- Vinduer
- 0
- Dører
- 0
- Synlige etasjer
- 1
Øst
- Vinduer
- 0
- Dører
- 1
- Synlige etasjer
- 2
Vest
- Vinduer
- 4
- Dører
- 0
- Synlige etasjer
- 2
Hendelser
16.04.2026
Søknad om tiltak på gbnr. 84/1 - Gardavegen 41B - Redskapshus