NewConstruction UnderBehandling Other

Ny teknisk utstyrshytte ved Glomboveien 18, Fredrikstad

📍 Glomboveien 18 , 1678 KRÅKERØY

Nøkkelinfo

Sakstype
Nybygg
Bygningstype
Other
Bruksareal
6 m²
Kommune
Fredrikstad
Fylke
Østfold
Gnr / Bnr
424 / 439
Saksnummer
2026/6560
Fase
Under behandling

Om byggesaken

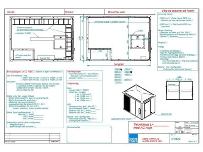
Ny teknisk utstyrshytte (nodehytte) på ca. 5,8 m² med en høyde på ca. 2,97 meter skal etableres ved Glomboveien 18 i Fredrikstad kommune. Hytten bygges med stålplatekledning i mørk grå RAL 7021 og har tekniske installasjoner som varmeovn, lysarmatur, stikkontakter og mulighet for varmepumpe. Den inneholder teknisk utstyr for fibernett, inkludert rack, UPS og batterier. Hytten plasseres med ca. 6 meter avstand til vei, ca. 19 meter til nærmeste bygg og ca. 3 meter til nabogrense, utenfor frisiktsonen for å ivareta trafikksikkerhet. Bygget har én dør og ingen vinduer.

Produkter og materialer

Elektro El-installasjon

Varmeovn 800W med termostat, lysarmatur 2x28W, dobbel stikkontakt ved dør, stikkontakt for AC, ekstrautstyr som magnetkontakt, brannvarsler med konverter, jordfeilautomat 16A og 32A

Elektriske installasjoner i teknisk hytte

Grunnarbeid Fundamentering

Fundamentering for teknisk hytte på tomt

Grunnarbeid for oppføring av teknisk hytte

Dører Ytterdør

Antall: 1

Dør med kabelbro på dørvegg, mulighet for elektronisk låsing

Inngangsdør til teknisk hytte

Gulv Antistatisk gulvbelegg

Antistatisk gulvbelegg i teknisk hytte

Gulvbelegg for teknisk rom

VVS Varmepumpe

Antall: 1

Panasonic KJT - Z35-TKEA med kommunikasjonskort

Varmepumpe for oppvarming av teknisk hytte

Fasade Stålplatekledning

🧱 Stålplater, mørk grå RAL 7021

Standard stålplatekledning i mørk grå RAL 7021

Ytterkledning av teknisk hytte

Tømrer Bygging av teknisk hytte

Oppføring av teknisk hytte med dør, kledning og tak

Tømrerarbeid for bygging av teknisk hytte

Annet Teknisk utstyr

Rack (høyde 1800-2200 mm), UPS 4kW 48V DC, batterier 155 Ah og 190 Ah, likeretter 2kW, aggregatkontakt 32A

Teknisk utstyr for fibernett i hytten

Plantegning

Teknikkhus 5.8 m²

Etasje 1 5.8 m²

Rom Areal Vinduer Dører
Teknikkrom 101 5.8 m² 0 1

Hendelser

20.04.2026 Anmodning om ny uttalelse - Eiendom 424/439 - Etablering av utstyrshytte (Nodehytte) - Glombo
17.04.2026 Tilleggsopplysninger angående plassering av nodehytte for Vikenfiber
20.03.2026 Anmodning om ytterligere dokumentasjon - Utstyrshytte (Nodehytte) - Eiendom 424/439
10.03.2026 Uttalelse - Søknad uten ansvarsrett - Eiendom 424/439
05.03.2026 Anmodning om uttalelse - Søknad uten ansvarsrett - Eiendom 424/439
26.02.2026 Søknad om etablering av utstyrshytte (Nodehytte) for Viken Fiber - eiendom 424/439 - Glombo