NewConstruction UnderBehandling Other

Ny pumpestasjon med byggtekniske installasjoner i Hadelandsveien 805, Nittedal

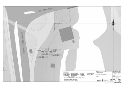
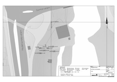
📍 Hadelandsveien 805 , 1482 NITTEDAL

Nøkkelinfo

Sakstype
Nybygg
Bygningstype
Other
Bruksareal
16 m²
Kommune
Nittedal
Fylke
Akershus
Gnr / Bnr
100 / 13
Saksnummer
25/03991
Fase
Under behandling

Om byggesaken

Ny pumpestasjon plassert på kommunens tomt i Hadelandsveien 805, Nittedal kommune, fundamentert på betongplate med høy ringmur for å sikre teknisk utstyr mot 200-års flom. Bygget har et tradisjonelt utseende med trepanel og saltak, og er tilpasset eksisterende kulturmiljø. Grunnforholdene består hovedsakelig av friksjonsmasser og fyllmasser med dokumentert bæreevne og stabilitet. Tiltaket inkluderer riving av eksisterende overbygg til pumpestasjonen og etablering av ny pumpehus med tilhørende rørledninger. Miljøoppfølgingsplan og geotekniske rapporter dokumenterer tiltakets sikkerhet og miljøhensyn, inkludert håndtering av forurenset grunn og kantvegetasjon langs vassdrag.

Produkter og materialer

Betong Fundamentplate

🧱 Betongplate 60 cm tykkelse

Antall: 1

Fundamentering på kote +110, dimensjonert for 200-års flom og oppdriftssikring

Betongplate som fundament for pumpestasjon

Geoteknikk Geoteknisk prosjektering og kontroll

Geoteknisk vurdering av områdestabilitet, bæreevne og setninger, uavhengig kontroll

Geoteknisk rådgivning og kontroll

VVS Pumpesystem og rørledninger

Eksisterende sump beholdes, ny pumpestasjon kobles til eksisterende sumpekum, pumpeledning tilpasses

Pumpesystem og tilhørende rørledninger

Miljø Miljøoppfølgingsplan

Miljøoppfølgingsplan med tiltak for håndtering av forurenset grunn, kantvegetasjon, støy, støv, avfall og overvann

Plan for miljøhensyn i bygge- og anleggsfase

Riving Riving av eksisterende overbygg

Antall: 1

Riving av eksisterende overbygg til pumpestasjon, håndtering av rivningsavfall i henhold til TEK17

Riving av eksisterende bygningsdel

Grunnarbeid Fjerning av matjord og etablering av avretningslag

🧱 Pukk 8-16 mm, fiberduk klasse 3

Fjerning av matjord og etablering av avretningslag med isolasjon mot stedlige masser

Grunnarbeid for fundamentering

Kledning Gjenbruk av eksisterende overbygg

🧱 Trepanel

Antall: 1

Gjenbruk av eksisterende overbygg som nytt overbygg til pumpestasjon

Materialer til fasade og overbygg

Fasade Trepanel og saltak

🧱 Trepanel, takstein

Antall: 1

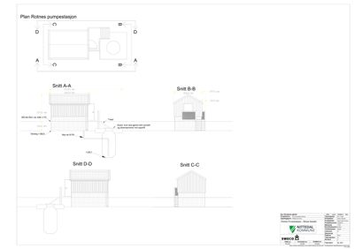
Tradisjonell utforming med saltak, tilpasset kulturmiljø rundt Rotnes bruk

Fasade og tak på pumpestasjon

Overvann Oppsamling og rensing

Oppsamling og rensing av overvann før utløp til terreng eller resipient, overvann må ikke ledes urenset til kommunalt nett

Overvannshåndtering under anleggsfase

Fasader

Pumpestasjon

Ukjent
Materiale
Betong
Taktype
Flatt tak
Høyde
3.3 m
Vinduer
0
Dører
0
Synlige etasjer
1

Hendelser

10.04.2026 25/03991-6 Søknad om igangsettingstillatelse - 14/327 - Hadelandsveien 805
02.02.2026 25/03991-2 Rammetillatelse med dispensasjon - 14/327 og 100/13 - Hadelandsveien 805 - Byggteknisk installasjoner – Rotnes pumpehus
22.01.2026 25/03991-4 Supplering av søknad - 14/327 - Hadelandsveien 805
12.01.2026 25/03991-3 Midlertidig svar - Søknad om rammetiltak - 14/327 og 100/13 - Rotnes pumpestasjon - Byggtekniske installasjoner
09.12.2025 25/03991-1 Søknad om rammetillatelse - 14/327 - Hadelandsveien 805 og 100/13 - Byggtekniske installasjoner - Nytt anlegg