NewConstruction UnderBehandling Other

Riving og nytt driftsbygg på Siksjølia 172, Os

📍 Holla, Siksjølia 172 , 2555 TUFSINGDALEN

Nøkkelinfo

Sakstype
Nybygg
Bygningstype
Other
Bruksareal
588 m²
Boenheter
1
Kommune
Os
Fylke
Innlandet
Gnr / Bnr
90 / 1
Saksnummer
2026/413
Fase
Under behandling

Om byggesaken

Prosjektet omfatter riving av en eksisterende låve/fjøs oppført i 1849 med hovedombygging i 1962, som har en grunnflate på ca. 242 m² og et bruksareal på 350 m² over to etasjer. Den nye bygningen skal oppføres på samme tomt med et bruksareal på 588 m² fordelt på to etasjer og kjeller, og vil inneholde spisesal med kjøkken, toaletter, leilighet og oppholdsrom/spa. Bygget har bærende yttervegger av natursteinsmur i første etasje og bindingsverkskonstruksjon med låvepanel i andre etasje, med torvtak og kobbertakrenner. Det er gjennomført omfattende miljøkartlegging som avdekker moderate mengder asbest, sinkmaling og EE-avfall som må håndteres som farlig avfall ved riving. Ombruk av natursteinsmur, trekonstruksjoner, kledning, dører, vinduer og kryssfinerplater er planlagt. Brannsikkerheten ivaretas med brannalarm kategori 1, brannceller og slokkeutstyr. Tiltaket har fått dispensasjon fra fredning og er under behandling med flere involverte aktører og kontrollører.

Produkter og materialer

Tømrer Etasjeskiller

🧱 Ubehandlet trevirke

Antall: 165

Etasjeskiller mellom 1. og 2. etasje i låven, ca. 165 m2, demonteres og lagres for ombruk.

Demontering og gjenbruk av etasjeskiller i trekonstruksjon.

VVS Varme- og kuldeinstallasjoner

Varme- og kuldeinstallasjoner i nytt bygg.

Installasjon av varme- og kuldeanlegg.

Riving Miljøsanering og riving av eksisterende låve

Antall: 1

Omfatter asbestholdige eternittplater på tak ca. 325 m2, farlig avfall som sinkmaling på pussede vegger, brannslokningsapparat, EE-avfall, og miljøkartlegging med håndtering av farlig avfall.

Miljøsanering og riving av eksisterende låve med håndtering av helse- og miljøfarlige stoffer som asbest, sinkmaling og EE-avfall.

Grunnarbeid Veg- og grunnarbeider

Veg- og grunnarbeider i forbindelse med byggeprosjektet.

Grunnarbeider for bygg og anlegg.

Ventilasjon Ventilasjon- og klimainstallasjoner

Ventilasjons- og klimainstallasjoner i nytt bygg.

Installasjon av ventilasjons- og klimaanlegg.

Dører Ytterdør i tre

🧱 Tre

Antall: 1

Gammel tofløyet ytterdør i vindfang, vurdert som historisk verdifull og egnet for ombruk som innerdør.

Demontering, emballering og gjenbruk av gammel ytterdør som innerdør.

Tak Taktekkingsarbeid

Taktekkingsarbeid med torvtak og duk.

Utførelse av taktekking.

Tak Torvtak med helsveist duk

🧱 Torv, duk

Antall: 1

Nytt torvtak med helsveist duk og tradisjonell avslutning ved takfot og gavler.

Oppføring av nytt torvtak med tradisjonell utførelse.

Pipe Natursteinspipe

🧱 Naturstein

Antall: 1

Pipe over tak mures opp eller forblendes med stedegen naturstein.

Oppføring av pipe i naturstein eller forblending med naturstein.

Tømrer Montering av glasskonstruksjoner og fasadekledning

Montering av glasskonstruksjoner og fasadekledning i nytt bygg.

Fasadearbeider med glass og kledning.

Mur Natursteinsmur

🧱 Naturstein

Antall: 200

Bærende yttervegg av natursteinsmur i 1. etasje, ca. 200 m2, skal plukkes ned og bygges opp igjen med stein fra eksisterende mur og innermur, spekket med leirmørtel uten bærende fuger.

Nedplukking og gjenoppbygging av bærende natursteinsmur med tradisjonelle metoder og materialer.

Betong Plasstøpte betongkonstruksjoner

🧱 Betong

Plasstøpte betongkonstruksjoner for fundament og bærende elementer i nytt bygg.

Fundamentering og bærende betongkonstruksjoner.

Vinduer Åpningsvindu i tre

🧱 Tre

Antall: 1

Hvit trevinduer i vindfang, produsert 2023, demonteres og lagres for ombruk.

Demontering og gjenbruk av nyere åpningsvindu i tre.

Terrasse Låvebru i furu

🧱 Furu

Antall: 1

Låvebrufot tørrmures med stedegen naturstein, låvebru bygges i furu av god kvalitet med smal årringbredde og høy densitet.

Oppføring av låvebru i furu med tradisjonell tørrmuring av brufot.

Elektro Brannalarmanlegg

Brannalarmanlegg kategori 1 etter NS3960 installeres i bygget.

Installasjon av brannalarmanlegg.

Tømrer Trekonstruksjoner - sperrebukkonstruksjoner

🧱 Ubehandlet trevirke

Sperrebukkonstruksjoner av grovt firkantvirke i 2. etasje (låven), dimensjoner fra 2 tom til 8 tom, vurdert som meget ombrukbart til ikke bærende bygningsdeler.

Demontering, rensing for asbeststøv og gjenbruk av trekonstruksjoner i låven.

VVS Sanitærinstallasjoner

Sanitærinstallasjoner i nytt bygg, inkludert toaletter, bad, spa og tekniske rom.

Installasjon av sanitærutstyr og rør.

Takrenner Takrenner i kobber

🧱 Kobber

Takrenner montert på oversiden av torvhaldstokk med ordinære nedløp i hver ende.

Montering av kobbertakrenner i nytt bygg.

Elektro LED-armatur

🧱 Plast og metall

Antall: 1

LED-armatur i vindfang, demonteres, testes og lagres for ombruk.

Demontering og gjenbruk av LED-armatur.

Innvendig overflate Innvendige kryssfinerplater

🧱 Kryssfiner

Antall: 10

Innvendige ubehandlede kryssfinerplater i himling og vegger i vindfang, ca. 10 stk. 1200x2400 mm, demonteres og lagres for ombruk.

Demontering og gjenbruk av innvendige kryssfinerplater.

Fasade Utvendig låvepanel

🧱 Tre

Antall: 250

Rød låvepanel i varierende bredde, ca. 250 m2, rives av skånsomt og lagres for ombruk.

Skånsom demontering og gjenbruk av utvendig låvepanel.

Innmåling Innmåling og utstikking av tiltak

Innmåling og utstikking for byggeprosjektet.

Geometrisk kontroll og oppmåling.

Grunnarbeid Miljøsanering og riving

Antall: 1

Miljøsanering med håndtering av farlig avfall, riving av eksisterende konstruksjoner, og grunnarbeider for nytt fundament.

Miljøsanering, riving og grunnarbeider for nytt bygg.

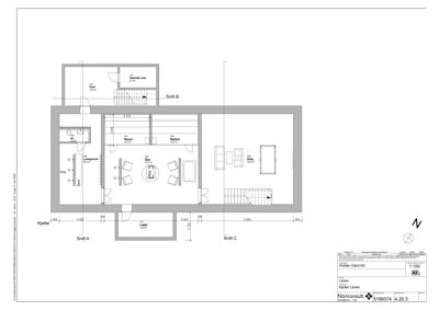
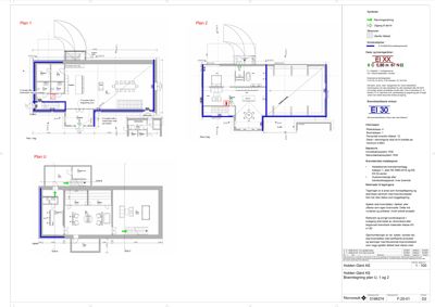
Plantegning

Enebolig 90.1 m²

Etasje 2 90.1 m²

Rom Areal Vinduer Dører
Stue 201 35.2 m² 2 1
Kjøkken 202 25.0 m² 1 1
Sov 203 15.0 m² 1 1
Bad 204 10.0 m² 0 1
Garderobe 205 5.0 m² 0 1

Etasje 0 0.0 m²

Rom Areal Vinduer Dører
Kjøkken 001 0.0 m² 0 1
Stue 002 0.0 m² 1 1
Gang 003 0.0 m² 0 1
Bad 004 0.0 m² 0 1
Toalett 005 0.0 m² 0 1
Vaskerom 006 0.0 m² 0 1
Gang 007 0.0 m² 0 1
Kjellfrys 103 0.0 m² 0 0
Disp 106 0.0 m² 0 0
Toalett 218 0.0 m² 0 0
Toalett 219 0.0 m² 0 0
Vindfang 217 0.0 m² 0 0
Kjøkken 216 0.0 m² 0 0
Sal 215 0.0 m² 0 0
Peis 214 0.0 m² 0 0

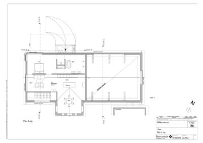
Etasje 1 0.0 m²

Rom Areal Vinduer Dører
Stue 101 0.0 m² 2 1
Kjøkken 102 0.0 m² 0 1
Gang 103 0.0 m² 0 1
Bad 104 0.0 m² 0 1
Toalett 105 0.0 m² 0 1
Vaskerom 106 0.0 m² 0 1
Gang 107 0.0 m² 0 1
Opphold 222 0.0 m² 0 0
Stue 221 0.0 m² 0 0
Sov 220 0.0 m² 0 0
Gardrobe 219 0.0 m² 0 0
Bad 218 0.0 m² 0 0
Kjøkken 217 0.0 m² 0 0
Spis 216 0.0 m² 0 0
Peis 215 0.0 m² 0 0

Kjeller 230.1 m²

Etasje 0 230.1 m²

Rom Areal Vinduer Dører
WC 108 3.4 m² 0 1
Lomperom 206 30.2 m² 0 1
Trim 113 19.0 m² 0 1
Teknisk rom 114 8.7 m² 0 1
Steam 107 12.2 m² 0 1
Badstu 106 12.8 m² 0 1
Spa 207 51.4 m² 0 1
Disp. 208 76.5 m² 0 1
Lager 112 12.5 m² 0 1

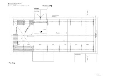
Fjøs 194.0 m²

Etasje 2 194.0 m²

Rom Areal Vinduer Dører
Fjøslem Fjøslem 194.0 m² 0 0

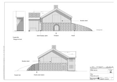
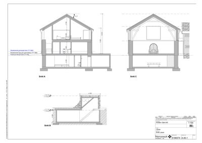
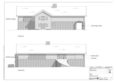
Fasader

Enebolig

Sør
Materiale
Tre
Taktype
Saltak
Vinduer
5
Dører
1
Synlige etasjer
2
Nord
Materiale
Tre
Taktype
Saltak
Vinduer
0
Dører
1
Synlige etasjer
1
Øst
Materiale
Mur
Taktype
Saltak
Vinduer
4
Dører
1
Balkonger
1
Synlige etasjer
2
Vest
Materiale
Mur
Taktype
Saltak
Vinduer
1
Dører
1
Balkonger
1
Synlige etasjer
2

Hendelser

22.04.2026 Svar på orientering om saksbehandling og tidsbruk vedr. søknad om riving av driftsbygning, og oppføring av driftsbygning med annen bruk, men på samme tomt.
21.04.2026 Orientering om saksbehandling og tidsbruk vedr. søknad om riving av driftsbygning, og oppføring av driftsbygning med annen bruk, men på samme tomt.
20.04.2026 Uttalelse - byggesak - riving av fjøs og oppføring av nytt gbnr. 90/1 - Siksjølia 172 i Os
15.04.2026 Oversendelse av søknad, til uttalelse, - Riving av fjøs og oppføring av nytt på samme tomt, GID 3430_90/1, Siksjølia 172 i Os kommune
14.04.2026 90/1 - Låven, Holla - Søknad om tillatelse - Revidert brannotat
30.03.2026 Siksjølia 172 Søknad om tillatelse i ett trinn 90/1