NewConstruction UnderBehandling Other

Ny ridehall på Høyliveien 2, Aurskog

📍 Høyliveien 2 , 1930 AURSKOG

Nøkkelinfo

Sakstype
Nybygg
Bygningstype
Other
Bruksareal
1,964 m²
Kommune
Aurskog-Høland
Fylke
Akershus
Gnr / Bnr
174 / 10
Saksnummer
24/04544
Fase
Under behandling

Om byggesaken

Ny ridehall på 1964 m² BRA med ringmurfundamentering, plassert på eiendom Høyliveien 2 i Aurskog. Bygget har saltak og flatt tak, med fasadekledning i tre og farger som skal gli inn i terrenget. Ridehallen er tilknyttet en eksisterende utendørs ridebane og skal brukes til privat dressurridning, opptrening av hester etter veterinærbehandling, og veterinærvirksomhet. Bygget har 7 vinduer på nordfasaden, 3 på østfasaden, 1 dør på vestfasaden og garasjeport på østfasaden. Det bygges på et område med mye fjell i dagen, og uten støpt dekke for enklere tilbakeføring. Det er ikke planlagt vann eller kloakk til bygget, men strøm tilføres fra eksisterende anlegg. Det er lagt vekt på minimal miljøpåvirkning og ivaretakelse av landbruksinteresser. Trafikkøkning vurderes som minimal.

Produkter og materialer

Tømrer Bygging av ridehall

🧱 Tre og stål (bærende konstruksjoner)

Bærende stålkonstruksjoner monteres av REDEM AS

Tømrerarbeid og montering av bærende konstruksjoner

Fasade Trepanel

🧱 Tre

Fasadekledning i farger som blender inn i terrenget

Fasade i tre med fargevalg for minimal visuell påvirkning

Elektro Strømtilførsel

Strøm tilføres fra eksisterende anlegg ved ridebane

Elektrisk tilkobling for belysning og utstyr

Terrasse Uteområde oppgradering

Planlagt planting av 30-50 trær og busker i uteområdet

Oppgradering av uteområde med beplantning

Betong Ringmur og fundamentering

🧱 Betong

Ringmur og fundamentering utføres av GREEN ADVISERS AS

Betongarbeid for fundamentering

Vinduer Fasadevindu

🧱 Tre/aluminium ukjent

Antall: 10

7 vinduer på nordfasade, 3 vinduer på østfasade

Fasadevinduer for naturlig lysinnslipp

Dører Ytterdør og garasjeport

Antall: 2

1 dør på vestfasade, 1 garasjeport på østfasade

Ytterdør og garasjeport for adkomst

Maling Fasademaling

Fasadekledning males i farger som blender inn i terrenget

Maling for fasade i naturlige farger

VVS Ingen vann eller kloakk

Ingen vann- eller kloakktilkobling planlagt

Ingen vann- eller avløpsinstallasjoner

Tak Saltak og flatt tak

Saltak på tre fasader, flatt tak på nordfasade

Tak med kombinasjon av saltak og flatt tak

Grunnarbeid Ringmur

🧱 Betong

Bygges på ringmur for enklere tilbakeføring

Ringmurfundamentering uten støpt dekke

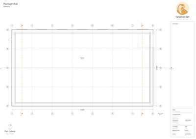
Plantegning

Ridehall 1,964.2 m²

Etasje 1 1,964.2 m²

Rom Areal Vinduer Dører
Ridebane 854.7 m² 0 0
Ridebane 854.7 m² 0 0
Ridebane Ridebane 854.7 m² 0 0
Ridebane 854.7 m² 0 0
Ridebane 854.7 m² 0 0

Fasader

Ridehall

Vest
Materiale
Tre
Taktype
Saltak
Vinduer
0
Dører
1
Synlige etasjer
1
Nord
Materiale
Tre
Taktype
Flatt tak
Vinduer
7
Dører
0
Synlige etasjer
1
Øst
Materiale
Tre
Taktype
Saltak
Vinduer
3
Dører
0
Synlige etasjer
1
Sør
Materiale
Tre
Taktype
Saltak
Vinduer
0
Dører
0
Synlige etasjer
1

Hendelser

17.04.2026 24/04544-12 174/10 Supplering av søknad
15.04.2026 24/04544-11 174/10 Foreløpig svar
10.04.2026 24/04544-10 174/10 Søknad om tillatelse til tiltak ett trinn
06.02.2025 24/04544-9 174/10 Dispensasjon fra LNF-formålet i kommuneplanen for oppføring av ridehall
27.01.2025 24/04544-8 174/10 Skriftlig redegjørelse
13.01.2025 24/04544-7 174/10 Anmodning om tilbakemelding på mottatte uttalelser
09.01.2025 24/04544-6 174/10 Uttalelse til søknad om dispensasjon for oppføring av ridehall
19.12.2024 24/04544-5 174/10 Uttalelse til søknad om dispensasjon for oppføring av ridehall
02.12.2024 24/04544-4 174/10 Oversendelse for uttalelse - søknad om dispensasjon fra LNF-formålet i kommuneplanen - nybygg ridehall
29.11.2024 24/04544-3 174/10 Søknad om dispensasjon
13.11.2024 24/04544-2 174/10 Foreløpig svar
12.11.2024 24/04544-1 174/10 Søknad om tillatelse til tiltak uten ansvarsrett