NewConstruction Ferdigattest Other

Ny avløpspumpestasjon med infrastruktur i Innfartsveien, Øksnes

📍 Innfartsveien 16 , 8430 MYRE

Nøkkelinfo

Sakstype
Nybygg
Bygningstype
Other
Bruksareal
10 m²
Kommune
Øksnes
Fylke
Nordland - Nordlánnda
Gnr / Bnr
64 / 369
Saksnummer
2024/104
Fase
Ferdigattest

Om byggesaken

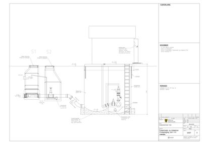
Ny avløpspumpestasjon oppføres på eiendom 64/369 i Innfartsveien, Øksnes kommune. Prosjektet inkluderer oppføring av en ny pumpestasjon med tilhørende spillvannskummer, riving av eksisterende pumpestasjon, samt etablering av ny avkjørsel, parkerings- og snuareal. Pumpestasjonen er plassert innenfor industriområde og er tilpasset eksisterende terreng og infrastruktur. Det er foretatt nødvendige grunnarbeider, VA-ledningsarbeider og drenering i henhold til VA-norm. Prosjektet har gjennomgått dispensasjonsbehandling for ny avkjørsel og har fått godkjent endring av plassering av pumpestasjonen for å unngå konflikt med eksisterende hovedvannledning. Det er dokumentert at avrenning fra bygg føres til terreng, og det er etablert tilfredsstillende drenering. Prosjektet er gjennomført med ansvarlige foretak for prosjektering, utførelse og kontroll, og det foreligger ferdigattest.

Produkter og materialer

Miljø Avfallshåndtering

Avfall fra riving sortert og levert til godkjente mottak; plast, stål og trevirke gjenbrukt i sin helhet.

Miljøvennlig håndtering av avfall i henhold til avfallsplan og miljøsaneringsbeskrivelse.

HMS Personlig verneutstyr og sikkerhetsutstyr

🧱 Hjelm, verneklær, hørselvern, vernebriller, hansker, fallsikringsutstyr, kommunikasjonsutstyr

Intern opplæring og HMS-rutiner dokumentert, bruk av personlig verneutstyr iht. AML og forskrifter.

Sikkerhetsutstyr for alle ansatte på byggeplass og anlegg.

Elektro Elektrisk installasjon i pumpestasjon

Elektriske installasjoner i pumpestasjon i henhold til gjeldende normer og forskrifter.

Strømforsyning og kontrollsystemer for pumpestasjon.

VVS Avløpspumpestasjon og spillvannsledninger

🧱 PVC-rør SP160, SP250

Pumpestasjon med tørrkammer og våtkammer, lensepumper, spillvannsledninger i PVC, kummer med dimensjoner opp til ø2400 mm.

Installasjon av ny avløpspumpestasjon med tilhørende spillvannsledninger og kummer.

Grunnarbeid Graving og planering

Graving av grøfter, planering og plastring i henhold til VA-norm og godkjente sjekklister for grunnarbeider og utvendige VA-arbeider.

Grunnarbeider for etablering av pumpestasjon, spillvannskummer, avkjørsel, parkerings- og snuareal.

Riving Eksisterende avløpspumpestasjon

Antall: 1

Riving og sanering av eksisterende pumpestasjon på eiendommen.

Fjerning av gammel pumpestasjon for å gi plass til ny.

Fasade Avkjørsel, parkerings- og snuareal

🧱 Asfalt, grus, pukk

Opparbeidelse av ny avkjørsel med drenering via 30 cm stikkrenne i grøft, parkerings- og snuareal i henhold til godkjent plan.

Opparbeidelse av trafikkarealer tilknyttet pumpestasjonen.

Hendelser

16.04.2026 Valan pumpestasjon - Søknad om ferdigattest - tilleggsdokumentasjon
16.04.2026 Valan pumpestasjon - Søknad om ferdigattest
09.09.2024 Valan avløpspumpestasjon- søknad om endring av gitt tillatelse
09.09.2024 Valan avløpspumpestasjon- søknad om endring av gitt tillatelse - uttalelse fra Fylkeskommunen
09.09.2024 Endringsvedtak - Gbnr 64/369 - Valen - Avløpspumpestasjon
08.03.2024 Tillatelse til tiltak - Gbnr 64/369 - Valen - Avløpspumpestasjon
04.03.2024 Etterspurt dokumentasjon - Valan avløpspumpestasjon - Ett trinns søknad
05.02.2024 Tilbakemelding om mangler - Gbnr 64/369 - Valen - Avløpspumpestasjon
19.01.2024 Valan avløpspumpestasjon - Ett trinns søknad