NewConstruction UnderBehandling Other

Oppføring av fasadeskilt og carport/lager på klubbhus, Jotunvegen 8

📍 Jotunvegen 8 , 6884 ØVRE ÅRDAL

Nøkkelinfo

Sakstype
Nybygg
Bygningstype
Other
Bruksareal
230 m²
Kommune
Årdal
Fylke
Vestland
Gnr / Bnr
18 / 138
Saksnummer
2025/1588
Fase
Under behandling

Om byggesaken

Prosjektet omfatter oppføring av to permanente fasadeskilt på klubbhuset til Idrettslaget Jotun, med mål 6x1 meter, plassert på fasadene mot nord og vest. I tillegg bygges et tilbygg bestående av en carport på 114,9 m² og et lager på 104,4 m² i trekonstruksjon med asfalttekking på taket, plassert i tilknytning til eksisterende klubbhus. Bygget har to etasjer med saltak og flatt tak, og inkluderer balkonger og garasjeporter. Carporten skal brukes til parkering av minibuss og oppbevaring av utstyr, mens lagerdelen skal benyttes til oppbevaring av idrettsutstyr og driftsmateriell. Bygget er plassert mellom klubbhuset og Jotun stadion, med begrenset visuell påvirkning på omgivelsene. Det er søkt dispensasjon fra reguleringsplan for deler av arealet som skal benyttes til carport og lager.

Produkter og materialer

Fasade Tre kledning

🧱 Tre

Tre kledning på carport og lagerbygg

Fasademateriale for carport og lagerbygg

Vinduer Fasadevindu

Antall: 12

Vinduer på fasade vest (2), øst (4) og sør (6)

Vinduer i carport/lagerbygg

Tak Saltak og flatt tak

🧱 Asfalttekking

Saltak på carport og lager, flatt tak på deler av bygget

Taktekking for carport og lagerbygg

Dører Garasjeporter og dører

Antall: 3

Garasjeporter på fasade vest, øst og sør, samt dører til bod og carport

Adkomst og portløsninger for carport og lager

Trapper Innvendig trapp

Antall: 1

Innvendig trapp i bygget

Trapp mellom etasjer i carport/lagerbygg

Grunnarbeid Betongplate på grunn

🧱 Betong

Betongplate som fundament for carport og lagerbygg

Grunnarbeid og fundamentering

Bygningskonstruksjon Carport i trekonstruksjon

🧱 Trekonstruksjon, asfalt taktekking

Antall: 1

Carport på 114,9 m² med saltak, tilknyttet eksisterende klubbhus

Carport for parkering av minibuss og oppbevaring av utstyr

Fasade Fasadeskilt

🧱 Aluminium/plast eller tilsvarende

Antall: 2

Skilt med klubbens logo og navn, størrelse 6x1 meter, plassert på fasade mot nord og vest

To permanente fasadeskilt montert på klubbhusets fasader

Bygningskonstruksjon Lagerbygg i trekonstruksjon

🧱 Trekonstruksjon, asfalt taktekking

Antall: 1

Lager på 104,4 m² med saltak, tilknyttet eksisterende klubbhus

Lager for oppbevaring av idrettsutstyr og driftsmateriell

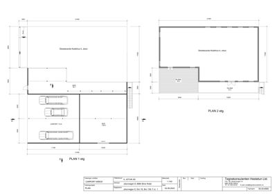
Plantegning

Carport/Bod 305.9 m²

Etasje 1 229.3 m²

Rom Areal Vinduer Dører
Carport CARPORT 114.9 m² 0 0
Bod BOD 104.4 m² 0 0

Etasje 2 76.6 m²

Rom Areal Vinduer Dører
Ny Balk Ny Balk 45.4 m² 0 0
Eks Balk Eks Balk 31.2 m² 0 0

Fasader

Carport/Bod

Vest
Materiale
Tre
Taktype
Saltak
Vinduer
2
Dører
2
Balkonger
1
Synlige etasjer
2
Nord
Materiale
Tre
Taktype
Flatt tak
Vinduer
0
Dører
0
Synlige etasjer
1
Øst
Materiale
Tre
Taktype
Saltak
Vinduer
4
Dører
1
Synlige etasjer
1
Sør
Materiale
Tre
Taktype
Flatt tak
Vinduer
6
Dører
1
Balkonger
1
Synlige etasjer
2

Hendelser

15.04.2026 Fråsegn til dispensasjonssøknad - oppføring av carport - gnr. 18 bnr. 138 - Jotunvegen - Årdal kommune
09.04.2026 Ber om uttale - Vurdering av hadsamingsmetode og planføresegner - Søknad om dispensasjon på rn 18 bnr 138, Jotunvegen 8, 6884 Øvre Årdal
16.03.2026 Søknad om tillatelse til tiltak - oppføring av carport og lager
16.03.2026 Søknad om dispensasjon fra arealplaner - tilkomst og aktivitetsareal
27.10.2025 Delegert vedtak 25/040 - Løyve til å føre opp fasadeskilt på klubbhus på gnr 18 bnr 138 fnr 1, Jotunvegen 8, 6884 Øvre Årdal
22.10.2025 Oppdatert søknadsskjema - oppføring av skilt
20.10.2025 Søknad om tillatelse til tiltak - oppføring av skilt