Rendering
3D-visualisering av en bolig med tilhørende utemiljø, svømmebasseng og garasje.
1 / 15
NewConstruction
Unknown
Other
Oppføring av basseng, lysthus og bod
📍 Kløfteneveien 4 , 1642 SALTNES
Nøkkelinfo
- Sakstype
- Nybygg
- Bygningstype
- Other
- Kommune
- Råde
- Fylke
- Østfold
- Gnr / Bnr
- 92 / 51
- Saksnummer
- 2025/9663
- Fase
- Unknown
Om byggesaken
Søknad om tillatelse i ett trinn for oppføring av basseng, lysthus og bod på eiendommen Kløfteneveien 4, med tilhørende dispensasjonssøknader og nabovarsler.
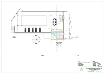
Plantegning
Bod 24.0 m²
Etasje 1 24.0 m²
| Rom | Areal | Vinduer | Dører |
|---|---|---|---|
| Bod 1 Bod 1 | 12.7 m² | 1 | 1 |
| Bod 2 Bod 2 | 15.6 m² | 1 | 1 |
Enebolig 173.1 m²
Etasje 1 173.1 m²
| Rom | Areal | Vinduer | Dører |
|---|---|---|---|
| Entré ENTRÉ | 5.1 m² | 0 | 1 |
| Kjøkken/spisestue KJØKKEN/SPISESTUE | 50.5 m² | 3 | 0 |
| Soverom 1 SOVEROM 1 | 11.1 m² | 1 | 1 |
| Soverom 2 SOVEROM 2 | 8.6 m² | 1 | 1 |
| Soverom 3 SOVEROM 3 | 8.6 m² | 1 | 1 |
| TV-stue TV-STUE | 18.8 m² | 3 | 0 |
| Gang GANG | 4.0 m² | 0 | 2 |
| Bad WC/D 1 | 12.1 m² | 0 | 1 |
| Vaskerom VASK | 6.8 m² | 0 | 1 |
| Toalett WC/D 2 | 4.9 m² | 0 | 1 |
| Vaskerom W-I-C | 6.7 m² | 0 | 1 |
| Entré 101 | 5.2 m² | 0 | 1 |
| Gang 102 | 3.6 m² | 0 | 2 |
| Stue/kjøkken 103 | 55.7 m² | 4 | 1 |
| Soverom 104 | 11.8 m² | 1 | 1 |
| Garderobe 105 | 7.0 m² | 0 | 1 |
| Bad 106 | 13.7 m² | 0 | 1 |
| Vaskerom 107 | 7.1 m² | 0 | 1 |
| Soverom 108 | 8.1 m² | 1 | 1 |
| Soverom 109 | 10.4 m² | 1 | 1 |
| TV-stue 110 | 26.0 m² | 2 | 1 |
| Bad 111 | 5.0 m² | 0 | 1 |
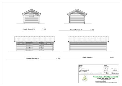
Fasader
Bod
Sørvest
- Materiale
- Tre
- Taktype
- Saltak
- Vinduer
- 1
- Dører
- 0
- Synlige etasjer
- 1
Nordøst
- Materiale
- Tre
- Taktype
- Saltak
- Vinduer
- 0
- Dører
- 0
- Synlige etasjer
- 1
Nordvest
- Materiale
- Tre
- Taktype
- Saltak
- Vinduer
- 2
- Dører
- 2
- Synlige etasjer
- 1
Sørøst
- Materiale
- Tre
- Taktype
- Saltak
- Vinduer
- 0
- Dører
- 0
- Synlige etasjer
- 1
Enebolig
Nordøst
- Materiale
- Tre
- Taktype
- Saltak
- Takmat.
- Tegl
- Vinduer
- 3
- Dører
- 1
- Synlige etasjer
- 1
Ukjent
- Materiale
- Tre
- Taktype
- Saltak
- Vinduer
- 6
- Dører
- 1
- Synlige etasjer
- 1
Hendelser
17.04.2026
Uttalelse til søknad om dispensasjon for oppføring av basseng - lysthus og bod - gnr 92 bnr 51 - Kløfteneveien 4
23.03.2026
Anmodning om uttalelse til dispensasjonssøknader - gnr 92 bnr 51 - Kløfteneveien 4
23.03.2026
Søknad om dispensasjon vedrørende plankrav
12.03.2026
Behov for tilleggsopplysning - Søknad i ett trinn - gnr 92 bnr 51 - Kløfteneveien 4
05.03.2026
Supplering av søknad - gnr 92 bnr 51 - Kløfteneveien 4
24.02.2026
Innvilgelse av utsatt svarfrist - Søknad i ett trinn - gnr 92 bnr 51 - Kløfteneveien 4
22.01.2026
Mangelbrev - Søknad om ett-trinns tillatelse - gnr 92 bnr 51 - Kløfteneveien 4
08.12.2025
Søknad om tillatelse i ett trinn - gnr 92 bnr 51 - Kløfteneveien 4