NewConstruction Rammetillatelse Other

Nytt teknisk bygg ved Nappstraumtunnelen, Myrlandsveien

📍 Myrlandsveien 11 , 8382 NAPP

Nøkkelinfo

Sakstype
Nybygg
Bygningstype
Other
Bruksareal
360 m²
Kommune
Flakstad
Fylke
Nordland - Nordlánnda
Gnr / Bnr
45 / 1
Saksnummer
24/399
Fase
Rammetillatelse

Om byggesaken

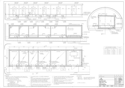
Nytt teknisk bygg på 360 m² grunnflate oppføres ved Nappstraumtunnelen i Myrlandsveien, Flakstad kommune. Bygget skal erstatte eksisterende teknisk bygg som rives, og inneholder funksjoner som mobilbasestasjon, radio/nettdrift, batterirom, UPS/automatikk, avspenning og nettstasjon. Bygget plasseres ca. 6,9 meter fra fylkesvei 7594 med dispensasjon fra byggegrense. Det etableres også antennemast, trafo og overvannsledning i tilknytning til bygget. Bygget er en del av en større oppgradering av tunnelen med fokus på sikkerhet og teknisk infrastruktur. Bygget har ingen vinduer, men flere dører, og er planlagt med ytterkledning i rustfritt stål på dører. Tiltaket er i hovedsak et teknisk anlegg knyttet til veg- og tunnelinfrastruktur.

Produkter og materialer

Betong Prefab betongelementer

🧱 Prefab betongelementer

Prefab betongelementer til teknisk bygg

Prefab betongelementer for konstruksjon av teknisk bygg

Grunnarbeid Tomtearbeid

Grunnarbeid for nytt teknisk bygg og overvannsledning

Grunnarbeid i dagsonen ved Napp for bygging av teknisk bygg og overvannsledning

Elektro Mobilbasestasjon og teknisk utstyr

Rom for mobilbasestasjon, radio/nettdrift, batteri, UPS, automatikk, avspenning og nettstasjon

Teknisk utstyr og installasjoner i bygget for tunneloppgradering

Riving Eksisterende bygg

Antall: 1

Riving av eksisterende teknisk bygg ved tunnelportalen

Riving av gammelt teknisk bygg for å gi plass til nytt bygg

Annet Antenne og trafo

Antall: 1

Etablering av antennemast og trafo i tilknytning til teknisk bygg

Teknisk infrastruktur knyttet til tunneloppgradering

Dører Ytterdører

🧱 Rustfritt stål

Antall: 6

Dører til seks rom i teknisk bygg, alle uten vinduer

Ytterdører til rom i teknisk bygg

VVS Overvannsledning

Ny overvannsledning fra portalområde til sjø

Etablering av overvannsledning i tilknytning til teknisk bygg

Fasade Ytterkledning

🧱 Rustfritt stål (ulakkert) på dører

Dører i ulakkert rustfritt stål, grå farge

Ytterkledning og dører i rustfritt stål for teknisk bygg

Plantegning

Teknisk bygg 360.0 m²

Etasje 1 360.0 m²

Rom Areal Vinduer Dører
Mobilbasestasjon 101 52.5 m² 0 1
Radio og netttitt 102 49.0 m² 0 1
Batteri 103 21.0 m² 0 1
Nettdrift / UPS / Automatikk 104 56.0 m² 0 1
Avspenning 105 70.0 m² 0 1
Nettstasjon 106 52.5 m² 0 1

Hendelser

09.04.2026 1859/45/8/0/0 Gjennomføringsplan 45/8
29.10.2025 Tillatelse til tiltak - gnr 45 bnr 1 - Myrlandsveien - Teknisk bygg
19.12.2024 Dispensasjon - nytt teknisk bygg - restaurering av Nappstraumtunnelsen - gbr 37/58