NewConstruction UnderBehandling Other

Nytt sanitærbygg med utleierom på Korsbakken Camping, Isfjorden

📍 Nordsidevegen 1802 , 6320 ISFJORDEN

Nøkkelinfo

Sakstype
Nybygg
Bygningstype
Other
Bruksareal
48 m²
Kommune
Rauma
Fylke
Møre og Romsdal
Gnr / Bnr
133 / 7
Saksnummer
26/00956
Fase
Under behandling

Om byggesaken

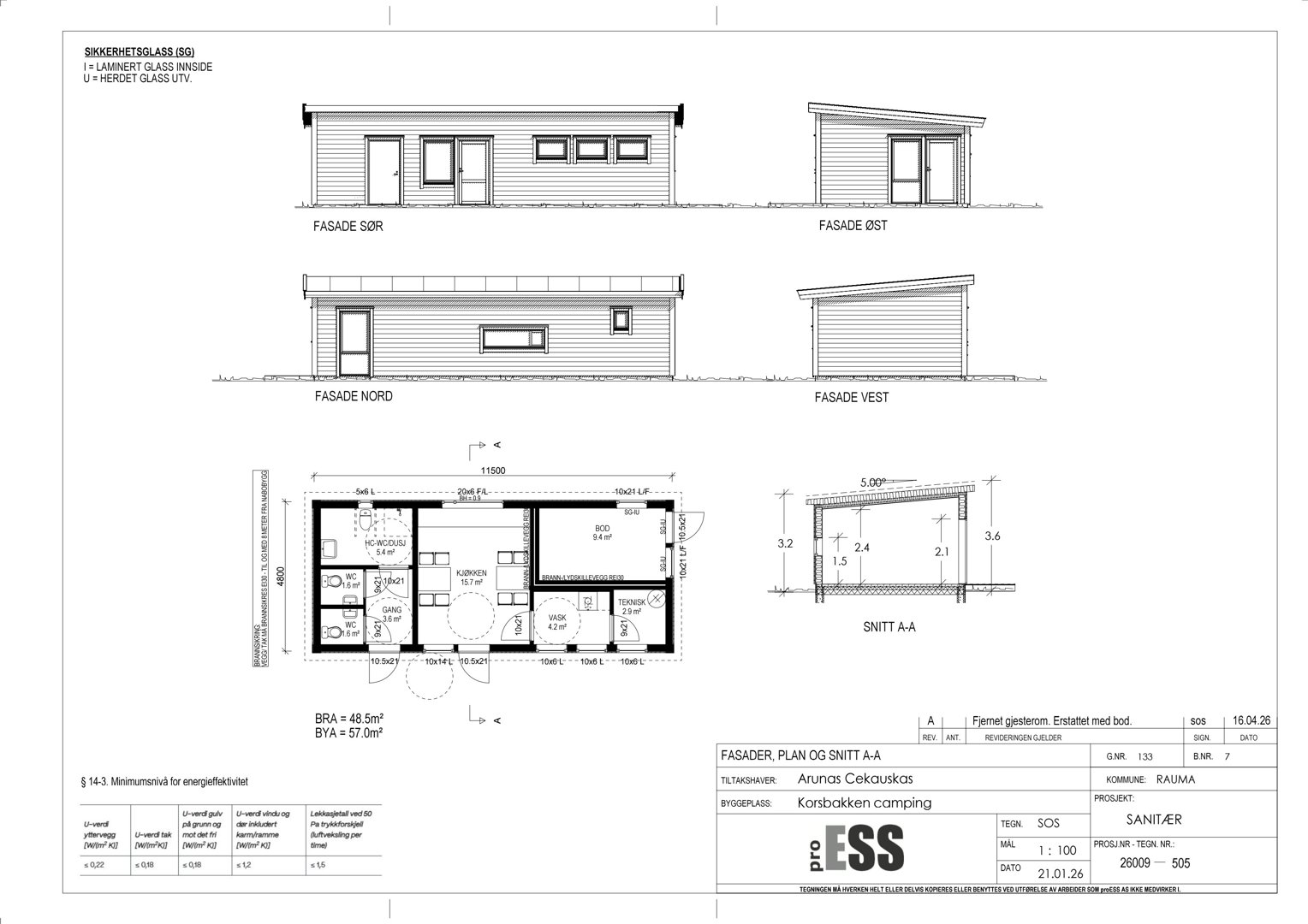
Nyoppført sanitærbygning på 48,5 m² med flatt tak og trekledning, plassert på samme sted som eksisterende sanitærbygg på Korsbakken Camping i Isfjorden. Bygget inneholder kjøkkenrom, vaskerom, separate dame- og herretoaletter, vask, og et mindre utleierom som senere er omdisponert til bod. Bygget har enkel og funksjonell utforming med fokus på hygieniske forhold og tekniske løsninger tilpasset campingplassens behov. Tiltaket omfatter også riving av det gamle sanitærbygget fra 1973, med miljøsanering og avfallshåndtering i henhold til regelverk. Bygget er en oppgradering og videreføring av eksisterende virksomhet uten utvidelse av campingområdet.

Produkter og materialer

Maling Innvendig og utvendig maling

Overflater malt for beskyttelse og estetikk

Maling av treflater og innvendige overflater

Gulv Isolasjon og overflate

U-verdi gulv 0,18 W/(m²K), isolasjon mot grunn

Isolert gulvkonstruksjon med egnet overflate

Grunnarbeid Fundamentering og terrengarbeid

Mindre grunn- og terrengarbeider for nytt sanitærbygg

Fundamentering og tilpasning til terreng

Tømrer Bygningskonstruksjon

🧱 Trekonstruksjoner

Ordinære konstruksjonsløsninger for sanitærbygg

Tømrerarbeid for nytt sanitærbygg

Dører Ytterdører og innerdører

🧱 Ikke spesifisert

Antall: 5

Dører i fasader og innvendig til rom som wc, vaskerom, bod

Dører til sanitærrom og utleierom/bod

Vinduer Fasadevindu

🧱 Sikkerhetsglass, laminert innside, herdet utside

Antall: 5

U-verdi 0,18 W/(m²K), 3-lags energiglass

Vinduer med god isolasjon og sikkerhetsglass

Avfallshåndtering Miljøsanering og rivningsavfall

Miljøsanering av eksisterende bygg, sortering og levering av farlig avfall

Håndtering av rivningsavfall i henhold til regelverk

Tak Flatt tak

🧱 Ikke spesifisert

Flatt tak på sanitærbygget, saltak på sanitæranlegg

Taktype for sanitærbygget og sanitæranlegg

Fasade Trekledning

🧱 Tre

Liggende kledning, enkel fasadeoppdeling

Utvendig kledning i tre som harmonerer med eksisterende bebyggelse

Bad Våtromsinnredning

Dusjer, toaletter, vaskerom med våtromsløsninger

Innredning og overflater tilpasset sanitærbruk

Elektro Elektriske installasjoner

Elektriske installasjoner til sanitærbygg og utleierom

Elektroinstallasjoner for belysning og tekniske funksjoner

VVS Sanitærinstallasjoner

Separate dame- og herretoaletter, dusjer, vaskerom, tekniske rom

Sanitærinstallasjoner for campingplassens sanitærbygg

Plantegning

Hytte 2 51.2 m²

Etasje 1 51.2 m²

Rom Areal Vinduer Dører
Stue/Kjøkken/Sov 101 17.4 m² 1 1
Bad 102 3.5 m² 0 1
Stue/Kjøkken/Sov 103 17.4 m² 1 1
Bad 104 3.5 m² 0 1

Sanitærbygg 35.0 m²

Etasje 1 35.0 m²

Rom Areal Vinduer Dører
Kokeroom Kokeroom 11.5 m² 0 1
Vaskerom Vaskerom 3.0 m² 0 1
Damer Damer 11.5 m² 0 1
Herrer Herrer 9.0 m² 0 1
Vask Vask 1.1 m² 0 1

Fasader

Sanitær/Gjesterom

Sør
Materiale
Tre
Taktype
Flatt tak
Høyde
3.2 m
Mønehøyde
3.2 m
Vinduer
2
Dører
1
Synlige etasjer
1
Øst
Materiale
Tre
Taktype
Flatt tak
Høyde
3.2 m
Mønehøyde
3.6 m
Vinduer
0
Dører
1
Synlige etasjer
1
Nord
Materiale
Tre
Taktype
Flatt tak
Høyde
3.2 m
Mønehøyde
3.2 m
Vinduer
2
Dører
1
Synlige etasjer
1
Vest
Materiale
Tre
Taktype
Flatt tak
Høyde
3.2 m
Mønehøyde
3.6 m
Vinduer
0
Dører
0
Synlige etasjer
1

Sanitæranlegg

Ukjent
Materiale
Tre
Taktype
Saltak
Høyde
2.6 m
Mønehøyde
3.6 m
Vinduer
5
Dører
2
Synlige etasjer
1

Hytte

Ukjent
Materiale
Tre
Taktype
Flatt tak
Vinduer
2
Dører
0
Synlige etasjer
1

Hendelser

17.04.2026 26/00956-8 133/7 - Supplering av søknad - Endringer
15.04.2026 26/00956-7 Oversendelse av uttalelser fra fylkeskommunen - nytt sanitæranlegg, gnr/bnr 133/7, Isfjorden
14.04.2026 26/00956-6 133/7 - Høringssvar - oppføring av sanitærbygg - dispensasjonssak
25.03.2026 26/00956-4 Kopi - 133/7 - Vi innvilger søknaden om samtykke etter automatisk saksbehandling
25.03.2026 26/00956-5 133/7 - Uttale - dispensasjon - nytt sanitærbygg
17.03.2026 26/00956-3 Foreløpig tilbakemelding på søknad - riving og oppføring av nytt sanitæranlegg, gnr/bnr 133/7, Isfjorden
17.03.2026 26/00956-2 Anmodning om uttalelse - dispensasjon fra LNF-sone 4 til oppføring av sanitærbygg, gnr/bnr 133/7, Isfjorden
02.03.2026 26/00956-1 133/7 - Søknad om tillatelse til riving og bygging av nytt sanitæranlegg