NewConstruction UnderBehandling Other

Ny driftsbygning i landbruk på Onstadvegen 20

📍 Onstadvegen 18 , 5745 AURLAND

Nøkkelinfo

Sakstype
Nybygg
Bygningstype
Other
Bruksareal
204 m²
Kommune
Aurland
Fylke
Vestland
Gnr / Bnr
30 / 4
Saksnummer
2026/380
Fase
Under behandling

Om byggesaken

Ny driftsbygning på totalt 203,6 m² fordelt på én etasje med flatt tak og saltak. Bygget er oppført i tre med flere fasader, inkludert vestfasade med flatt tak og tre vinduer, nord- og sørfasade med saltak, og østfasade med flatt tak. Bygningen har flere dører og garasjeporter på nord- og østfasade. Driftsbygningen skal brukes til saueproduksjon og lagring på gårdsbruket. Bygget er plassert i landbruksområde og har tilknytning til offentlig vann og avløp. Det er ikke trapper eller balkonger i bygget.

Produkter og materialer

Grunnarbeid Fundamentering og grunnmur

Grunnarbeid for driftsbygning i landbruk

Fundamentering og grunnmur tilpasset byggegrunn

Tak Flatt tak og saltak

Flatt tak på vest- og østfasade, saltak på nord- og sørfasade

Tak med kombinasjon av flatt tak og saltak

Dører Ytterdører og garasjeporter

Antall: 5

Dører på alle fasader, garasjeporter på nord- og østfasade

Ytterdører og garasjeporter for adkomst og kjøretøy

Elektro Elektrisk anlegg

Elektrisk installasjon for driftsbygning

Fasade Trepanel

🧱 Tre

Trepanel på alle fasader

Trepanel som ytterkledning på bygningen

Tømrer Bærekonstruksjon og innvendig arbeid

🧱 Tre

Tømrerarbeid for bærekonstruksjon og innvendige arbeider

Tømrerarbeid for oppføring av trebygget driftsbygning

VVS Vann og avløp

Tilknytning til offentlig vann og avløp

Installasjon av vann- og avløpssystem til bygget

Vinduer Fasadevindu

Antall: 4

3 vinduer på vestfasade, 1 vindu på sørfasade

Fasadevindu i tre fasader

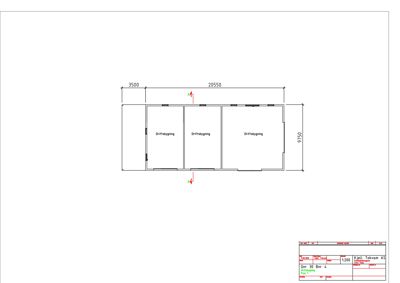
Plantegning

Driftsbygning 203.6 m²

Etasje 1 203.6 m²

Rom Areal Vinduer Dører
Driftsbygning 34.1 m² 0 1
Driftsbygning 199.5 m² 0 1

Fasader

Driftsbygning

Vest
Materiale
Tre
Taktype
Flatt tak
Vinduer
3
Dører
1
Synlige etasjer
1
Nord
Materiale
Tre
Taktype
Saltak
Vinduer
0
Dører
1
Synlige etasjer
1
Syd
Materiale
Tre
Taktype
Saltak
Vinduer
1
Dører
1
Synlige etasjer
1
Aust
Materiale
Tre
Taktype
Flatt tak
Vinduer
0
Dører
1
Synlige etasjer
1

Hendelser

14.04.2026 Supplering til byggesøknad - GBNR 30/4
09.04.2026 Uttale frå Felles Landbrukskontor ÅLA - ny driftsbygning gbnr 30/4
08.04.2026 Vi ber om tilleggsinformasjon - Driftsbygning på gbnr. 30/4 - Onstadvegen 20
24.03.2026 Søknad uten ansvarsrett - Nytt bygg - driftsbygning i landbruk med samlet areal under 1000 m2 - Onstadvegen 20 - GBNR 30/4