NewConstruction Soeknad Other

Ny deponicelle med VA-anlegg i Ørasvegen, Ullensaker

📍 Ørasvegen 118 , 2054 MOGREINA

Nøkkelinfo

Sakstype
Nybygg
Bygningstype
Other
Bruksareal
43,569 m²
Kommune
Ullensaker
Fylke
Akershus
Gnr / Bnr
199 / 227
Saksnummer
2026/3056
Fase
Søknad

Om byggesaken

Ny deponicelle i område BAS4 ved Ørasvegen i Ullensaker kommune etableres som en utvidelse av eksisterende avfallsdeponi. Deponicellen utnytter naturlige terrengforsenkninger (dødisgroper) og har en kapasitet på ca. 840 000 m³ med oppfylling opptil 10 meter over eksisterende terreng. Sidevegger har helning 1:2 til 1:2,5. Tiltaket inkluderer etablering av pumpekummer med overbygg, fordelingskum, to infiltrasjonslaguner for rensing av sigevann, og et fiskebeinsmønstret sigevannssystem med membran i bunnen for oppsamling. Det bygges avskjærende grøfter rundt deponiet for å hindre tilsig av overvann. Atkomstvei og nytt gjerde etableres rundt området. Pumpehusene er enkle, rektangulære trebygninger med saltak og rørosrød panel. Området har gode grunnforhold med sandige masser og god infiltrasjonsevne. Flomvurdering viser at deponiet ligger i flomutsatt område med sikkerhetsklasse F3, og tiltak for flomsikring er planlagt. VA-anlegget er dimensjonert for å håndtere overvann og sigevann i henhold til kommunale krav og 3-trinnsstrategi for overvannshåndtering.

Produkter og materialer

Fasade Pumpehus i tre

🧱 Panelte fasader i fargen Rørosrød, saltak med 22 graders helning

Antall: 2

Rektangulære trebygninger med yttervegger i flukt med betongplate, takutstikk ca. 250 mm

Pumpehus for pumpekummer med elektroteknisk utstyr

Fasade Gjerde

Nytt gjerde langs eiendomsgrense som avgrensing av planområdet

Gjerde rundt deponiområdet

VVS Infiltrasjonslaguner

Antall: 2

Hver lagune med kapasitet ca. 360 m³, naturlige renseprosesser sedimentasjon, infiltrasjon og adsorpsjon

To infiltrasjonslaguner for rensing og infiltrasjon av sigevann

Grunnarbeid Utgraving og terrengforming

Utgraving til traubunn ca. 138 000 m3, oppfylling til maks kote +203, sidevegger med helning 1:2 og 1:2,5

Omfattende grunnarbeider med utgraving og terrengforming for ny deponicelle

VVS Sigevannsledninger

🧱 PE100 SDR11, Ø140 mm, perforert øvre halvdel

Fiskebeinsmønster, membran under rørene for oppsamling, dimensjonert for 4,2 l/s

Ledninger for oppsamling og transport av sigevann i deponicellen

Terrasse Atkomstvei og branngate

Atkomstvei rundt deponiet i BAS4 og BAS6, branngate fri for vegetasjon

Veier for adkomst og brannberedskap rundt deponiet

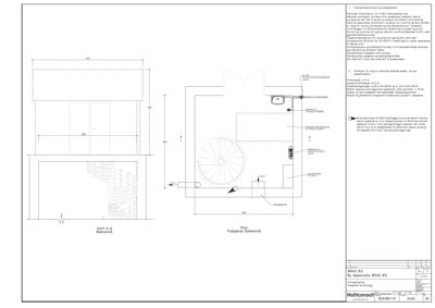
VVS Pumpesystem

🧱 Dykkede pumper, pumpekum med heiseanordning og lokk

Pumpekapasitet 4-5 l/s, løftehøyde 10-12 m, pumpeledningslengde ca. 20 m

Pumpesystem for sigevann i deponicellen

Betong Fordelingskum

Antall: 1

Fordelingskum med manuelle ventiler for styring av sigevann til infiltrasjonslaguner

Fordelingskum for sigevann i VA-anlegget

Betong Prefabrikkert betongkonstruksjon pumpekum

🧱 Betongkonstruksjon med innvendige mål ca. 3,8 x 3,6 m, dybde ca. 12 m

Antall: 1

Pumpesump med heiseanordning, lokk, tilbakeslagsventil og dimensjonert for jord- og overlagringslaster

Prefabrikkert pumpekum under pumpehus

Grunnarbeid Avskjærende grøfter

Grøfteprofil med dybde ca. 0,75 m, bunnbredde ca. 0,8 m, sidehelning 1:2, dimensjonert for 100-års regn

Grøfter rundt deponicellen for å hindre tilsig av overvann

Hendelser

15.04.2026 Oversender søknad på høring - Gnr 199 bnr 227 - Ørasvegen - Nytt utvendig VA-anlegg - Vesentlig terrenginngrep - Ny deponicelle
27.03.2026 Søknad om rammetillatelse - Gnr 199 bnr 227 - Ørasvegen - Nytt utvendig VA-anlegg - Vesentlig terrenginngrep