NewConstruction Soeknad Other

Nedgravd betongbasseng med platting og gjerde i Oterholtvegen 100

📍 Oterholtvegen 100 , 3802 BØ I TELEMARK

Nøkkelinfo

Sakstype
Nybygg
Bygningstype
Other
Bruksareal
43 m²
Kommune
Midt-Telemark
Fylke
Telemark
Gnr / Bnr
41 / 25
Saksnummer
26/6979
Fase
Søknad

Om byggesaken

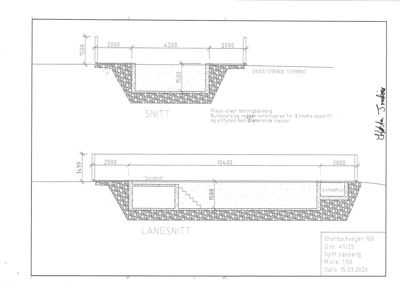
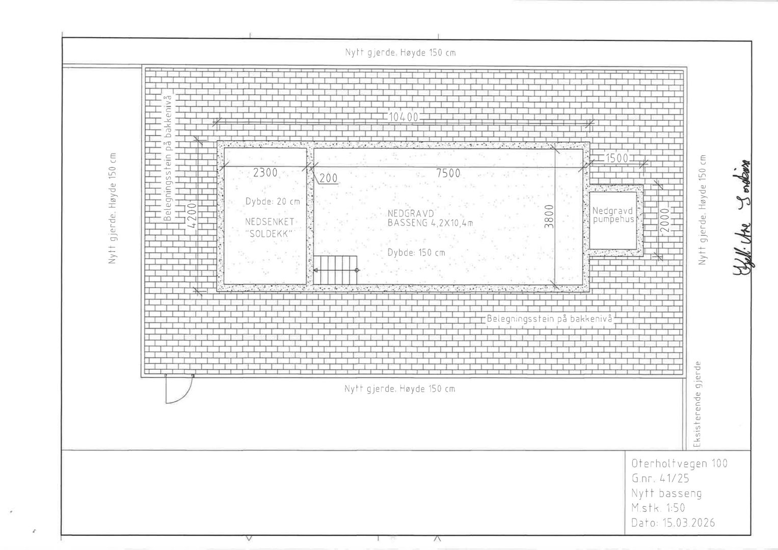
Nytt nedgravd plassbygd betongbasseng på ca. 4,2 x 10,4 meter (42,84 m²) bygges i bakken med topp i nivå med terrenget. Bassenget får betongkonstruksjon prosjektert av Systemblokk, med bunnplate og vegger konstruert for å hindre oppdrift og omfylles med drenerende masser. Det etableres et nedsenket pumpehus på 4 m² under bakken med luke i belegningssteinen. Rundt bassenget bygges en platting av belegningsstein på bakkenivå, med et soldekk på 9,24 m². Området sikres med et 150 cm høyt gjerde i tråd med TEK17. Bassenget utstyres med tekniske installasjoner som renseanlegg, og fylles via utekran uten tilkobling til vann eller avløp. Tiltaket plasseres i et skjermet hjørne av tomten bak eksisterende bygg.

Produkter og materialer

Betong Nedsenket pumpehus

🧱 Betong

Antall: 1

Pumpehus under bakken på 4 m² med luke i belegningssteinen

Teknisk rom for bassengutstyr under bakken

VVS Bassengteknisk utstyr

Renseanlegg og nødvendige tekniske installasjoner for bassengdrift

Tekniske installasjoner for vannrensing og sirkulasjon

Betong Plass-støpt betongbasseng

🧱 Betong fra Systemblokk

Antall: 1

Bassengkonstruksjon med bunnplate og vegger konstruert for å hindre oppdrift, omfylles med drenerende masser

Betongkonstruksjon for nedgravd basseng 4,2 x 10,4 m

Grunnarbeid Utgraving og drenering

Graving av bassenghull, omfylling med drenerende masser, vurdert kvikkleirefri grunn

Grunnarbeid for nedgravd basseng og pumpehus

Terrasse Platting av belegningsstein

🧱 Belegningsstein

Platting rundt basseng på bakkenivå, topp platting i overkant av terreng

Platting rundt basseng for adkomst og opphold

Fasade Gjerde

Gjerde høyde 150 cm rundt bassengområdet i tråd med TEK17 §8-3 pkt.4

Sikring av basseng med gjerde rundt hele området

Annet Sikringstiltak

Sikring av bassengområde med gjerde og levegg rundt for skjerming

Sikkerhetstiltak for bassengområdet

Plantegning

Basseng 42.8 m²

Etasje 0 42.8 m²

Rom Areal Vinduer Dører
Nedgravd basseng 0 42.8 m² 0 0
Nedsenket soldekk 1 9.2 m² 0 0
Nedgravd pumpehus 2 4.0 m² 0 0

Hendelser

15.04.2026 Etterspør tømming av basseng
13.04.2026 Kvikkleirevurdering
19.03.2026 Søknad om tillatelse til ett-trinn på gbnr 41/25