NewConstruction UnderBehandling Other

Oppføring av Birdbox overnattingsmoduler i Reisetevegen 6

📍 Reisetevegen 6 , 5776 NÅ

Nøkkelinfo

Sakstype
Nybygg
Bygningstype
Other
Bruksareal
44 m²
Kommune
Ullensvang
Fylke
Vestland
Gnr / Bnr
157 / 2
Saksnummer
2025/5153
Fase
Under behandling

Om byggesaken

Prosjektet omfatter oppføring av fire frittstående Birdbox-moduler for korttidsutleie på eiendommen Reisetevegen 6, Store Nå. Hver modul er en prefabrikkert karbonfiber- og glasskonstruksjon med mål 5,3 x 2,25 x 2,25 meter, med integrert seng, kjøkkenkrok, lukket toalett og elektrisk anlegg inkludert taklys, stikkontakter og panelovn. Modulene heves over bakken på fire spesialtilpassede søyler festet til fundament, noe som minimerer terrenginngrep og gjør tiltaket reversibelt. Totalt bebygd areal for de fire enhetene er ca. 47,6 m² BYA og 44 m² BRA. Tiltaket er tilrettelagt for bærekraftig gards- og naturturisme uten tilknytning til vann og avløp, og med minimal miljøpåvirkning. Parkering skjer på eksisterende opparbeidede plasser i tunet.

Produkter og materialer

Fasade Karbonfiber- og glasskonstruksjon

🧱 Karbonfiber sandwich, sotet herdet isolerglass

Antall: 4

Prefabrikkerte moduler 5,3 x 2,25 x 2,25 m, panelkledd med filt eller karbonfiber overflate

Frittstående overnattingsmoduler med høy komfort og naturnær design

Ventilasjon Friskluftsvifte

Antall: 4

Ventilasjonssystem med friskluftsvifte integrert i modulene

Sikrer luftutveksling og komfort i overnattingsmodulene

Transport og montering Helikopterløft og kranmontering

Antall: 4

Transport og montering av moduler med helikopter eller kranbil

Løfteutstyr og prosedyrer for plassering av modulene på fundament

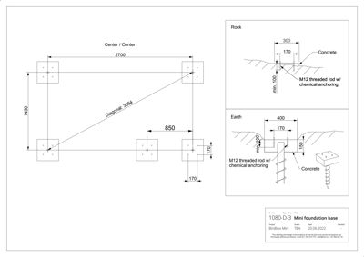
Grunnarbeid Fundament med søyler

🧱 Betongfundament med M12 gjengestag og kjemisk anker

Antall: 16

Fire søyler per Birdbox, spesialtilpasset fundament for minimal terrenginngrep

Fundamentering for å heve modulene over bakken og unngå terrenginngrep

VVS Lukket toalett system

Antall: 4

Separeringstoalett med lukket system, ventilasjon med friskluftsvifte

Toalettløsning tilpasset modulene uten tilknytning til vann og avløp

Elektro Elektrisk anlegg i modul

Antall: 4

Taklys, stikkontakter, panelovn, sikringsskap under seng for tilkobling til nett

Elektrisk installasjon for belysning, varme og strøm i hver Birdbox

Innredning Integrert seng og kjøkkenkrok

Antall: 4

Seng med oppbevaring, kjøkkenkrok med kum, sidebord og sengesett

Fast inventar for komfortabel overnatting i modulene

Hendelser

17.04.2026 Opplysninger gitt i nabovarsel.
05.03.2026 Gnr. 157, bnr. 2 - Reisetevegen 6 - Tilleggsinformasjon for disp.søknad
18.02.2026 Referat førehandskonferanse- Gnr. 157, bnr. 2 - Reisetevegen 6 - Oppføring av nybygg - Birdbox
23.01.2026 Gnr. 157, bnr. 2 - Reisetevegen 6 - Søknad om dispensasjon, Store Nå
10.12.2025 Gnr. 157, bnr. 2 - Reisetevegen 6 - Tinging av førehandskonferanse - Oppføring av nybygg - Birdbox