NewConstruction UnderBehandling Other

Etablering av bussparkering og støyskjerm i Ringveien 204, Sandefjord

📍 Ringveien 204 , 3223 SANDEFJORD

Nøkkelinfo

Sakstype
Nybygg
Bygningstype
Other
Bruksareal
1,500 m²
Kommune
Sandefjord
Fylke
Vestfold
Gnr / Bnr
149 / 464
Saksnummer
2025/31114
Fase
Under behandling

Om byggesaken

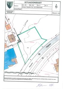
Prosjektet omfatter opparbeidelse av en bussparkering på ca. 1500 m² asfaltert areal på eiendommen Ringveien 204 i Sandefjord. Det skal etableres syv oppstillingsplasser for busser tilknyttet Vestfold kollektivtrafikk, med tilhørende to nye avkjørsler til fylkesvei 3052. Det planlegges oppført en ca. 2 meter høy levegg/støyskjerm mot nabobebyggelsen i Grubbestadveien 23A og 23B for å redusere støy- og lysulemper. Parkeringsplassen skal ha permeabelt grusdekke mot landbruksareal, og det er avtalt plassering av gjerde 0,5 meter fra grense mot landbrukseiendom. Det er videre planlagt plassering av trafo og ladepunkter for elbusser, som skal søkes om separat. Tiltaket er midlertidig og reversibelt, og skal kun benyttes til bussparkering for offentlig kollektivtrafikk. Grunnforholdene er stabile, og tiltaket vurderes ikke å medføre uheldige skyggevirkninger eller vesentlige negative konsekvenser for naturmangfold eller trafikksikkerhet.

Produkter og materialer

VVS Overvannshåndtering

Overvann skal håndteres på egen eiendom ved infiltrasjon i grunnen, avklares med kommunen (Bydrift)

Lokal håndtering av overvann fra parkeringsarealet

Elektro Trafo og ladepunkter for elbusser

Plassering av trafo og ladepunkter vist på situasjonsplan, skal søkes om i egen sak, trafo plasseres lengst mulig fra boligbebyggelse

Infrastruktur for lading av elektriske busser

Fasade Gjerde

🧱 Nettinggjerde på betongføtter/paller

Gjerde 0,5 meter fra grense mot landbrukseiendom, høyde ca. 1,5-2 meter, delvis fletteverksgjerde langs grense mot landbrukseiendom 149/3

Gjerde som buffersone mot landbrukseiendom og for å hindre uønsket ferdsel

Fasade Levegg / støyskjerm

🧱 Tre eller annet vedlikeholdsfritt materiale

Antall: 1

Ca. 2 meter høy levegg/støyskjerm, forlenget langs eiendomsgrensen mot Grubbestadveien 23A og 23B, fundamentering skal dokumenteres før igangsettingstillatelse

Støyskjerm mot nabobebyggelse for å redusere støy og lysulemper

Skilt Trafikkskilt

Skilt som regulerer inn- og utkjøring, samt eksisterende fareskilt for barn/skole skal opprettholdes

Trafikkskilt for regulering av avkjørsler og trafikksikkerhet

Avkjørsel To nye avkjørsler til fylkesvei

Antall: 2

Avkjørsler i henhold til veglov og fylkeskommunens tillatelse, med sikthindringsfri siktlinje på 25 m, fall og stigning iht. forskrift

To nye avkjørsler fra fylkesvei 3052 til parkeringsplassen

Grunnarbeid Opparbeidelse av parkeringsareal

🧱 30-60 cm grov pukk, 15-25 cm finere masser, permeabelt grusdekke

Antall: 1500

Opparbeidelse av ca. 1500 m² parkeringsareal med permeabel overflate for bussparkering

Opparbeidelse av parkeringsplass for busser med permeabelt dekke

Garasje Bussoppstillingsplasser

Antall: 7

Syv oppstillingsplasser for busser på asfaltert areal

Oppstillingsplasser for bussene tilknyttet kollektivtrafikk

Hendelser

16.04.2026 Gbnr 149/464 - Ringveien 204 - Svar på tidligere brev fra utbygger og nye dokumenter datert/sendt 27.03.2026
14.04.2026 Gbnr 149/464 - Ringveien 204 - Svar angående befaringsmøte - Ringveien 204 og Grubbestadveien 23B
09.04.2026 Gbnr 149/464 - Ringveien 204 - Befaringsmøte Ringveien 204 og Grubbestadveien 23B - Ber om tilbakemelding
30.03.2026 Gbnr 149/464 - Ringveien 204 - Befaringsmøte Ringveien 204 og Grubbestadveien 23B
30.03.2026 Gbnr 149/464 - Ringveien 204 - Befaringsmøte Ringveien 204 og Grubbestadveien 23B
30.03.2026 Gbnr 149/464 - Ringveien 204 - Etablere parkeringsplass - Dispensasjon - Vedtak - Innvilget
27.03.2026 Gbnr 149/464Ringveien 204 - Bekreftelse på avtale om oppføring av levegg/støyskjerm
16.03.2026 Gbnr 149/464 - Ringveien 204 - Etablere parkeringsplass - Revidert dispensasjonssøknad
09.03.2026 Gbnr 149/464 - Ringveien 204 - Etablere parkeringsplass - Søknad om dispensasjon fra byggegrensene fra reguleringsplanen Førstad Østre
04.03.2026 Gbnr 149/464 - Ringveien 204 - Etablere parkeringsplass - Dispensasjon - Vedtak om omgjøring
24.02.2026 Gbnr 149/464 - Ringveien 204 - Etablere parkeringsplass - Dispensasjon - Supplerende opplysninger
17.02.2026 Gbnr 149/464 - Ringveien 204 - Etablere parkeringsplass - Dispensasjon - Søknad opprettholdes
08.01.2026 Gbnr 149/464 - Ringveien 204 - Etablere parkeringsplass - Søknad om igangsettingstillatelse
30.12.2025 Gbnr 149/464 - Ringveien 204 - Etablere parkeringsplass - Dispensasjon - Klage på vedtak
19.12.2025 Gbnr 149/464 - Ringveien 204 - Etablere parkeringsplass - Dispensasjon - Vedtak - Innvilget
16.12.2025 Gbnr 149/464 - Ringveien 204 - Etablere parkeringsplass - Dispensasjon - Mottatt klage på vedtak
11.12.2025 Gbnr 149/464 - Ringveien 204 - Erstatningskrav på verdiforringelse av eiendommen Grubbestadveien 23B Gbnr 149/227
10.12.2025 Gbnr 149/464 – Ringveien 204 - Etablere parkeringsplass – Dispensasjon – Klage på vedtak
04.12.2025 Gbnr 149/464 - Ringveien 204 - Oppsetting av støyskjerm - Nabotiltak
04.12.2025 Gbnr 149/464 - Ringveien 204 - Svar angående tiltak på naboeiendom
21.11.2025 Gbnr 149/464 - Ringveien 2024 - Utfyllende opplysninger - Grunnforhold
21.11.2025 Gbnr 149/464 - Ringveien 204 - Oppdatert situasjonsplan
27.10.2025 Gbnr 149/464 - Ringveien 204 - Opparbeidelse av parkerings-/oppstillingsplass for busser - Dispensasjon - Etablering av to avkjørsler
17.10.2025 Gbnr 149/464 - Ringveien 204 - Etablere parkeringsplass - Dispensasjon - Oversendes til uttalelse etter vegloven
29.09.2025 Gbnr 149/464 - Ringveien 204 - Vedrørende nabovarsel
29.09.2025 Gbnr 149/464 - Ringveien 204 - Etablere parkeringsplass - Søknad om dispensasjon
15.09.2025 Gbnr 149/464 - Ringveien 204 - Etablere parkeringsplass - Nabovarsel/tiltak/byggesak/bussoppstilling Gnr.149 Bnr.464