NewConstruction Ferdigattest Other

Frittliggende anneks med toalett i Sævelandsveien 191, Farsund

📍 Sævelandsveien 191 , 4550 FARSUND

Nøkkelinfo

Sakstype
Nybygg
Bygningstype
Other
Bruksareal
29 m²
Kommune
Farsund
Fylke
Agder
Gnr / Bnr
160 / 36
Saksnummer
25/00414
Fase
Ferdigattest

Om byggesaken

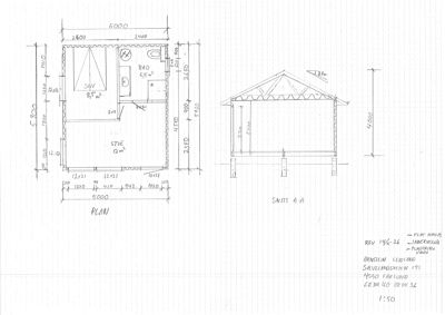
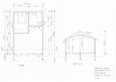
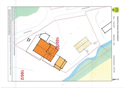
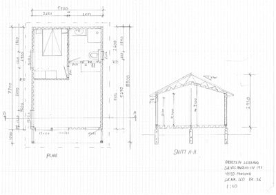
Ny frittliggende anneks på 29 m² BYA og 26 m² BRA med saltak og 27 graders takvinkel. Bygget inneholder bad med vannklosett, ett soverom og en stue. Anneks er plassert i hjørnet av tomten med en minsteavstand på 4 meter til eiendomsgrense, og kantvegetasjonsbeltet langs bekk skal bevares. Bygget er tilknyttet privat vann- og avløpsanlegg med tett tank og synkegrøft, og takvann skal infiltreres i grunnen. Anneks skal ikke brukes som selvstendig boenhet og har ikke kjøkken. Dispensasjon er gitt for bruk av vannklosett, forbud mot anneks i planen og utnyttelsesgrad.

Produkter og materialer

Fasade Trepanel

🧱 Tre

Fasade i tre med saltak

Trepanel til fasade med saltak og takvinkel 27 grader

Betong Plasstøpte betongkonstruksjoner

Plasstøpte betongkonstruksjoner for fundament og bærende konstruksjoner

Betongarbeid for fundament og bærende konstruksjoner

Bad Bad med vannklosett

Antall: 1

Bad med vannklosett tilknyttet privat avløpsanlegg med tett tank og synkegrøft

Bad med vannklosett og sanitærinstallasjoner

Vinduer Vanlige vinduer

Vinduer plassert i stue og soverom, vurdert lav høyde og volum

Vinduer i anneksets stue og soverom

Dører Ytterdør

Antall: 1

Ytterdør til anneks

Ytterdør til anneks

Tak Saltak med teglstein

🧱 Teglstein

Saltak med 27 graders takvinkel og tegl takmateriale

Tak med saltak og teglstein som takmateriale

VVS Sanitærinstallasjoner og vannforsyning

Privat vannforsyning via felles brønn, tilknytning til privat avløpsanlegg med tett tank og synkegrøft

Vann- og avløpsinstallasjoner for anneks

Grunnarbeid Fundamentering og plassering

Plassering minst 4 meter fra eiendomsgrense, bevaring av kantvegetasjon langs bekk

Grunnarbeid med fundamentering og ivaretakelse av kantvegetasjon

Tømrer Trekonstruksjoner

🧱 Tre

Tømrerarbeid for trekonstruksjoner og montering

Tømrerarbeid for bygging av anneks i tre

Plantegning

Enebolig 47.5 m²

Etasje 1 47.5 m²

Rom Areal Vinduer Dører
Stue 101 32.4 m² 1 1
Sove 102 15.1 m² 1 1
Bad 103 0.0 m² 0 0

Fasader

Garasje

Nord-Vest
Materiale
Tre
Taktype
Saltak
Vinduer
0
Dører
0
Synlige etasjer
1

Enebolig

Nord-Øst
Materiale
Tre
Taktype
Saltak
Takmat.
Tegl
Vinduer
1
Dører
0
Synlige etasjer
1
Sør-Vest
Materiale
Tre
Taktype
Saltak
Takmat.
Tegl
Vinduer
2
Dører
0
Synlige etasjer
1
Sør-Øst
Materiale
Tre
Taktype
Saltak
Takmat.
Tegl
Vinduer
2
Dører
1
Synlige etasjer
1

Uthus

Sør-Øst
Materiale
Tre
Taktype
Saltak
Vinduer
2
Dører
1
Synlige etasjer
1

Hendelser

21.04.2026 25/00414-9 DOK-analyse - 160/36/0/0 Sævelandsveien 191
21.04.2026 25/00414-10 Ferdigattest – Frittliggende anneks – 160/36, Sævelandsveien 191
15.04.2026 25/00414-8 Søknad om ferdigattest - frittliggende anneks - 160/36, Sævelandsveien 191
18.07.2025 25/00414-7 Dispensasjon og tillatelse på vilkår for frittliggende anneks - 160/36, Sævelandsveien 191
25.06.2025 25/00414-6 Supplering av søknad - endret størrelse anneks, nytt nabovarsel, oppdatert situasjonsplan og tegninger samt dispensasjonssøknad - 160/36
05.05.2025 25/00414-5 Opplysning og kopi utslippstillatelse 2008 - 160/36 Sævelandsveien 191,
25.04.2025 25/00414-4 Foreløpig svar - Søknaden er mangelfull - 160/36 Sævelandsveien 191
03.04.2025 25/00414-2 Etterspør status på innsendt søknad - 160/36, Sævelandsveien 191
03.04.2025 25/00414-3 Foreløpig svar om saksbehandlingstid - 160/36 Sævelandsveien 191
07.03.2025 25/00414-1 Søknad om oppføring av frittliggende bod/anneks med toalett - 160/36, Sævelandsveien 191