NewConstruction UnderBehandling Other

Planering, ny avkjørsel og parkeringsplass på Solgaard Skog 3, Moss

📍 Solgaard skog 3 , 1599 MOSS

Nøkkelinfo

Sakstype
Nybygg
Bygningstype
Other
Bruksareal
12,000 m²
Kommune
Moss
Fylke
Østfold
Gnr / Bnr
3 / 1527
Saksnummer
2025/8903
Fase
Under behandling

Om byggesaken

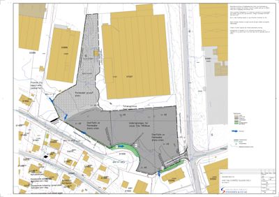
Tiltaket omfatter planering av ca. 12 dekar uteareal, hvorav ca. 6 dekar skal graves ned og masseutskiftes, inkludert fjerning av 8000-10000 m3 torv og vegetasjonsdekke. Det etableres ny avkjørsel i sørøst på eiendommen som erstatter eksisterende avkjørsel fra Tjernveien, med opparbeidelse av parkmessig grøntbelte som skjermsoner mot naboeiendommer. Parkeringsarealet oppgraderes med grus og permeable belegningsstein, og det planlegges fjellskjæring og terrengtilpasning til kote +48. Miljøtekniske undersøkelser viser at grunnen i hovedsak ikke er forurenset, men det er påvist forekomster av fremmede skadelige plantearter som kanadagullris og parkslirekne, som krever særskilt håndtering. Overvann håndteres med infiltrasjon og fordrøyningsløsninger på egen eiendom. Tiltaket er i tråd med gjeldende reguleringsplan for industriområde, men har vært gjenstand for naboklager knyttet til naturinngrep, skjermsonens bredde og saksbehandling. Tillatelse til tiltak er gitt med vilkår om oppfølging av miljø- og naturhensyn.

Produkter og materialer

Fasade Permeable belegningsstein

🧱 Belegningsstein

Permeable belegningsstein på nye planerte utearealer for å sikre infiltrasjon av overvann

Bruk av permeable belegningsstein på parkerings- og lagringsarealer for overvannshåndtering

Tømrer Veg- og grunnarbeider med landskapsutforming

Prosjektering og utførelse av veg- og grunnarbeider med landskapsutforming av INGENIØRFIRMAET SVENDSEN & CO AS og KNUT BJERKE AS

Grunnarbeider og landskapsutforming for utearealene og adkomstveier

Grunnarbeid Fjellskjæring

🧱 Bergsprengning, nettinggjerde for sikring

Fjellskjæring med nettinggjerde, maks høyde 1,5 m, for å oppnå planert terreng

Sprengning og skjæring av fjellknauser for terrengutjevning

VVS Vannforsynings- og avløpsanlegg

Prosjektering og utførelse av vannforsynings- og avløpsanlegg av INGENIØRFIRMAET SVENDSEN & CO AS og KNUT BJERKE AS

Tekniske installasjoner for vann og avløp knyttet til utearealene

Vei Ny avkjørsel og oppgradering av eksisterende adkomst

🧱 Asfalt, grus, sperrestein

Ny avkjørsel i sørøst som erstatter eksisterende avkjørsel fra Tjernveien, innsnevring og stenging av gammel avkjørsel med sperrestein, opparbeidelse av ny adkomstvei

Etablering av ny avkjørsel og oppgradering av tilkomstveier med asfalt og grusdekke

Fasade Grøntbelte / skjermsone

🧱 Vegetasjon, trær

Parkmessig opparbeidet grøntbelte med trær, ca. 10 meter bredde, med forslag om dobling til 25-30 meter

Grøntbelte som skjermsoner mot naboeiendommer, med bevaring av eksisterende vegetasjon og nyplanting

Annet Håndtering av fremmede skadelige arter

Tiltaksplan for håndtering av kanadagullris og parkslirekne, inkludert oppgraving, separat håndtering, mellomlagring på duk, kontrollert gjenbruk eller deponering, og etterkontroll i minimum to vekstsesonger

Tiltak for å hindre spredning av fremmede skadelige plantearter under grave- og anleggsarbeider

VVS Overvannshåndtering

🧱 Stormtech fordelingskammer, infiltrasjonssluk, drensstein

Fordrøyningsvolum ca. 4661 m3, infiltrasjon i grunnen, flomvannsinntak og fordeling med Stormtech SC-740 fordelingskammer

Overvannsløsninger som fanger opp, fordrøyer og infiltrerer overvann på egen eiendom, med flomveier sikret

Grunnarbeid Masseutskifting og terrengbearbeiding

Antall: 8000

Fjerning av 8000-10000 m3 torv og vegetasjonsdekke, masseutskifting av myr og bløte løsmasser, terrengplanering til kote +48

Omfatter utgraving, masseutskifting og planering av ca. 6 dekar med myr og vegetasjon, samt terrengtilpasning og fjellskjæring

Tømrer Oppmåling og utstikking

Oppmåling og utstikking av tiltaket utført av KNUT BJERKE AS

Nøyaktig oppmåling og utstikking for korrekt plassering av tiltaket

Hendelser

15.04.2026 Solgaard skog 3 - 3/1527 - utsatt iverksettelse
14.04.2026 Solgaard skog 3 - 3/1527 - svar vedrørende beplantning i skjermsone mot Tjernveien
14.04.2026 Solgaard skog 3 - 3/1527 - utsatt iverksettelse - planering og etablering av ny avkjørsel
10.04.2026 Solgaard skog 3 - 3/1527 - Statsforvalteren besvarer henvendelse - klage på saksbehandling - parkeringsplass
10.04.2026 Solgaard skog 3 - 3/1527 - tilsvar til forslag om beplantning i skjermsone
09.04.2026 Solgaard skog 3 - 3/1527 - uttalelse til klage på vedtak 157/26
08.04.2026 Solgaard skog 3 - 3/1527 - uttalelse - parkeringsplass
08.04.2026 Solgaard skog 3 - 3/1527 - oversendelse av klage - parkeringsplass
08.04.2026 Solgaard skog 3 - 3/1527 - klage til uttalelse
07.04.2026 Solgaard skog 3 - 3/1527 - presisering til klage 27.03.2026
07.04.2026 Solgaard skog 3 - 3/1527 - klage på vedtak
07.04.2026 Solgaard skog 3 - 3/1527 - klagebehandling - parkeringsplass
01.04.2026 Solgaard skog 3 - 3/1527 - bekreftelse på mottak av klage - planering av eiendom og etablering av ny avkjørsel
01.04.2026 Solgaard skog 3 - 3/1527 - behandling av utsatt iverksetting - planering og etablering av ny avkjørsel
30.03.2026 Solgaard skog 3 - 3/1527 - klage på enkeltvedtak
30.03.2026 Solgaard skog 3 - 3/1527 - klage på saksbehandling
30.03.2026 Solgaard skog 3 - 3/1527 - Klage på enkeltvedtak
30.03.2026 Solgaard skog 3 - 3/1527 - beplantning i skjermsone mot Tjernveien
16.03.2026 Solgaard skog 3 - 3/1527 - tillatelse til tiltak - planering av deler av eiendom og etablering av ny avkjørsel
16.03.2026 Solgaard skog 3 - 3/1527 - svar vedrørende midlertidig pukking og avretting på tomt
09.03.2026 Solgaard skog 3 - 3/1527 - informasjon om midlertidig pukking og avretting på tomt
20.02.2026 Solgaard skog 3 - 3/1527 - svar vedrørende ønske om møte - terrengendringer
19.02.2026 Solgård skog 3 - 3/1527 - svar vedrørende aktivitet på eiendommen - parkeringsplass
16.02.2026 Solgård skog 3 - 3/1527 - aktivitet på eiendommen - parkeringsplass
02.02.2026 Solgaard skog 3 - 3/1527 - om nabovarsel
09.01.2026 Solgaard Skog 3 - 3/1527- supplerende dokumentasjon
06.01.2026 Solgaard skog 3 - 3/1527 - tilbakemelding om vedlikehold av grusplass brukt til parkering og lagring
23.12.2025 Solgaard skog 3 - 3/1527 - uttalelse - parkeringsplass
15.12.2025 Solgaard skog 3 - 3/1527 - gjennomføringsplan
12.12.2025 Solgaard skog 3 - 3/1527 - oversender for vedtak og uttalelse - parkeringsplass
12.12.2025 Solgaard skog 3 - 3/1527 - informasjon om vedlikehold av grusplass brukt til parkering og lagring
27.11.2025 Solgaard skog 3 - 3/1527 - svar på brev med tilbakemelding om mangler mottatt 14.11.2025
27.11.2025 Solgaard Skog 3 - 3/1527 - gjennomføringsplan
19.11.2025 Solgaard skog 3 - 3/1527 - tilbakemelding om mangler - parkeringsplass
22.10.2025 Solgaard Skog 3 - 3/1527 - ett trinns søknad - parkeringsplass