NewConstruction Soeknad Other

Grovplanering og grunnarbeid i Søylandsheia 68, Flekkefjord

๐Ÿ“ Søylandsheia 68

Nรธkkelinfo

Sakstype
Nybygg
Bygningstype
Other
Bruksareal
2,000 mยฒ
Kommune
Flekkefjord
Fylke
Agder
Gnr / Bnr
68 / 99
Saksnummer
26/00946
Fase
Søknad

Om byggesaken

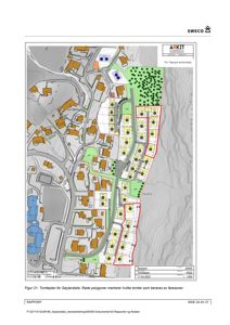
Prosjektet omfatter grovplanering av tomtene i delfelt B7 og B8 i Søylandsheia, Flekkefjord, med terrengbearbeiding som inkluderer sprenging, masseutskifting og fylling for å tilpasse terrenget til planlagte tomtehøyder. Terrenget planeres til nivåer ca. 0,6 meter lavere enn regulerte tomtehøyder, med alle høydeforskjeller løst som skråninger og skjæringer. Det etableres også lekeplass og nedgraving av interne felles vann- og avløpsledninger som skal betjene flere tomter innenfor planområdet. Opparbeidelse utover grovplanering, som finplanering, støttemurer og boligbygging, vil bli søkt om separat. Området ligger i en skråning med potensielle skredfare, og det er utført skredfareutredning med anbefalte sikringstiltak for å oppnå sikkerhetsklasse S2 i henhold til TEK17.

Produkter og materialer

Grunnarbeid Grovplanering og terrengbearbeiding

Sprenging, masseutskifting, fylling for å etablere terrengnivåer ca. 0,6 m under regulerte tomtehøyder, skråninger og skjæringer

Terrengbearbeiding for tilpasning av tomtehøyder i delfelt B7 og B8

Fasade Lekeplass

Antall: 1

Etablering av lekeplass i samsvar med reguleringsplan

Lekeplass i delfelt B7 og B8

Grunnarbeid Nedgraving av felles vann- og avløpsledninger

Interne fellesledninger som skal betjene flere tomter, tilkobling til offentlig nett søkes separat

Nedgraving av VA-ledninger i grunnen

Annet Skredsikringstiltak

Inspeksjon, rensk og eventuell boltesikring av bergskjæringer i tilknytning til tomtene, i henhold til skredfareutredning

Tiltak for å oppnå sikkerhetsklasse S2 mot steinsprang i området

Tømrer Støttemurer (planlagt senere)

Eventuelle støttemurer vurderes og søkes om i senere søknader

Støttemurer for terrengstøtte

Hendelser

15.04.2026 26/00946-2 Kopi av sendt søknad for null , 68/99, FLEKKEFJORD
15.04.2026 26/00946-1 Søknad om tillatelse i ett trinn 68/99