NewConstruction UnderBehandling Other

Oppføring av prismast for el-billading i Strandavegen 335, Voss

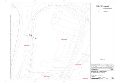
📍 Strandavegen 335 , 5710 SKULESTADMO

Nøkkelinfo

Sakstype
Nybygg
Bygningstype
Other
Kommune
Voss
Fylke
Vestland
Gnr / Bnr
58 / 163
Saksnummer
2026/3072
Fase
Under behandling

Om byggesaken

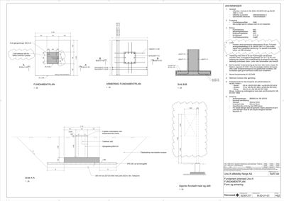
Ny frittstående prismast for el-billading med en total høyde på 7,2 meter plassert på et betongfundament. Fundamentet er 2100x2100x300 mm i betong B30 med armering og telesikring, fundamentert på fast leire eller bedre masser. Prismasten har en søyle med diameter ca. 42 cm opp til 4 meter, og deretter en bredde på 1,8 meter og tykkelse på ca. 72 cm opp til 7,2 meter. Skiltflagg på 3,2 x 1,8 meter med integrert belysning og prisdisplay for el-billading er montert på masten. Tiltaket plasseres på et etablert grøntareal ved Strandavegen (E16) med ca. 20,9 meter avstand til midtlinje vei og 6 meter til gang- og sykkelveg. Det er søkt dispensasjon fra byggegrense og midlertidig bygge- og anleggsområde i reguleringsplanen. Tiltaket krever også tillatelse etter veglova for reklameoppføring.

Produkter og materialer

Fasade Prismast med skiltflagg

🧱 Stålmast med integrert belysning og prisdisplay

Antall: 1

Mast 7,2 m høy, diameter 42 cm opp til 4 m, bredde 1,8 m og tykkelse 72 cm opp til 7,2 m, skiltflagg 3,2 x 1,8 m med integrert belysning og prisdisplay

Frittstående prismast med skilt for prisopplysning ved el-billading

Tømrer Montering av prismast

Antall: 1

Montering av mast og skilt etter ferdig fundamentering

Utførelse av montering av prismast og skilt

Elektro Integrert belysning og prisdisplay

Antall: 1

Integrert belysning i skiltflagg, fullgrafisk display for kWt-pris, ikke digitalt roterende symbol

Elektrisk installasjon for belysning og prisvisning på prismast

Betong Betongfundament

🧱 Betong B30, armering B500NC

Antall: 1

2100x2100x300 mm fundament med armering, ekspanderende mørtel, telesikring med XPS 250, utførelse iht. NS 3420 og NS-EN 1992-1-1

Fundament for prismast med tilhørende armering og telesikring

Grunnarbeid Graving og tilbakefylling

🧱 Telesikre masser, pukk 0/22 eller tilsvarende

Antall: 1

Graving av grop 1,9 m dyp, tilbakefylling med telesikre masser og komprimering iht. NS 3458

Grunnarbeid for fundamentering av prismast

Hendelser

16.04.2026 Ber om tilleggsopplysninger - Prismast for el-billading - gbnr. 58/163 - Strandavegen 335
13.04.2026 Ber om uttale - Prismast for el-billading - gbnr. 58/163 - Strandavegen 335
20.03.2026 Søknad om løyve - prismast for el-billading - gbnr. 58/163 - Strandavegen 335
20.03.2026 Stadfesting av motteken søknad - prismast for el-billading - gbnr. 58/163 - Strandavegen 335