NewConstruction Rammetillatelse Other

Ny renseanlegg med støttebygg i Hjelmeland

📍 Svadbergvegen 44 , 4137 ÅRDAL I RYFYLKE

Nøkkelinfo

Sakstype
Nybygg
Bygningstype
Other
Bruksareal
889 m²
Kommune
Hjelmeland
Fylke
Rogaland
Gnr / Bnr
139 / 34
Saksnummer
2025/1511
Fase
Rammetillatelse

Om byggesaken

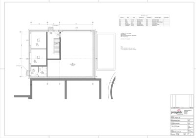
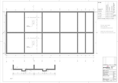
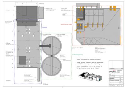
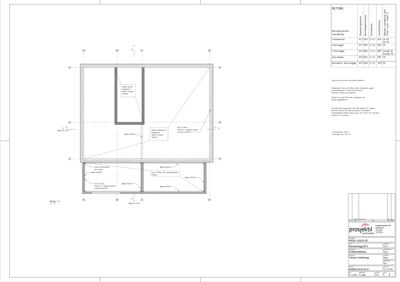
Ny oppføring av et renseanlegg bestående av et tre-etasjes støttebygg på totalt 310,5 m², to sedimenteringstanker og en bioreaktor. Støttebygget inneholder funksjoner som prøvetakingsrom, kontor, lager, verksted, blåserom, garderober, dusj og tekniske rom. Bygget har betongkonstruksjoner med stål- og sandwich-elementer i vegger og tak, og er utstyrt med trapper og rekkverk. Renseanlegget inkluderer også store betongbassenger med spesifikasjoner for armering og vanntette støpeskjøter. Bygget er plassert i et industriområde med flomsikringstiltak, og har tekniske installasjoner for ventilasjon, sanitær og elektro. Totalt nytt bebygd areal (BYA) er 889 m².

Produkter og materialer

Vinduer Fasadevindu i støttebygg

Antall: 11

Vinduer i kontor, lager, verksted, blåserom og prøvetakingsrom

Fasadevindu i støttebyggets ulike rom

Trapper Innvendig trapp i støttebygg

🧱 Prefab elementer eller stedstøpte vegger

Antall: 1

Trapp og repos som prefab elementer, trappesjakt 250 mm tykke vegger

Innvendig trapp i støttebygg med rekkverk

Rekkverk Rekkverk på gangbaner og trapper

🧱 Stål/GRP

Rekkverk rundt gangbaner og trapper i renseanlegg og støttebygg

Sikkerhetsrekkverk i stål og glassfiberarmert plast

Isolasjon Isolasjon i vegger og tak

🧱 XPS, EPS og mineralull

300 mm isolasjon i tak, isolasjon i vegger av sandwich-elementer

Isolasjon for termisk beskyttelse av bygget

Betong Montering av betongelementer

Montering av prefabrikkerte betongelementer for bassenger og støttebygg

Betongelementmontasje for bassenger og bygningskonstruksjoner

Maling Innvendige overflater

Maling av betongvegger og gipsvegger i støttebygg

Innvendig maling av vegger og himlinger i støttebygg

Tak Stålplatetak og sandwichelementer

🧱 Stålplatetak med 300 mm isolasjon, dampsperre

Tak av 150 mm stål sandwichelement, fall til renne, sluk/rør ut gjennom gesims

Taktekking med stålplatetak og isolasjon, inkludert sluker og fall

Dører Ytter- og innerdører i støttebygg

Antall: 15

Dører i kontor, lager, tekniske rom, dusj, WC og trapperom

Ytter- og innerdører i støttebyggets etasjer

Elektro Installasjon av ledesystem og tavlerom

Elektroinstallasjoner i tavlerom og øvrige tekniske rom

Elektroinstallasjoner for styring og drift av renseanlegg og støttebygg

Fasade Stål sandwich-elementer og betongvegger

🧱 Stål sandwich-elementer, betongelementer VA-Tek vegger

Stål sandwich vegger og tak i kaldt bygg, betongvegger i basseng og bioreaktor

Yttervegger og tak i stål sandwich-elementer og betong, med isolasjon og tetting

Grunnarbeid Grunnarbeider og fundamentering

Grunnarbeider utført av Stangeland Maskin AS, inkludert drenering og sedimenteringsbasseng

Grunnarbeid for fundamentering og overvannshåndtering

Ventilasjon Ventilasjons- og klimainstallasjoner

Ventilasjonsanlegg i støttebygg og renseanlegg

Ventilasjons- og klimainstallasjoner for bygget

Betong Bunnplater for sedimenteringsbasseng og bioreaktor

🧱 Betong M45, B35, B30, B45 med armering K503 og bøyler

Bunnplater 300 mm tykkelse, vanntette støpeskjøter med Cemflex, eksponeringsklasser XC1, XC2, XC3, XS1, XS2

Betongfundamenter og bunnplater for bassenger og bioreaktor med spesifisert armering og bestandighetsklasser

VVS Sanitærinstallasjoner

Dusj, WC, garderober, sanitærinstallasjoner i støttebygg

Sanitærinstallasjoner for dusj, WC og garderober

Fasader

Renseanlegg

Vest
Materiale
Betong
Taktype
Flatt tak
Høyde
15.0 m
Vinduer
2
Dører
1
Synlige etasjer
2
Nord
Materiale
Betong
Taktype
Flatt tak
Høyde
15.0 m
Vinduer
4
Dører
2
Synlige etasjer
2

Hendelser

20.04.2026 139/34 - Supplering av søknad
04.12.2025 139/34 - Supplering av søknad
03.12.2025 Opplysningar om areal
02.12.2025 Delegert vedtak eitt-trinns søknad - 139/34, Renseanlegg
12.11.2025 139/34 - Søknad om tillatelse i ett trinn