NewConstruction UnderBehandling Other

Riving og nybygg av naust i Tyssevegen 691, Fjaler

📍 Tyssevegen 691 , 6968 FLEKKE

Nøkkelinfo

Sakstype
Nybygg
Bygningstype
Other
Bruksareal
24 m²
Kommune
Fjaler
Fylke
Vestland
Gnr / Bnr
39 / 6
Saksnummer
2025/1940
Fase
Under behandling

Om byggesaken

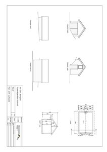
Ny naustbygning på 24 m² (6x4 m) med høyde 4,2 m oppføres på eksisterende brygge i Tyssevegen 691, Fjaler. Det nye naustet erstatter et gammelt naust på 4,8 m² (2,4x2 m) som er terrengtilpasset og bygd inn i berget. Det nye naustet får port mot nord for innkjøring av båt og utstyr, dør mot sør for tilkomst, og et vindu i mønet for naturlig lys. Bygget tilpasses terrenget for å unngå terrenginngrep, og ligger delvis innenfor 100-metersbeltet langs sjøen. Det er ikke tilknyttet vann eller avløp, og tiltaket innebærer ingen endring i adkomst. Bygget er planlagt i samme stil som eksisterende naust og brygge, med fokus på minimal visuell påvirkning og ivaretakelse av natur- og friluftsinteresser.

Produkter og materialer

Fasade Port

🧱 tre

Antall: 1

Port mot nord for innkjøring av båt og utstyr

Port for innkjøring av båt og utstyr i naustet

Grunnarbeid Brygge og terrengtilpasning

🧱 tre og naturstein

Bygging på eksisterende brygge i tre, tilpasning til berget bak

Grunnarbeid for fundamentering på brygge og terrengtilpasning

Fasade Kledning

🧱 tre

Tilpasset terreng og i samme stil som eksisterende naust

Utvendig kledning tilpasset terreng og eksisterende byggestil

Tak Saltak

🧱 ukjent

Takform ikke spesifisert, men vanlig saltak antatt

Tak til naustet, antatt saltak

Vinduer Fasadevindu i møne

🧱 glass med trekarm

Antall: 1

Vindauge i møne for naturlig lys

Vinduer for naturlig lys i naustet

Dører Ytterdør

🧱 tre

Antall: 1

Dør mot sør for tilkomst

Ytterdør for personadkomst til naustet

Tømrer Bygging av naustkonstruksjon

🧱 tre

Ny naustkonstruksjon 6x4 m, høyde 4,2 m

Tømrerarbeid for oppføring av nytt naust

Hendelser

14.04.2026 Vedkommande søknad om dispensasjon og løyve til riving og oppføring av nytt naust på gbnr 39/6
07.04.2026 Fråsegn - dispensasjon - Fjaler 39/6 - Tyssevegen 691 - naust
12.03.2026 Uttale - dispensasjon - naust - gnr. 39 bnr. 6 - Fjaler kommune
09.03.2026 Oversender søknad til uttale - gbnr 39/6 - Tyssevegen 691 - Byggesak - riving - oppføring av nytt naust
15.12.2025 Byggesak - Søknad om løyve - riving - oppføring av nytt naust - gbnr 39/6 - Tyssevegen 691