Facade
Fasadetegning av bygning HUS R4 sett fra vest.
1 / 5
NewConstruction
Soeknad
Other
Oppføring av utvendig stålpipe i Vindharpevegen 40C
📍 Vindharpevegen 40C , 5237 RÅDAL
Nøkkelinfo
- Sakstype
- Nybygg
- Bygningstype
- Other
- Boenheter
- 1
- Kommune
- Bergen
- Fylke
- Vestland
- Gnr / Bnr
- 39 / 665
- Saksnummer
- BYGG-2026/12349
- Fase
- Søknad
Om byggesaken
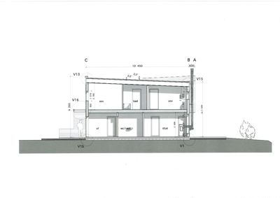
Ny utvendig stålpipe monteres på bolig i Vindharpevegen 40C. Pipa er en teknisk installasjon knyttet til ildsted som skal installeres i boligen. Bygget er et to-etasjes trehus med saltak og 14 vinduer på vestfasaden. Prosjektet inkluderer prosjektering og montering av stålskorstein, og tiltaket er i tiltaksklasse 1. Arbeidet omfatter også nødvendige bygningsmessige tilpasninger for skorsteinen.
Produkter og materialer
Tømrer
Montering og tilpasning
Tømrerarbeid knyttet til montering av stålpipe og fasadetilpasninger
Tømrerarbeid for å sikre korrekt montering og tetting rundt pipe
Fasade
Tilpasning for pipegjennomføring
🧱 Tre
Antall: 1
Fasade i tre med saltak, tilpasning for montering av stålpipe
Bygningsmessige tilpasninger i trefasade for pipeinstallasjon
Ildsted
Vedovn/peisinnsats
Antall: 1
Ildsted tilkoblet stålpipe
Ildsted for oppvarming i bolig, tilkoblet ny stålpipe
Pipe
Utvendig stålpipe
🧱 Stål
Antall: 1
Montering av utvendig stålskorstein til ildsted, tiltaksklasse 1
Stålpipe for montering på bolig, tilkoblet nytt ildsted
Grunnarbeid
Fundament for pipe
Antall: 1
Fundament eller feste for utvendig stålpipe
Grunnarbeid for å sikre stabil montering av stålpipe på fasade eller grunn
Fasader
Hus R4
Vest
- Materiale
- Tre
- Taktype
- Saltak
- Vinduer
- 14
- Dører
- 1
- Synlige etasjer
- 2
Hendelser
08.04.2026
Vindharpevegen 40C Søknad om tillatelse i ett trinn 39/665
—