Section
En håndtegnet snittegning som viser et tverrsnitt gjennom en bygning eller struktur, med angitte høyder (mur 49cm, åpning 100cm) og nivåer (Els Gårds plass, Plan Ludvikbakken 22).
1 / 6
Other
UnderBehandling
Other
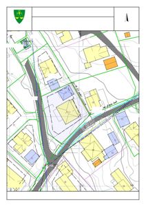
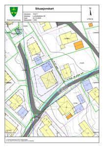
Oppføring av forstøtningsmur og gjerde på Ludvikbakken 20
📍 Ludvikbakken 20 , 2080 EIDSVOLL
Nøkkelinfo
- Sakstype
- Other
- Bygningstype
- Other
- Kommune
- Eidsvoll
- Fylke
- Akershus
- Gnr / Bnr
- 10 / 211
- Saksnummer
- 2026/1779
- Fase
- Under behandling
Om byggesaken
Ny forstøtningsmur oppføres på fast fjell med systemblokker eller tilsvarende, forankret i gneisfjell. Muren plasseres innenfor eiendomsgrensen til Ludvikbakken 20, med netting flettverksgjerde montert på toppen. Muren og gjerdet følger terrengets nivåforskjeller og er plassert ca. 10-15 cm fra nabogrense. Arbeidet inkluderer grunnarbeid, murbygging og montering av nettinggjerde, med hensyn til eksisterende vegetasjon og naboforhold. Tiltaket krever dispensasjon fra regulert byggegrense og samtykke fra nabo for plassering nær grense.
Produkter og materialer
Tømrer
Montering av gjerde
🧱 Netting og stolper
Montering av netting flettverksgjerde på murens topp
Arbeid med montering av gjerde på mur
Fasade
Netting flettverksgjerde
🧱 Netting flettverk
Montert på toppen av forstøtningsmuren, innenfor eiendomsgrense
Nettinggjerde for innhegning montert på murens topp
Grunnarbeid
Forankring i fjell
🧱 Fast fjell (gneis)
Forankring av mur i eksisterende fast fjell uten behov for geoteknisk rapport
Grunnarbeid for å sikre murens stabilitet på fjellgrunn
Mur
Forstøtningsmur i systemblokk
🧱 Systemblokk eller tilsvarende
Forankret i fast fjell (gneis), tilpasset terrengnivå, plassert ca. 10-15 cm fra nabogrense
Forstøtningsmur som skal sikre terreng og avgrense eiendom, bygget på fast fjell med systemblokker
Hendelser
21.04.2026
Gbnr. 10/211 - Ludvikbakken 20 - Mangelbrev - Oppsetting av støttemur med gjerde på toppen
23.03.2026
Gbnr. 10/211 - Ludvikbakken 20 - Søknad om endring av gitt tillatelse eller godkjenning