Other Soeknad Other

Flere byggesaker i Moss og Rygge, inkludert bolig, næringsbygg og VA-anlegg

Nøkkelinfo

Sakstype
Other
Bygningstype
Other
Kommune
Moss
Fylke
Østfold
Saksnummer
2026/41
Fase
Søknad

Om byggesaken

Saken omfatter flere byggesaker i Moss og Rygge kommuner, inkludert oppføring av ny enebolig med garasje i Ekholtveien 11, tilbygg på bolig i Kirkegrenda 53, ombygging og bruksendring av bolig i Elias Blix gate 25, tilbygg og riving i Larkollveien 10, oppføring av nytt kontorbygg i Årvollveien 95, rehabilitering av Stenakaia med forsterkning av kaidekke og peler, samt omfattende sanering av stolper og kabler for Telenor i Moss kommune. Prosjektene inkluderer også tekniske anlegg som VA-ledninger og pumpestasjoner. Byggene varierer fra eneboliger, næringsbygg, hotell til tekniske anlegg. Det foreligger detaljerte tegninger, situasjonsplaner, snitt og fasadetegninger som beskriver konstruksjoner, materialvalg og tekniske løsninger. Flere dispensasjonssøknader er innsendt for avvik fra reguleringsplaner og tekniske krav. Prosjektene er i ulike faser fra nabovarsel til søknad om rammetillatelse og dispensasjon.

Produkter og materialer

Bygningskomponenter Trapper

🧱 Innvendige trapper med rekkverk og håndløper

Antall: 1

Trapp med målinger, rekkverk og håndløper, se skjema AE60001

Innvendig trapp i bolig

Fasade Tømmermannskledning

🧱 Tømmermannskledning i tre

Fasader med tømmermannskledning, svart betongtakstein

Fasade med trepanel og betongtakstein på boligtilbygg

Gulv Parkett og vinyl

🧱 Parkett, vinyl Gerflor Cosmo 2638

Parkett i hotellrom og vinyl i korridorer

Gulvbelegg i hotell

Tak Saltak

🧱 Betongstein

Saltak med betongstein i grå farge

Taktekking på bolig og tilbygg

Bygningskomponenter Dører

🧱 Sikkerhetsglassdører, brannklassifiserte dører EI30, EI60

Dører med brannklasse EI30 og EI60, f.eks. ED-02 10x21 MEI30 Sa, EL-03 11x21 MEI60 Sa

Brann- og sikkerhetsdører til bolig og næringsbygg

Grunnarbeid Peler

🧱 Stålpel, betongpel

Nye peler bores til berg for støtte av kai, stålspunt for forsterkning

Fundamentering for rehabilitering av kai

Dører Glassdør

Antall: 1

Ny glassdør lik eksisterende i hotell

Glassdør i hotell

Betong Betongdekke

🧱 Betong

Nytt betongdekke ca. 50 cm over eksisterende kai

Betongdekke for rehabilitering av kai

Rekkverk Balkongrekkverk

🧱 Glass og stål

Glassrekkverk på balkonger, stålrekkverk på enkelte balkonger

Rekkverk for balkonger i boligblokker

Maling Fasademaling

Maling av fasade i henhold til eksisterende farger

Maling av fasader på bolig og tilbygg

Terrasse Terrasse

🧱 Tre eller kompositt

Terrassearealer ved bolig og hotell

Uteareal med terrasse

VVS VA-anlegg

🧱 PVC, PE rør

Nye VA-ledninger, pumpestasjon, sandfang, kummer, overvanns- og spillvannsledninger

Nytt utvendig vann- og avløpsanlegg

Tømrer Modulbasert konstruksjon

🧱 Trevirke C18 eller bedre

Modulbasert konstruksjon for næringsbygg i Larkollveien 10

Oppføring av tilbygg i tre etasjer

Mur Støttemur

🧱 Betong eller murmateriale

Ny støttemur ved Kirkegrenda 33

Støttemur for terrengtilpasning

Bygningskomponenter Vinduer

🧱 Sikkerhetsglass, 9x21 dører, 10x21 dører, 15x14 vinduer

Flere typer sikkerhetsglassvinduer og dører med ulike mål, f.eks. V-06 SBh. 1009x23M, BD-04 LKS 32 2790x2360

Vinduer og dører til bolig og næringsbygg i ulike størrelser og sikkerhetsklasser

Bad Prefab bad

Prefab bad i hotell

Bad i hotellrom

Elektro Telemast

🧱 Stål

Antall: 1

Ny telemast 36 m høy med tilhørende hytte

Oppføring av telemast

Fasade Glassrekkverk

🧱 Glass

Glassrekkverk på balkonger i boligblokk Ryggeveien 33

Glassrekkverk for balkonger

Fasader

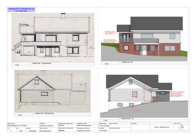
Enebolig

Sør
Materiale
Tre
Taktype
Saltak
Takmat.
Betongstein
Høyde
2.7 m
Mønehøyde
4.4 m
Vinduer
3
Dører
1
Synlige etasjer
1
Vest
Materiale
Tre
Taktype
Saltak
Høyde
2.2 m
Vinduer
1
Dører
1
Balkonger
1
Synlige etasjer
1
Øst
Materiale
Tre
Taktype
Saltak
Høyde
2.7 m
Mønehøyde
4.4 m
Vinduer
2
Dører
0
Synlige etasjer
1
Nord
Materiale
Tre
Taktype
Saltak
Høyde
2.2 m
Vinduer
2
Dører
0
Synlige etasjer
1

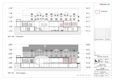
Hotell

Sør
Materiale
Tre
Taktype
Saltak
Vinduer
18
Dører
1
Balkonger
6
Synlige etasjer
3

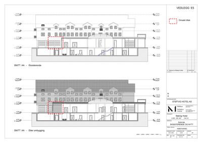
Hovedbygg

Sør
Materiale
Betong
Taktype
Saltak
Vinduer
8
Dører
1
Balkonger
1
Synlige etasjer
2
Sørvest
Materiale
Pusset
Taktype
Flatt tak
Vinduer
4
Dører
1
Synlige etasjer
2

Eksisterende bygg

Materiale
Betong
Taktype
Saltak
Vinduer
5
Dører
1
Balkonger
1
Synlige etasjer
2

Sykehus

Ukjent
Materiale
Platemontasje
Høyde
6.4 m
Vinduer
12
Dører
0
Synlige etasjer
2
Bak
Materiale
Platemontasje
Vinduer
0
Dører
1
Synlige etasjer
2
Inngang
Materiale
Platemontasje
Vinduer
0
Dører
1
Synlige etasjer
2

Hendelser

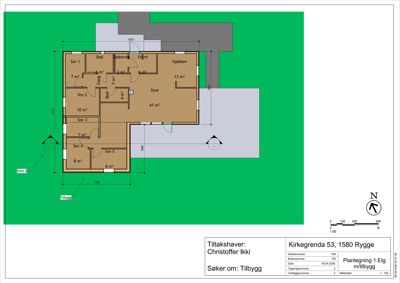
16.04.2026 Kirkegrenda 53 - 148/129 - nabovarsel - oppføring av tilbygg
10.04.2026 Kleberget, Værlegata, Carl Jensens vei - 2/2540/0/0 - nabovarsel - va-anlegg
08.04.2026 Idunns gate 6 - 1/1352 - nabovarsel - oppføring av bolig
08.04.2026 Larkollveien 801 - 134/37 - nabovarsel - endring av bygg
07.04.2026 Årvollveien 95 - 164/324 - nabovarsel -dispensasjon - nytt bygg
31.03.2026 Båthavnveien 50 - 187/191 - nabovarsel - nytt utvendig VA anlegg
30.03.2026 Kallumveien 23 - 2/1282 - nabovarsel - oppføring av telemast
19.03.2026 Kransen 18 - 2/1454 - nabovarsel - revidert dispensasjonssøknad - bruksendring - bolig
06.03.2026 Sandbukta-Moss-Såstad - Korreksjon av e-post-adresse - nabovarsel for søknad om dispensasjon fra grenseverdier for støy fastsatt i reguleringsplaner for Nytt dobbeltspor
06.03.2026 Ryggeveien 96 - 197/162 - nabovarsel - bruksendring
05.03.2026 Sandbukta-Moss-Såstad - nabovarsel for søknad om dispensasjon fra grenseverdier for støy fastsatt i reguleringsplaner for nytt dobbeltspor
04.03.2026 Ekholtveien 11A - 193/108 - nabovarsel - fasadeendring
03.03.2026 Larkollveien 10 - 167/80 - nabovarsel - utvendig endring - riving
02.03.2026 Buveien 7 - 3/634 - nabovarsel - nytt bygg og riving - bolig
23.02.2026 Elias Blix gate 25 - 1/1832 - nabovarsel - bruksendring, tilbygg og fasadeendring
19.02.2026 Strandgata 10 - 2/2049 - nabovarsel - endring av anlegg - havn
06.02.2026 Utsynet 34 - 1/2665 - nabovarsel - ombygging av enebolig over to plan
23.01.2026 Kongens gate 38 - 2/1438 - nabovarsel - bruksendring og fasadeendring
19.01.2026 Rådeskogen 37 - 159/8 - nabovarsel - fradeling
16.01.2026 Peer Gynts vei 78 - 3/1372 - nabovarsel - midlertidig brakkerigg
12.01.2026 Kirkegrenda 33 - 148/72 - nabovarsel - tilbygg og bruksendring
02.01.2026 Rabekkgata 1A - 2/1729 - nabovarsel - fasadeendring - innglassing av balkonger
02.01.2026 Varsel om arbeid med sanering av stolper og kabler for Telenor i Moss kommune