Other Soeknad Other

Utskifting av heis i Stabburveien 22, Fredrikstad

📍 Stabburveien 22 , 1617 FREDRIKSTAD

Nøkkelinfo

Sakstype
Other
Bygningstype
Other
Bruksareal
0 m²
Kommune
Fredrikstad
Fylke
Østfold
Gnr / Bnr
201 / 95
Saksnummer
2026/11014
Fase
Søknad

Om byggesaken

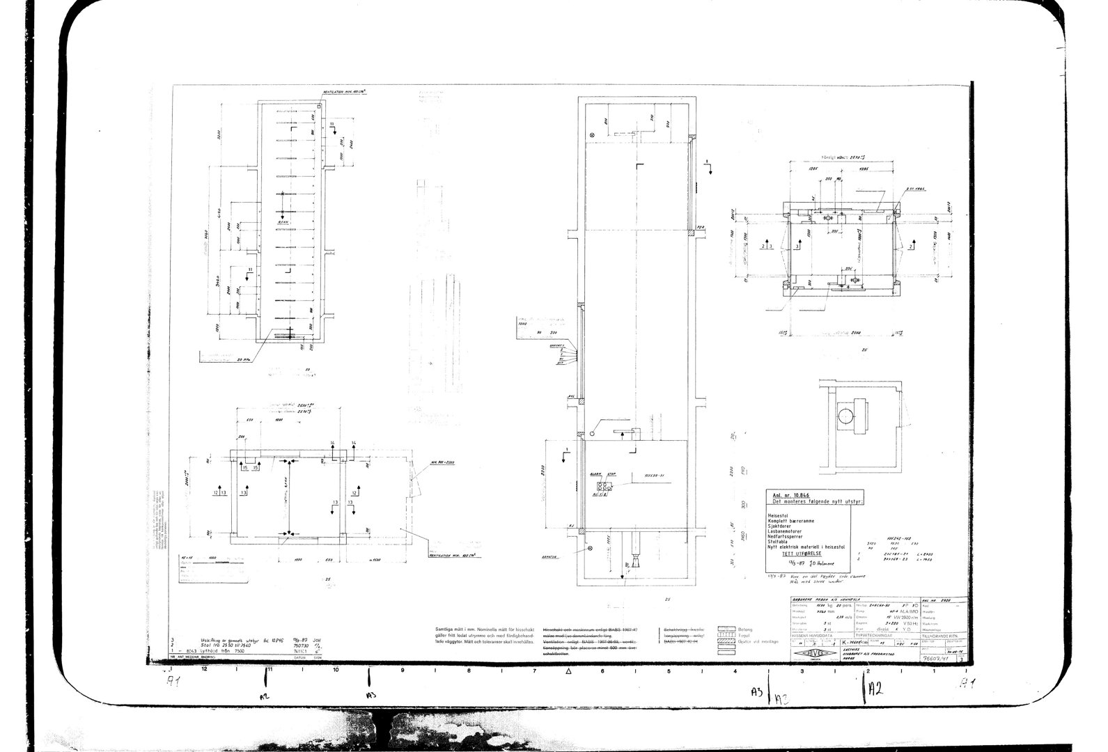
Utskifting av eksisterende heis i eksisterende heissjakt i bygget på Stabburveien 22. Prosjektet omfatter demontering av gammel heis og montering av ny heis med komplett bæreramme, sjaktdører, lasbanemotorer, nedfartssperrer og ny elektrisk materiell i heisstol. Heisen har en korgbredde på ca. 1428 mm og dybde på 2200 mm, med sjaktbredde på 1928 mm og sjaktdybde på 2611 mm. Arbeidet inkluderer ventilasjon i henhold til gjeldende krav og tilpasning til eksisterende sjakt og bygningsstruktur.

Produkter og materialer

Annet Heisinstallasjon

Antall: 1

Ny heis med komplett bæreramme, sjaktdører, lasbanemotorer, nedfartssperrer, ny elektrisk materiell i heisstol, ventilasjon iht. BAB standard

Utskifting av eksisterende heis i eksisterende sjakt med ny heis og tilhørende komponenter

Grunnarbeid Tilpasning eksisterende sjakt

Tilpasning og klargjøring av eksisterende heissjakt for ny heis

Arbeid knyttet til demontering av gammel heis og forberedelse av sjakt for ny heis

Tømrer Montering av sjaktdører og ramme

Montering av sjaktdører og bæreramme for ny heis

Tømrerarbeid knyttet til montering av heisens mekaniske deler

Ventilasjon Ventilasjon i heissjakt

Ventilasjon i henhold til BAB standard

Ventilasjon for heissjakt i samsvar med gjeldende krav

Elektro Elektrisk materiell i heisstol

Nytt elektrisk materiell for heisinstallasjon

Elektrisk materiell for drift og sikkerhet i ny heis

Plantegning

Heis 0.0 m²

Etasje 1 0.0 m²

Rom Areal Vinduer Dører

Hendelser

14.04.2026 Ett-trinns søknad - Stabburveien 22 - Eiendom 201/95 - Bygningstekniske installasjoner - Utskifting av eksisterende heis
14.04.2026 Bekreftelse på mottatt søknad - Ett-trinns søknad - Bygningstekniske installasjoner - Stabburveien 22 - Eiendom 201/95