FloorPlan
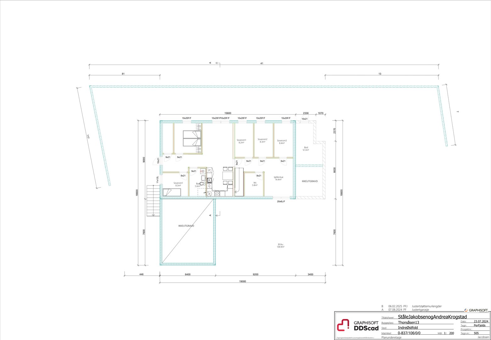
Etasjeplan (1. etasje) som viser romfordeling, vegger og dimensjoner for en bolig.
1 / 1
Other
Ferdigattest
Other
Oppføring av støttemur på Thonsåsen 13, Knapstad
📍 Thonsåsen 13 , 1823 KNAPSTAD
Nøkkelinfo
- Sakstype
- Other
- Bygningstype
- Other
- Kommune
- Indre Østfold
- Fylke
- Østfold
- Gnr / Bnr
- 837 / 106
- Saksnummer
- 2025/1614
- Fase
- Ferdigattest
Om byggesaken
Ny støttemur oppføres på eiendommen Thonsåsen 13 for å forbedre uteoppholdsarealet. Muren er plassert nærmere enn 0,2 meter fra nabogrense med skriftlig samtykke fra berørte naboer. Støttemuren er prosjektert og tegnet med oppdaterte plantegninger og situasjonsplan, og det er tatt hensyn til vann- og avløpsledninger på tomten. Muren er sikret med midlertidig gjerde under byggeperioden, og det gjenstår kun mindre arbeider før ferdigattest. Tiltaket er godkjent av kommunen og har gjennomgått nabovarsling uten merknader.
Produkter og materialer
Tømrer
Arbeid med fundament og støttemur
Utførelse av støttemur iht. godkjente tegninger og plan
Byggearbeid knyttet til støttemur
Grunnarbeid
Tomtearbeid for støttemur
Grunnarbeid for fundamentering av støttemur, inkludert flytting av private vann- og avløpskummer
Grunnarbeid for oppføring av støttemur på tomt
Mur
Støttemur
Antall: 1
Støttemur plassert nærmere enn 0,2 m fra nabogrense med nabosamtykke, iht. situasjonsplan og tegninger datert 11.01.2025 og oppdateringer 06.02.2025
Oppføring av støttemur for terrengutjevning og forbedring av uteoppholdsareal
Rekkverk
Sikringsgjerde på støttemur
Antall: 1
Midlertidig gjerde montert på støttemur for sikring under byggeperioden
Sikring av støttemur med midlertidig gjerde iht. krav for midlertidig brukstillatelse
Plantegning
Enebolig 138.9 m²
Etasje 0 138.9 m²
| Rom | Areal | Vinduer | Dører |
|---|---|---|---|
| Kjellerstue 001 | 14.4 m² | 0 | 1 |
| Soverom 1 002 | 8.3 m² | 0 | 1 |
| Soverom 2 003 | 8.3 m² | 0 | 1 |
| Soverom 3 004 | 8.4 m² | 0 | 1 |
| Soverom 4 005 | 8.3 m² | 0 | 1 |
| Bad 006 | 5.6 m² | 0 | 1 |
| Wc 007 | 5.8 m² | 0 | 1 |
| Korridor 008 | 12.3 m² | 0 | 0 |
Hendelser
13.04.2026
Gbnr 837/106 - Thonsåsen 13 - Søknad om ferdigattest
13.04.2026
Gbnr 837/106 - Thonsåsen 13 - Støttemur - Ferdigattest
10.04.2026
Gbnr 837/106 - Thonsåsen 13 - Støttemur - Midlertidig brukstillatelse - Dokumentasjon på sikring av støttemur
09.04.2026
Gbnr 837/106 - Thonsåsen 13 - Støttemur - Midlertidig brukstillatelse
26.03.2026
Gbnr 837/106 - Thonsåsen 13 - Støttemur - Søknad om midlertidig brukstillatelse
28.03.2025
Gbnr 837/106 - Thonsåsen 13 - Støttemur - Tillatelse til tiltak
21.03.2025
Gbnr 837/106 - Thonsåsen 13 - Mangel - Avstandserklæring
04.03.2025
Gbnr 837/106 - Thonsåsen 13 - Mangler på avstandserklæring
04.03.2025
Gbnr 837/106 - Thonsåsen 13 - Støttemur - Mangel på avstandserklæring - Tilbakemelding
07.02.2025
Gbnr 837/106 - Thonsåsen 13 - Avklaring på lengde støttemur
06.02.2025
Gbnr 837/106 - Thonsåsen 13 - Avklaring på lengde støttemur
05.02.2025
Gbnr 837/106 - Thonsåsen 13 - Oversendelse av svar på henvendelse på avstand til va
23.01.2025
Gbnr 837/106 - Thonsåsen 13 - Etterspør dokumentasjon på nabogrense og VA
23.01.2025
Gbnr 837/106 - Thonsåsen 13 - Støttemur - Svar på etterspørsel om nabogrense og VA
23.01.2025
Gbnr 837/106 - Thonsåsen 13 - Svar på henvendelse om nabovarsel
17.01.2025
Gbnr 837/106 - Thonsåsen 13 - Søknad om oppføring av støttemur