Rehabilitation Soeknad Other

Oppgradering og ny spillvannspumpestasjon på Carsten Ankers veg, Dønnum

Nøkkelinfo

Sakstype
Rehabilitering
Bygningstype
Other
Bruksareal
150 m²
Kommune
Eidsvoll
Fylke
Akershus
Gnr / Bnr
150 / 6
Saksnummer
2026/1931
Fase
Søknad

Om byggesaken

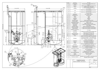
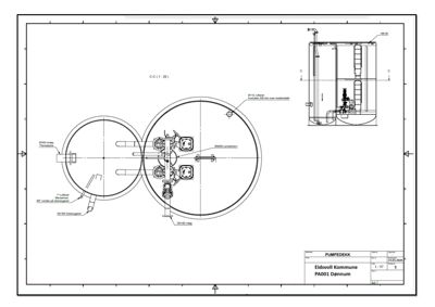
Ny spillvannspumpestasjon PA001 på Dønnum i Eidsvoll kommune bygges som erstatning for en eldre og utilstrekkelig pumpestasjon. Anlegget inkluderer en oppgradert pumpesump med nytt pumpesystem, moderne overvåkings- og styringsinstallasjoner, forbedret tetthet og miljøsikring, samt et maskinrom med overbygg i tre og saltak med korrugerte plater. Det etableres også en utvidet parkerings- og snuplass på ca. 150 m² for drift og vedlikehold, tilpasset sugebil og annet nødvendig utstyr. Tiltaket omfatter også tekniske installasjoner som trykkrør, ventiler, lensepumper, nivåmålere og ventilasjon, samt tilrettelegging for sikker og effektiv drift og inspeksjon.

Produkter og materialer

VVS Pumper og lensepumper

Antall: 1

Pumpe NT6020 HT, lensepumpe SMX3, sumpomrører, slamsuger DN100

Pumpesystem for spillvannshåndtering

Grunnarbeid Tomteutvidelse og opparbeidelse av snuplass

Antall: 150

Utvidelse av tomt til ca. 150 m² med hensyn til snuplass for sugebil og parkeringsplass

Grunnarbeid for ny tomt og adkomst

Tømrer Dører

🧱 Tre

Antall: 1

Ytterdør i tre til overbygg

Dør til overbygg for maskinrom

Fasade Overbygg i tre med saltak

🧱 Tre, korrugerte takplater

Antall: 1

Overbygg med gesimshøyde 3,2 m, saltak med korrugerte plater

Bygning for maskinrom og teknisk utstyr

Betong Pumpesump og grunnmur

Antall: 1

Pumpesump Ø1600 mm, korbogen med skjørt, grunnmursplater

Betongkonstruksjon for pumpesump og fundamentering av pumpestasjon

Stål Rør og ventiler

🧱 SS316 rustfritt stål

Trykkrør DN80, DN100, sluseventiler, kulekikker, tilbakeslagsventiler av type AVK, skyvespjeldsventil

Rørnett og ventiler for spillvannspumpestasjon

Ventilasjon Ventilasjon av sump og maskinrom

🧱 PVC, SS316

Ventilasjonsrør Ø110 mm, avsluttes 200-3000 mm over bunn

Ventilasjon for pumpestasjonens tekniske rom

Elektro Overvåkings- og styringssystem

Antall: 1

SCADA-system, alarmtester, manometeropplegg, nivåmålere ultralyd

Elektronisk overvåking og styring av pumpestasjon

Fasader

Overbygg

Nord
Materiale
Tre
Taktype
Saltak
Takmat.
Korrugerte plater
Høyde
3.2 m
Vinduer
0
Dører
1
Synlige etasjer
1

Hendelser

21.04.2026 Gbnr. 150/6 - Purring - Byggesøknad for oppgradering av eksisterende spillvannspumpestasjon PA001 Dønnum i Eidsvoll kommune
10.04.2026 Gbnr. 150/6 - Byggesøknad for oppgradering av eksisterende spillvannspumpestasjon - komplettering
27.03.2026 Gbnr. 150/6 - Ett-trinns søknadsbehandling - oppgradering av eksisterende spillvannspumpestasjon PA001 Dønnum
27.03.2026 Gbnr. 150/6 - Mottatt søknad