Rehabilitation Soeknad Other

Rehabilitering av verneverdig kontorbygg i Kammerherreløkka 1, Porsgrunn

📍 Kammerherreløkka 1 , 3915 PORSGRUNN

Nøkkelinfo

Sakstype
Rehabilitering
Bygningstype
Other
Bruksareal
285 m²
Kommune
Porsgrunn
Fylke
Telemark
Gnr / Bnr
200 / 4074
Saksnummer
2026/4524
Fase
Søknad

Om byggesaken

Prosjektet omfatter omfattende rehabilitering av et verneverdig kontorbygg på ca. 285 m² bruttoareal fordelt på kjeller, 1. og 2. etasje i Kammerherreløkka 1, Porsgrunn. Bygget består av en eldre murbygning i jugendstil med pusset murfasade som skal flekkes, pusses og males i eksisterende fargepalett. Eksisterende vinduer i 2. etasje skiftes ut med nye, identiske vinduer, og inngangsdører erstattes med tilsvarende nye. Kjelleren, som i dag er kald og har dårlig betonggulv, får etablert armert betongbjelker for å hindre ytterligere skader på yttervegger. Innvendig oppgraderes fundamenter, elektro, sanitær og ventilasjon etter behov. Byggets karakter, volum og fasadeåpninger beholdes uendret, og tiltaket vurderes som vedlikeholdsarbeid med fokus på å bevare byggets verneverdier. Bygget skal brukes som kontorlokaler for Porsgrunn Utvikling AS.

Produkter og materialer

VVS Sanitær og ventilasjon

Utbedring og utskifting ved behov av sanitær- og ventilasjonsanlegg

Oppgradering av tekniske installasjoner

Betong Armert betongbjelker i kjeller

🧱 Armert plass-støpt betong

Betongbjelker mellom kjelleryttervegger i nord-syd retning for å hindre skader

Forsterkning av kjelleryttervegger med betongbjelker

Fasade Pusset murfasade

🧱 Mur, egnet murmaling

Flekkes, pusses og males i eksisterende fargepalett

Oppussing og vedlikehold av eksisterende pusset murfasade

Dører Ytterdører

🧱 Tre, tilsvarende eksisterende

Antall: 2

Nye inngangsdører som erstatter tidligere utskiftede dører, tilsvarende eksisterende

Utskifting av inngangsdører

Elektro Elektriske installasjoner

Utbedring og utskifting ved behov av elektriske anlegg

Oppgradering av elektriske installasjoner

Tømrer Innvendige arbeider

Vedlikeholdsarbeider innvendig uten endring av rominndeling

Innvendig rehabilitering og vedlikehold

Vinduer Fasadevindu 2. etasje

🧱 Tre, identisk utseende som eksisterende

Antall: 3

Nye vinduer som er utseendemessig identiske med eksisterende, benytter eksisterende åpninger

Utskifting av vinduer i 2. etasje

Gulv Betonggulv i kjeller

🧱 Betong

Utskifting av dårlig betonggulv i kjeller

Oppgradering av kjellergulv

Plantegning

Enebolig 195.0 m²

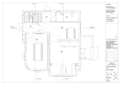
Etasje 1 107.0 m²

Rom Areal Vinduer Dører
TRAPP 100 6.0 m² 0 1
TRAPP KJELLER 101 2.0 m² 0 0
ENTRE 102 5.0 m² 0 1
HCWC 103 6.0 m² 0 1
KONTOR 104 19.0 m² 0 1
KONTOR 105 28.0 m² 0 1
MØTE 106 23.0 m² 0 1

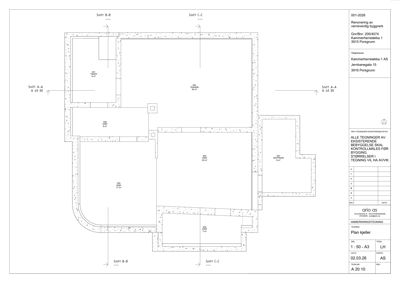
Etasje 0 88.0 m²

Rom Areal Vinduer Dører
TRAPP 001 8.0 m² 0 0
TEKNISK 002 30.0 m² 0 0
DISP 003 20.0 m² 0 0
DISP 004 7.0 m² 0 0
DISP 005 17.0 m² 0 0
DISP 006 6.0 m² 0 0
KRYPROM 007 8.0 m² 0 0

Kontorbygg 104.0 m²

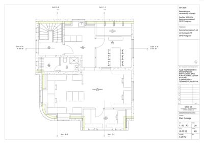
Etasje 2 104.0 m²

Rom Areal Vinduer Dører
Trapp 200 9.0 m² 0 1
Kjøkken 201 12.0 m² 0 1
Kopi/lager 202 5.0 m² 0 1
Møte 203 11.0 m² 0 1
Kontor landskap 204 35.0 m² 2 1
Kontor 205 8.0 m² 1 1
Bad 206 3.0 m² 0 1
Gard 207 3.0 m² 0 1

Fasader

Enebolig

Nord
Materiale
Tre
Taktype
Saltak
Vinduer
5
Dører
1
Synlige etasjer
2
Øst
Materiale
Tre
Taktype
Saltak
Vinduer
2
Dører
1
Synlige etasjer
2
Sør
Materiale
Tre
Taktype
Saltak
Vinduer
3
Dører
1
Synlige etasjer
2
Vest
Materiale
Tre
Taktype
Saltak
Vinduer
3
Dører
1
Synlige etasjer
2

Hendelser

17.04.2026 Søknad om tillatelse i ett trinn - Gbnr. 200/4074 - Endring av bygg innvendig og utvendig - rehabilitering