Demolition Rammetillatelse Other

Riving av naust og oppgradering av brygge og parkering på Hamn

📍 Hamn 10 , 4105 JØRPELAND

Nøkkelinfo

Sakstype
Riving
Bygningstype
Other
Kommune
Strand
Fylke
Rogaland
Gnr / Bnr
110 / 34
Saksnummer
2026/459
Fase
Rammetillatelse

Om byggesaken

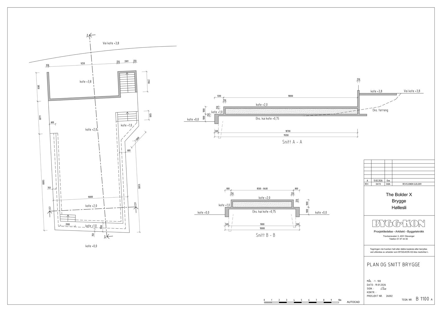
Eksisterende naust på eiendommen Hamn, Gnr 110 Bnr 34, rives. Bryggeområdet rehabiliteres, oppgraderes og sikres for å tåle bølgepåvirkning opp til kote +2,60, med sikte på å sikre adkomst og ankring for båter opp til 30 fot. Parkeringsarealet opparbeides i henhold til reguleringsbestemmelser for området. Tiltaket omfatter også terrengtilpasning og oppføring av støttemur ved tilpasning til offentlig vei. Arbeidene inkluderer grunnarbeider, betongkonstruksjoner og oppgradering av tekniske anlegg i tilknytning til brygge og parkering. Tiltaket er knyttet til hotell/overnattingsformål i området, men ny bygning for dette formålet vil søkes separat.

Produkter og materialer

Fasade Støttemur

🧱 Mur

Antall: 1

Oppføring av støttemur innenfor bestemmelsesområdet ved tilpasning av avkjørsel til offentlig vei

Støttemur for terrengtilpasning ved parkeringsareal og vei

Grunnarbeid Opparbeidelse av parkeringsareal

Antall: 1

Opparbeidelse av parkeringsareal i henhold til reguleringsbestemmelser

Terrengtilpasning, opparbeidelse av parkeringsplass og støttemur ved tilpasning til vei

Betong Bryggeoppgradering

🧱 Betong

Antall: 1

Oppgradering og sikring av brygge for bølgepåvirkning opp til kote +2,60

Rehabilitering og forsterkning av eksisterende brygge med plasstøpte betongkonstruksjoner

Riving Riving av naust

Antall: 1

Riving av eksisterende naust på 53 m²

Fjerning og sanering av eksisterende naustbygg på eiendommen

Annet Varslingsanlegg

Antall: 1

Varslingsanlegg i hvert rom med serietilkobling for tidlig varsling ved brann

Installasjon av brannvarslingssystem i tilknytning til tiltaket

Hendelser

21.04.2026 Vedtak klagesak - oppdatert endring i Plan for Hamn Høllesli - PlanID 112906R01
21.04.2026 110/34 Tillatelse til tiltak - riving av naust - oppgradere brygge - parkering - Hamn
17.04.2026 110/34 Dokumentsjekk - ikke behov for mangelbrev
18.02.2026 110/34 Søknad om tillatelse i ett trinn - riving av naust/oppgradere brygge/parkering - Hamn - The Bolder Experience As