Extension Avslatt Other

Oppføring av sommerstue på terrasse, Gravdalsveien 172

📍 Gravdalsveien 172 , 5165 LAKSEVÅG

Nøkkelinfo

Sakstype
Tilbygg
Bygningstype
Other
Bruksareal
85 m²
Kommune
Bergen
Fylke
Vestland
Gnr / Bnr
146 / 14
Saksnummer
BYGG-2026/11037
Fase
Avslått

Om byggesaken

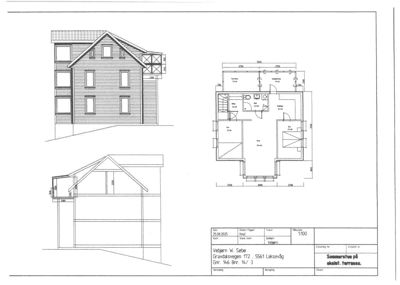
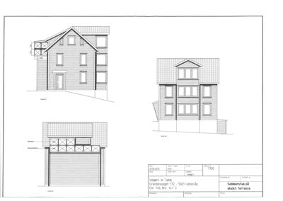
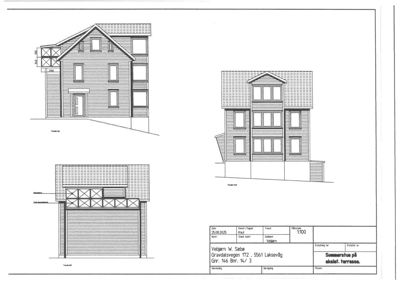
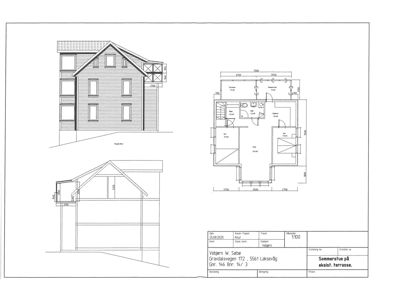
Ny sommerstue i tre med saltak oppføres på en eksisterende terrasse i Gravdalsveien 172. Bygget har to etasjer med gesimshøyde på 6,5 meter og mønehøyde på 8,2 meter. Fasaden består av treverk, med totalt 7 vinduer fordelt på nord- og vestfasade, samt en dør og en balkong på nordfasaden. Sommerstuen erstatter en tidligere terrasse i dårlig teknisk stand, som må bygges opp på nytt. Garasje i tre med saltak og garasjeport finnes også på eiendommen, men er ikke del av dette tiltaket.

Produkter og materialer

Tømrer Bygging av sommerstue

Tømrerarbeid for oppføring av sommerstue i tre med saltak

Tømrerarbeid for konstruksjon og montering

Tak Saltak

🧱 Tre med taktekking

Antall: 1

Saltak med gesimshøyde 6,5 m og mønehøyde 8,2 m

Saltak til sommerstue

Dører Ytterdør

🧱 Ikke spesifisert

Antall: 1

1 dør på nordfasade

Ytterdør til sommerstue

Grunnarbeid Terrasseoppbygging

🧱 Trykkimpregnert tre eller annet egnet materiale

Oppbygging av terrasse i dårlig teknisk stand, erstatning for råtnet uimpregnert materiale

Rehabilitering og oppbygging av terrasse som fundament for sommerstue

Balkong Balkong med rekkverk

🧱 Tre eller glass (usikkert, glass rekkverk nevnt i søknad)

Antall: 1

Balkong på nordfasade, opprinnelig glassrekkverk, vurdert endring til trerekkverk

Balkong med rekkverk til sommerstue

Fasade Trepanel

🧱 Tre

Trepanel på fasader nord, sør og vest

Trepanel til yttervegger på sommerstue

Vinduer Fasadevindu

🧱 Tre/aluminium eller ikke spesifisert

Antall: 7

6 vinduer på nordfasade, 1 vindu på vestfasade

Vinduer til sommerstue

Fasader

Sommerstue

Nord
Materiale
Tre
Taktype
Saltak
Høyde
6.5 m
Mønehøyde
8.2 m
Vinduer
6
Dører
1
Balkonger
1
Synlige etasjer
2
Sør
Materiale
Tre
Taktype
Saltak
Høyde
6.5 m
Mønehøyde
8.2 m
Vinduer
0
Dører
0
Synlige etasjer
2
Vest
Materiale
Tre
Taktype
Saltak
Høyde
6.5 m
Mønehøyde
8.2 m
Vinduer
1
Dører
0
Synlige etasjer
2

Garasje

Øst
Materiale
Tre
Taktype
Saltak
Vinduer
1
Dører
1
Synlige etasjer
1

Hendelser

23.03.2026 Orientering om saksbehandlingsalternativer- 146/14/0/0 Gravdalsveien 172, sommerstue på eks terrasse
06.03.2026 Orientering om klagefrist- 146/14/0/0 Gravdalsveien 172, sommerstue på eks terrasse
04.03.2026 Fakturagrunnlag
04.03.2026 ubw ordre 20689858/avslag
19.02.2026 Avslag, Gravdalsveien 172, sommerstue på eks terrasse
22.10.2025 Søknad - 146/14/0/0 Gravdalsveien 172, sommerstue på eks terrasse