Rendering
3D-visualisering av en liten uthus eller garasje plassert mellom to eksisterende bygninger, sett fra front.
1 / 8
Extension
Soeknad
Other
Oppføring av terrasse og bod ved Hanangermona 26A
📍 Hanangermona 11A , 4550 FARSUND
Nøkkelinfo
- Sakstype
- Tilbygg
- Bygningstype
- Other
- Bruksareal
- 26 m²
- Kommune
- Farsund
- Fylke
- Agder
- Gnr / Bnr
- 16 / 95
- Saksnummer
- 26/00615
- Fase
- Søknad
Om byggesaken
Ny terrasse på 13,65 m² og to boder på 6,24 m² hver oppføres mellom Hanangermona 24 og Hanangermona 26A. Terrassen og bodene er frittstående konstruksjoner som skal deles med gjerde for å gi privatliv til hver leilighet. Bygget er et uthus med totalt 26,13 m² i ett plan uten vinduer eller dører tegnet inn. Prosjektet omfatter utendørs konstruksjoner i tilknytning til eksisterende boligområde.
Produkter og materialer
Mur
Bod
Antall: 2
To boder på 6,24 m² hver, uten vinduer eller dører tegnet inn
Frittstående boder tilknyttet terrasseområdet
Fasade
Gjerde
Antall: 1
Gjerde som skal dele terrasseområdet i to for privatliv
Gjerde mellom terrassene for å skille eiendommene
Fasade
Terrasse
Antall: 1
Terrasse på 13,65 m² uten vinduer eller dører, med planlagt gjerde for privatliv
Utendørs terrassekonstruksjon mellom to eiendommer
Grunnarbeid
Fundamentering
Grunnarbeid og fundamentering for terrasse og bod
Tømrer
Bygningskonstruksjon
Tømrerarbeid for oppføring av terrasse og bod
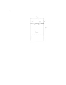
Plantegning
Uthus 26.1 m²
Etasje 0 26.1 m²
| Rom | Areal | Vinduer | Dører |
|---|---|---|---|
| Bod U01 | 6.2 m² | 0 | 0 |
| Bod U02 | 6.2 m² | 0 | 0 |
| Terasse U03 | 13.7 m² | 0 | 0 |
Hendelser
23.04.2026
26/00615-4 Svar på henvendelse om søknadsplikt for terrasse og bod 16/95/0/27
23.04.2026
26/00615-3 DOK-analyse - 16/95/0/27 Hanangermona 26A
15.04.2026
26/00615-2 Etterspør status - henvendelse om oppføring av terrasse og bod - 16/95, Hanangermona
23.03.2026
26/00615-1 Spørsmål om oppføring av terrasse og bod mellom Hanangermona 24 og Hanangermona 26 A er søknadspliktig - 16/95