Facade
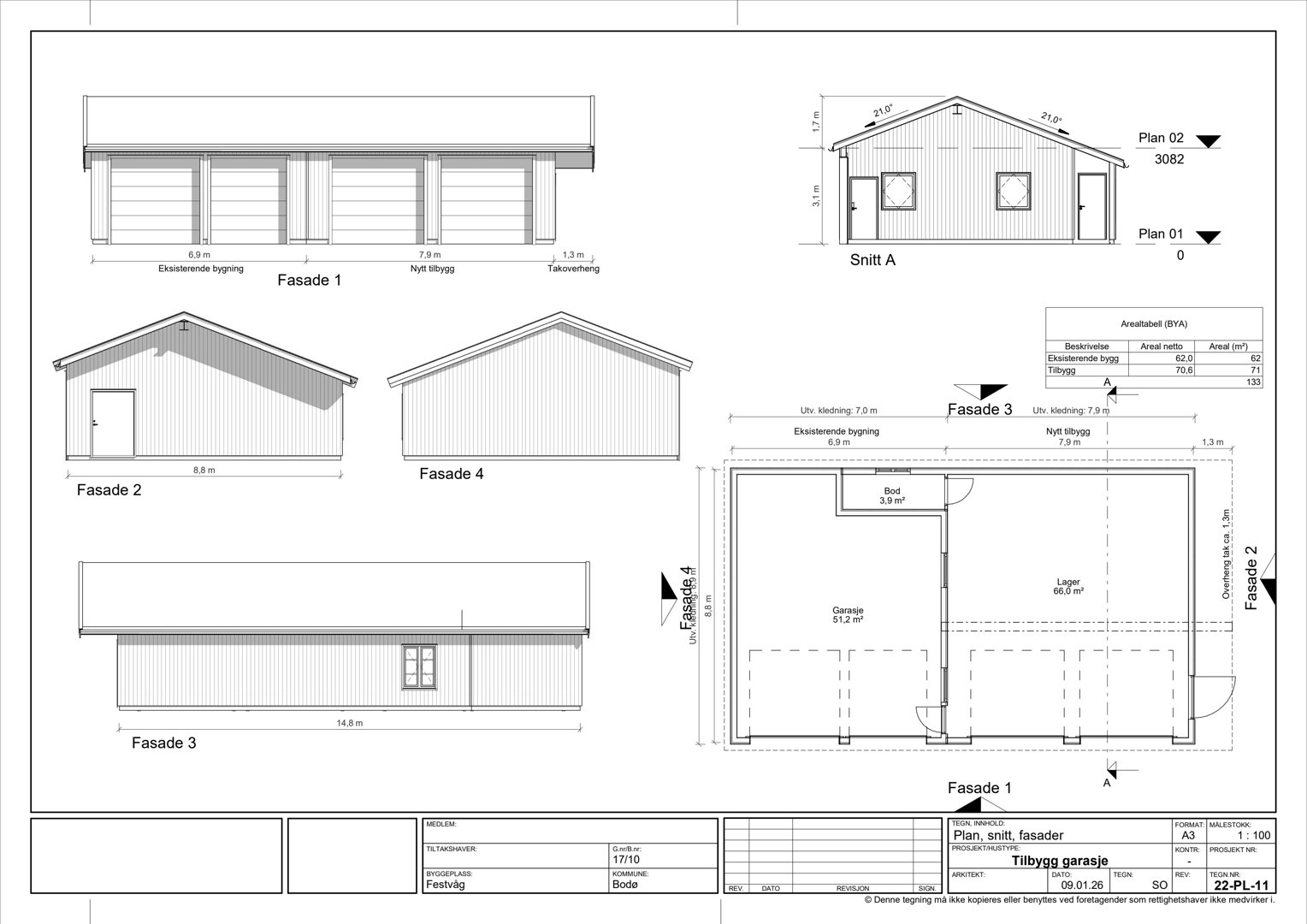
Tegning som viser fasadeoppsett, snitt og etasjeplan for en garasje.
1 / 3
Extension
UnderBehandling
Other
Tilbygg driftsbygning/garasje på Kobbhamran 4, Bodø
📍 Kobbhamran 15 , 8016 BODØ
Nøkkelinfo
- Sakstype
- Tilbygg
- Bygningstype
- Other
- Bruksareal
- 133 m²
- Kommune
- Bodø
- Fylke
- Nordland - Nordlánnda
- Gnr / Bnr
- 17 / 10
- Saksnummer
- 2026/12426
- Fase
- Under behandling
Om byggesaken
Ny tilbygg på ca. 70,7 m² til eksisterende driftsbygning/garasje på landbrukseiendommen Kobbhamran 4 i Bodø. Tilbygget skal benyttes til lager og oppbevaring av driftsutstyr knyttet til gårds- og skogbruk. Eksisterende bygning har et areal på ca. 62 m², og det totale arealet etter tilbygg blir ca. 133 m². Bygget har utvendig kledning i tre og flatt tak med takoverheng på ca. 1,3 meter. Bygningen skal ikke ha innlagt vann eller avløp, og ligger innenfor LNFR-område med hensynssone landbruk. Det er ikke planlagt ny eller endret adkomst.
Produkter og materialer
Grunnarbeid
Fundamentering og grunnarbeid for tilbygg
Dokumentasjon på sikkerhet mot kvikkleireskred etterspurt
Grunnarbeid og fundamentering for tilbygg på landbrukseiendom
Tømrer
Bygging av tilbygg i tre
🧱 Tre
Tilbygg på ca. 70,7 m² i tre med lager og bod
Tømrerarbeid for oppføring av tilbygg til driftsbygning/garasje
Garasjeport
Garasjeport i eksisterende bygg
Antall: 1
Eksisterende garasjeport i bygningen
Fasade
Utvendig kledning i tre
🧱 Tre
Utvendig kledning i tre på tilbygg og eksisterende bygg
Kledning for tilbyggets yttervegger for å matche eksisterende bygning
Tak
Flatt tak med takoverheng
Flatt tak med ca. 1,3 m takoverheng
Taktekking og konstruksjon for tilbyggets flate tak
Fasader
Garasje
Ukjent
- Materiale
- Tre
- Taktype
- Flatt tak
- Vinduer
- 0
- Dører
- 0
- Synlige etasjer
- 1
Hendelser
17.04.2026
Foreløpig svar - behov for tilleggsdokumentasjon
13.04.2026
Svar på anmodning om behandling etter jordloven
20.03.2026
Anmodning om uttalelse
20.03.2026
Anmodning om behandling etter jordloven
20.03.2026
Informasjon om søknaden
19.02.2026
Søknad uten ansvarsrett - Kobbhamran 4
19.02.2026
Bekreftelse på mottatt søknad - Kobbhamran 4