Extension UnderBehandling Other

Oppføring av altan på Leikanger 76, Stadlandet

📍 Leikanger 76 , 6750 STADLANDET

Nøkkelinfo

Sakstype
Tilbygg
Bygningstype
Other
Bruksareal
27 m²
Kommune
Stad
Fylke
Vestland
Gnr / Bnr
224 / 129
Saksnummer
2026/6255
Fase
Under behandling

Om byggesaken

Ny utvendig altan på 26,9 m² som tilbygg til leilighet i 2. etasje på bygget Strandtorget, Leikanger 76. Altanen er 2,5 meter ut fra fasaden og 11,4 meter lang langs fasaden mot øst, understøttet av limtresøyler på eksisterende mur ved utvendig trapp. Konstruksjonen er endret til utkraget løsning for å unngå økning i bebygd areal (BYA). Altanen får rekkverk som på resten av bygget og er utført i trykkimpregnert materiale. Tiltaket omfatter fasadeendring på bygget og er plassert i et område regulert til kombinert bolig og forretning. Det er vurdert at tiltaket ikke medfører økt risiko for skred eller flom, og nabosamtykke foreligger for plassering nær nabogrense.

Produkter og materialer

Maling Overflatebehandling

Overflatebehandling av treverk på altan og rekkverk, eventuelt impregnering

Beskyttelse og estetisk behandling av altanens treverk

Grunnarbeid Eksisterende mur og trapp

🧱 Betong

Altanens støtter plasseres på eksisterende mur og trapp som er støpt sammen med grunnmur

Bruk av eksisterende mur og trapp som fundament for altanens bæresystem

Stål Limtresøyler

🧱 Limtre

Understøttelse av altan på eksisterende mur ved utvendig trapp

Bærekonstruksjon for altan med limtresøyler som overfører last til eksisterende mur

Tømrer Tømrerarbeid for altan

Utførelse av altan i trykkimpregnert tre, inkludert rekkverk og bjelkelag

Tømrerarbeid knyttet til bygging av altan og tilhørende konstruksjoner

Fasade Altan med rekkverk

🧱 Trykkimpregnert tre

Antall: 1

Altan 26,9 m², 2,5 m utstikk, 11,4 m lang, rekkverk som resten av bygget

Utvendig altan som tilbygg til leilighet i 2. etasje, med rekkverk og trykkimpregnert treverk

Plantegning

Bustader 0.0 m²

Etasje 1 0.0 m²

Rom Areal Vinduer Dører
Stove A 19.1 m² 1 1
Stove B 19.1 m² 1 1
Stove C 21.7 m² 1 1
Stove D 24.5 m² 1 1
Stove E 25.6 m² 1 1
Stove F 18.4 m² 1 1
Sov 101 10.9 m² 1 1
Sov 102 10.9 m² 1 1
Sov 103 12.7 m² 1 1
Sov 104 12.0 m² 1 1
Sov 105 10.5 m² 1 1
Sov 106 9.0 m² 1 1
Sov 107 6.8 m² 1 1
Sov 108 6.6 m² 1 1
Sov 109 11.3 m² 1 1
Kj/Spis 110 10.8 m² 1 1
Kj/Spis 111 10.8 m² 1 1
Kj/Sp 112 13.0 m² 1 1
Kjoken 113 9.7 m² 1 1
Kjoken 114 9.7 m² 1 1
Kj/Spise 115 13.0 m² 1 1
Bod 116 4.4 m² 1 1
Bod 117 3.0 m² 1 1
Bod 118 3.0 m² 1 1
Bod 119 3.0 m² 1 1
Bod 120 4.3 m² 1 1
Entre 121 8.4 m² 0 1
Entre 122 8.4 m² 0 1
Entre 123 7.2 m² 0 1
Entre 124 8.9 m² 0 1
Entre 125 11.6 m² 0 1
Entre 126 8.3 m² 0 1
B/V 127 5.2 m² 0 1
B/V 128 5.1 m² 0 1
B/V 129 5.1 m² 0 1
B/V 130 4.3 m² 0 1
Kj/Spis 131 10.8 m² 1 1
Kj/Spis 132 10.8 m² 1 1
Kj/Sp 133 13.0 m² 1 1
Kjoken 134 9.7 m² 1 1
Kjoken 135 9.7 m² 1 1
Kj/Spise 136 13.0 m² 1 1
Bod 137 4.4 m² 1 1
Bod 138 3.0 m² 1 1
Bod 139 3.0 m² 1 1
Bod 140 3.0 m² 1 1
Bod 141 4.3 m² 1 1
Entre 142 8.4 m² 0 1
Entre 143 8.4 m² 0 1
Entre 144 7.2 m² 0 1
Entre 145 8.9 m² 0 1
Entre 146 11.6 m² 0 1
Entre 147 8.3 m² 0 1
B/V 148 5.2 m² 0 1
B/V 149 5.1 m² 0 1
B/V 150 5.1 m² 0 1
B/V 151 4.3 m² 0 1

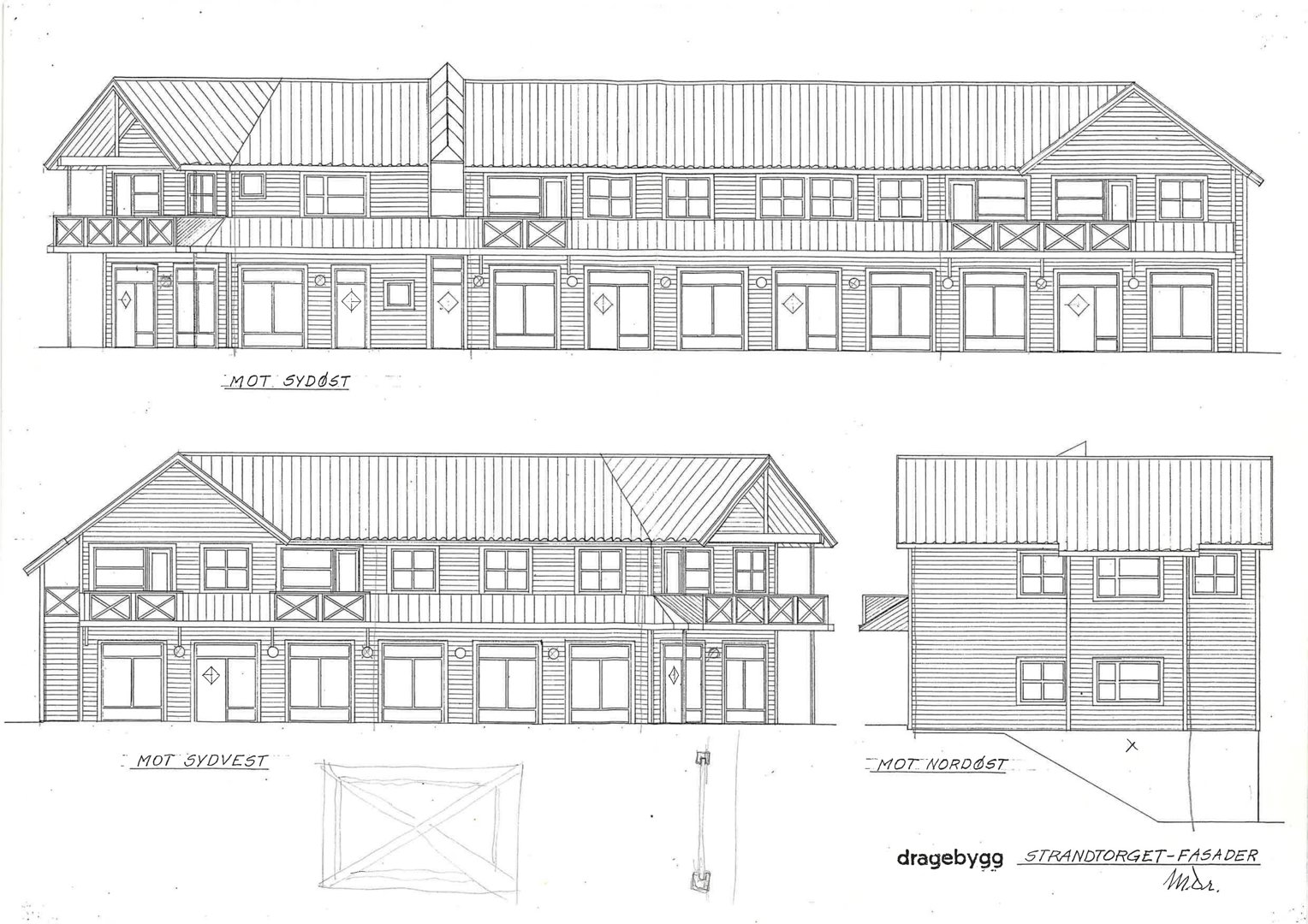
Fasader

Leilighet F

Sydøst
Materiale
Tre
Taktype
Saltak
Vinduer
13
Dører
6
Balkonger
4
Synlige etasjer
2
Sydvest
Materiale
Tre
Taktype
Saltak
Vinduer
10
Dører
3
Balkonger
3
Synlige etasjer
2
Nordøst
Materiale
Tre
Taktype
Flatt tak
Vinduer
3
Dører
0
Synlige etasjer
2
Vest
Materiale
Tre
Taktype
Saltak
Vinduer
6
Dører
3
Balkonger
1
Synlige etasjer
2

Hendelser

16.04.2026 Leikanger 76 Supplering av søknad 224/129
24.03.2026 Vedkomande søknad om oppføring av altan
03.03.2026 Søknad om tillatelse i ett trinn, gbnr 224/129