Rendering
3D-visualisering (rendering) av et nytt takoverbygg og en eksisterende vognhall sett fra to ulike perspektiver.
1 / 6
Extension
Rammetillatelse
Other
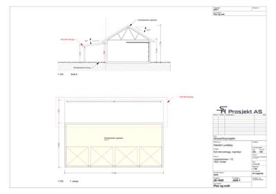
Nytt takoverbygg til vognskjul i Lippestadveien 112
📍 Lippestadveien 112 , 1825 TOMTER
Nøkkelinfo
- Sakstype
- Tilbygg
- Bygningstype
- Other
- Bruksareal
- 48 m²
- Kommune
- Indre Østfold
- Fylke
- Østfold
- Gnr / Bnr
- 838 / 5
- Saksnummer
- 2026/2153
- Fase
- Rammetillatelse
Om byggesaken
Nytt takoverbygg på 47,9 m² bygges langs den nordlige langsiden av et eksisterende vognskjul på landbrukseiendommen i Lippestadveien 112. Takoverbygget er åpent med søyler som understøtter taket, uten vegger eller gulv, og terrenget forblir uendret. Bygget har god visuell utforming i forhold til eksisterende uthus og omgivelsene. Det er et enkelt tilbygg som ikke endrer adkomst eller vann- og avløpsforhold.
Produkter og materialer
Grunnarbeid
Terrengtilpasning
Terrenget forblir uendret, ingen gulv i takoverbygget
Ingen terrengendringer eller fundamentering utover søyler
Tak
Takoverbygg med søyler
Antall: 1
Takoverbygg på 47,9 m² understøttet med søyler, uten vegger eller gulv
Takoverbygg til eksisterende vognskjul, åpent med søyler som bærende elementer
Fasade
Åpent takoverbygg uten vegger
Åpent takoverbygg uten vegger, visuell tilpasning til eksisterende uthus
Fasadeelementer består av søyler og tak, ingen vegger
Tømrer
Søyler og bærende konstruksjon
Søyler som understøtter takoverbygget
Bærende søyler for takoverbygg
Plantegning
Vognskjul 93.4 m²
Etasje 1 93.4 m²
| Rom | Areal | Vinduer | Dører |
|---|---|---|---|
| Vognskjul | 93.4 m² | 0 | 0 |
Hendelser
20.04.2026
Gbnr 838/5 - Lippestadveien 112 - Oppføring av nytt takoverbygg i eksisterende vognskjul - Tillatelse til tiltak
14.04.2026
Gbnr 838/5 - Lippestadveien 112 - Oppføring av nytt takoverbygg til eksisterende vognskjul - Bekreftelse på mottatt søknad
17.03.2026
Gbnr 838/5 - Lippestadveien 112 - Søknad om oppføring av nytt takoverbygg i eksisterende vognskjul