Extension UnderBehandling Other

Rehabilitering og gjenoppføring av bygg i Auster Nesland, Neslandveien 84

📍 Neslandveien 70 , 8380 RAMBERG

Nøkkelinfo

Sakstype
Tilbygg
Bygningstype
Other
Bruksareal
180 m²
Kommune
Flakstad
Fylke
Nordland - Nordlánnda
Gnr / Bnr
41 / 7
Saksnummer
25/409
Fase
Under behandling

Om byggesaken

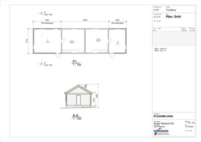
Prosjektet omfatter rehabilitering, gjenoppføring og bruksendring av tre byggverk i det historiske fiskeværet Auster Nesland på eiendommen Neslandveien 84, Flakstad kommune. Turistbua gjenoppføres delvis med videreføring av tidligere bruk til turistovernatting, Gammelbutikken gjenoppføres som museum og fremvisningslokale, og Væreierboligen skal bruksendres til kafé og overnatting. Byggene er tradisjonelle trebygninger med saltak og flatt tak, og tiltakene følger antikvariske prinsipper for å bevare kulturmiljøet. Byggene ligger innenfor 100-metersbeltet langs sjø og i LNF-område, og dispensasjon er gitt for Turistbua og Gammelbutikken, mens bruksendringen av Væreierboligen er avslått. Byggene har bruksareal på ca. 90-180 m², og tiltakene inkluderer sikring mot skred og stormflo, samt brannsikkerhetstiltak. Prosjektet bidrar til vern gjennom bruk og formidling av kulturhistorie, med allmenn tilgang til strandsonen opprettholdt.

Produkter og materialer

Elektro Brannvarslingsanlegg

Røykvarslere i henhold til NS-EN standarder

Brannvarslingssystem i byggene

Tak Saltak og flatt tak

🧱 Tre, skifer, torvtekke, metalltak (Decra)

Saltak med skifer på midtre del, torvtekke på ytterdeler, metalltak Decra på Turistbua

Taktekking til rehabilitering og gjenoppføring av bygg

Dører Labankdører

🧱 Tre

Enkle labankdører, ikke med rute eller fiskebeinsmønster

Dører til gjenoppføring av Gammelbutikken og Turistbua i antikvarisk stil

Gulv Parkett og fliser

Oppgradering av gulv i Væreierboligen til bedre standard

Innvendige gulvoppgraderinger

Vinduer Empirevinduer

🧱 Tre

To- og trefags empirevinduer med tre ruter per fag, sidehengslet, tradisjonell utforming

Vinduer til gjenoppføring av Gammelbutikken og Turistbua i antikvarisk stil

VVS Vann og avløp

Vann og avløp prosjekteres og søkes om i egen søknad, ikke innlagt vann i Gammelbutikken

VVS-installasjoner for Væreierboligen og Turistbua

Ventilasjon Naturlig ventilasjon

Ingen mekanisk ventilasjon planlagt, naturlig ventilasjon i museet og overnattingsbygg

Ventilasjon i byggene

Brannvern Røykvarslere

Antall: 2

Optiske røykvarslere i alle rømningsveier og fellesarealer, minst én per etasje

Brannsikkerhet i Gammelbutikken og Turistbua

Grunnarbeid Fundamentering på svaberg

🧱 Betong, forankringsjern

Fundamenter på svaberg, boring av forankringsjern til peler for Turistbua og Gammelbutikken

Grunnarbeid for gjenoppføring og sikring mot stormflo

Isolasjon Isolering av enkelte rom

🧱 Isolasjon

Isolering av to minste rom i 1. etasje i Gammelbutikken, øvrige arealer uisolert

Isolasjon i gjenoppført bygg

Tømrer Bindingsverk og tømmer

🧱 Tre

Reisverk i tilbygg, tømmer i hovedbygg, gjenbruk av materialer fra stormskadet konstruksjon

Bygningskonstruksjoner for gjenoppføring og rehabilitering

Brannvern Håndslokkeapparat

Pulverapparat min 6 kg med ABC-pulver eller skum/vannapparat min 9 liter

Manuell slokking i Gammelbutikken og Turistbua

Maling Utvendig og innvendig maling

Overflatebehandling i tråd med antikvariske prinsipper

Maling og overflatebehandling for å bevare kulturmiljø

Brannvern Branncellebegrensende vegg EI 30

Branncellebegrensende vegg EI 30 mellom Gammelbutikken og nabobygning

Brannsikringstiltak i Gammelbutikken

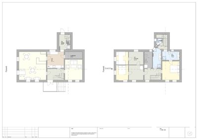
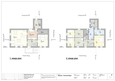
Plantegning

Enebolig 179.7 m²

Etasje 1 89.6 m²

Rom Areal Vinduer Dører
Servering 101 34.8 m² 3 1
Grov kjøkken 102 12.3 m² 0 1
Kjølerom 103 5.5 m² 0 1
Servering 104 16.1 m² 1 1
Entré 105 8.6 m² 0 1
Gang 106 4.8 m² 0 1
B.K. 106 1.6 m² 0 0

Etasje 2 90.1 m²

Rom Areal Vinduer Dører
Sov 201 8.2 m² 1 1
Sov 202 7.2 m² 1 1
Forrom 203 8.5 m² 0 1
Forrom 204 9.8 m² 0 1
Lager 205 5.8 m² 0 1
Bad 206 7.1 m² 0 1
Gang 207 5.4 m² 0 1
wc ansatte 208 1.5 m² 0 1
Bad 209 7.0 m² 0 1
Sov 210 14.8 m² 1 1
Gang 211 8.6 m² 0 1

Fasader

Enebolig

Øst
Materiale
Tre
Taktype
Saltak
Vinduer
1
Dører
0
Synlige etasjer
1
Nord
Materiale
Tre
Taktype
Flatt tak
Vinduer
3
Dører
1
Synlige etasjer
1
Vest
Materiale
Tre
Taktype
Saltak
Vinduer
5
Dører
0
Balkonger
1
Synlige etasjer
2
Sør
Materiale
Tre
Taktype
Flatt tak
Vinduer
6
Dører
1
Synlige etasjer
2

Gammelbutikken

Nord-vest
Materiale
Tre
Taktype
Saltak
Vinduer
3
Dører
0
Synlige etasjer
2
Nord-øst
Materiale
Tre
Taktype
Saltak
Vinduer
0
Dører
1
Synlige etasjer
2
Sør-øst
Materiale
Tre
Taktype
Saltak
Vinduer
5
Dører
1
Synlige etasjer
2
Sør-vest
Materiale
Tre
Taktype
Saltak
Vinduer
0
Dører
1
Synlige etasjer
2

Hendelser

20.03.2026 Lovlighetskontroll av formannskapets vedtak i sak 7/26 - Flakstad kommune
16.03.2026 Krav om lovlighetskontroll av vedtak fattet av formannskapet i sak 007/26
03.03.2026 Anmodning om vedlegg til Dokument 26/797 formannskap 03.03.
24.02.2026 Krav om lovlighetskontroll av vedtak fattet av formannskapet i sak 007/26
26.01.2026 Vedtak - Dispensasjonssøknad om tiltak innenfor 100-metersbeltet - gbn 41/7 - Nesland
22.12.2025 Uttalelse til dispensasjonssøknad - gnr 41 bnr 7, Auster Nesland - Flakstad kommune
27.11.2025 Annmodning om uttalelse fra statlige/regionale myndigheter - Dispensasjonssøknad - gbnr. 41/7, Auster Nesland - Flakstad kommune
19.11.2025 Uttalelse - Dispensasjonssøknad - gnr. 41 bnr. 7 - Auster Nesland i Flakstad kommune
04.11.2025 Annmodning om uttalelse fra statlige/regionale myndigheter - Dispensasjonssøknad - gbn 41/7, Auster Nesland
26.10.2025 Dispensasjonssøknad om tiltak innenfor 100-metersbeltet - gbn 41/7 - Nesland
24.10.2025 Søknad om dispensasjon - Nesland - GBN 41/7 - Flere tiltak