Extension UnderBehandling Other

Utbedring og forsterking av bru over Mølleløpet, Oterholtvegen 148

📍 Oterholtvegen 148 , 3802 BØ I TELEMARK

Nøkkelinfo

Sakstype
Tilbygg
Bygningstype
Other
Kommune
Midt-Telemark
Fylke
Telemark
Gnr / Bnr
21 / 33
Saksnummer
26/6842
Fase
Under behandling

Om byggesaken

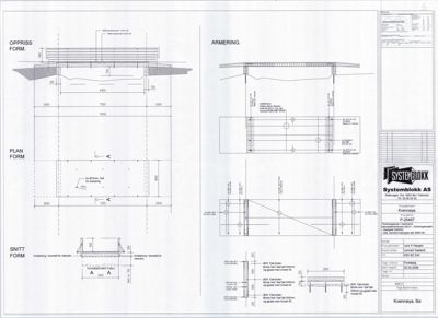
Prosjektet omfatter utbedring og forsterking av en eksisterende bru over Mølleløpet på Kvennøya ved Oterholtvegen 148. Brua, opprinnelig bygget rundt 2008, skal rehabiliteres på grunn av elde og råteskader i materialene. Forsterkingen innebærer bruk av betongelementer med armering og fjellbolter for å tåle akseltrykk opp til 8 tonn, slik at brua kan benyttes til kjøring av utstyr til arrangementer. Rekkverk og kjørebanen skal beholdes i tre som i dag, og bruas bredde og plassering opprettholdes. Prosjektet inkluderer omfattende armeringsdetaljer, lastberegninger og krav til utførelse for å sikre konstruksjonens bæreevne og holdbarhet.

Produkter og materialer

Stål Armeringsstål og fjellbolter

🧱 Stangstål B500NC, nett B500NA, fjellbolter Ø25 mm

Armering med Ø12 mm stenger, bøyler Ø12 mm, fjellbolter Ø25 mm nedboret 500 mm i fjell og støpt med nonset 50

Armering og forankring for betongelementer og bruens oppleggspunkter

Fasade Trerekkverk og kjørebanedekke

🧱 Tre

Eksisterende trerekkverk og tre kjørebanedekke beholdes og repareres ved behov

Treverk for rekkverk og kjørebanedekke på bru

Grunnarbeid Forankring i fjell

Boring og innstøping av fjellbolter i fast fjell 500 mm dybde

Forankring av bruens oppleggspunkter i fjell

Tømrer Reparasjon og vedlikehold av treverk

🧱 Tre

Utbedring av råteskader i eksisterende treverk på bru

Tømrerarbeid knyttet til reparasjon av trerekkverk og kjørebanedekke

Betong Betongelementer til bruplate

🧱 Betongkvalitet B35 (C35/45)

Betongelementer med tykkelse 75 mm, forskalingselementer, armering i henhold til NS-EN 1992-1-1, inkludert kabler Ø12,7 mm med oppspenningskraft 120 kN

Prefabrikkerte betongelementer for bruplate med tilpasset armering og oppspenning

Hendelser

15.04.2026 Søknad om tillatelse til ett-trinn gbnr 42/4
07.04.2026 Tilbakemelding om mangler - gbnr. 21/62 - Oterholtvegen 148 - Utbedring og forsterking av eksisterende bru
10.03.2026 Søknad om tillatelse til tiltak på gbnr 21/33 uten ansvarsrett