Extension Soeknad Other

Tilbygg hunderom på bryggerhus, Øverbygdveien 1278

📍 Øverbygdveien 1278 , 9334 ØVERBYGD

Nøkkelinfo

Sakstype
Tilbygg
Bygningstype
Other
Bruksareal
15 m²
Kommune
Målselv
Fylke
Troms - Romsa - Tromssa
Gnr / Bnr
78 / 6
Saksnummer
2026/628
Fase
Søknad

Om byggesaken

Ny tilbygg på 15 m² til eksisterende bryggerhus på eiendommen Øverbygdveien 1278, bestående av et hunderom med innlagt vann for vask av hunder. Tilbygget er oppført i reisverk med saltak, og inneholder vaskerom (10,6 m²), badstue (3,5 m²), gang (3 m²), bakstue/kjøkken (13 m²) og vask (1,5 m²). Bygget har vinduer og dører tilpasset funksjonen, og det er planlagt infiltrasjonsanlegg for gråvann fra hundevask. Prosjektet inkluderer også tiltak for utslipp av avløpsvann i henhold til kommunale krav.

Produkter og materialer

Grunnarbeid Infiltrasjonsanlegg

Antall: 1

Infiltrasjonskum 1 meter høy med filter under innløp

Avløpsløsning for gråvann fra hunderommet

Vinduer Fasadevindu

Antall: 2

Vinduer i vaskerom og bakstue/kjøkken for lys og ventilasjon

VVS Innlagt vann og avløp

Innlagt vann for vask av hunder, infiltrasjonsanlegg for gråvann med filter for hår og fett

Vanninstallasjon for hundevask og tilhørende avløpsløsning med infiltrasjon

Dører Ytterdør

Antall: 5

Dører til vaskerom, badstue, gang, bakstue/kjøkken og vask

Tømrer Reisverk og innvendige vegger

🧱 Tre

Oppføring av reisverk for tilbyggets vegger og innvendige skillevegger

Tak Saltak

🧱 Takstein eller lignende

Saltak som matcher eksisterende bryggerhus

Taktekking for tilbygg med saltak

Fasade Trepanel

🧱 Tre

Reisverk med trepanel, saltak

Yttervegger i reisverk med trepanel og saltak som matcher eksisterende bryggerhus

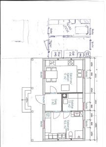
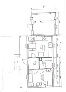
Plantegning

Hundehus 38.6 m²

Etasje 1 38.6 m²

Rom Areal Vinduer Dører
Vaskerom 101 10.6 m² 1 1
Badstue 102 3.5 m² 0 1
Gang 103 3.0 m² 0 2
Bakstue/Kjøkken 104 13.0 m² 1 1
Vask 105 1.5 m² 0 0

Fasader

Bryggerhus

Nord
Materiale
Tre
Taktype
Saltak
Vinduer
4
Dører
0
Synlige etasjer
2
Søvest
Materiale
Tre
Taktype
Saltak
Vinduer
0
Dører
0
Synlige etasjer
1

Enebolig

Vest
Materiale
Tre
Taktype
Saltak
Vinduer
5
Dører
1
Balkonger
1
Synlige etasjer
2

Hendelser

16.04.2026 78/6, 78/7 - Søknad om tillatelse til tiltak
16.04.2026 78/6, 78/7 - Søknad om personlig ansvarsrett som selvbygger