Extension UnderBehandling Other

Oppgradering av adkomstvei med fortau og sykkelfelt i Pettersvollen, Drammen

📍 Pettersvollen 10A , 3032 DRAMMEN

Nøkkelinfo

Sakstype
Tilbygg
Bygningstype
Other
Kommune
Drammen
Fylke
Buskerud
Gnr / Bnr
80 / 6028
Saksnummer
23/22912
Fase
Under behandling

Om byggesaken

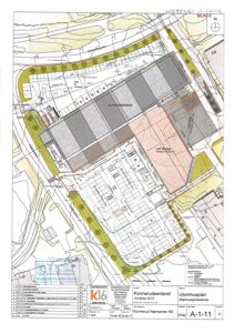
Oppgradering av eksisterende adkomstvei i Pettersvollen, Drammen, med etablering av fortau på begge sider, sykkelfelt, ny belysning, støttemurer, ledegjerde og pullerter. Veien får ny høydeplassering for en avgrenset strekning og sikkerhetstiltak ved gangfelt og krysset mot Gramsborgveien. Overbygningen består av asfaltdekke med granittkantstein, infiltrasjonssandfang for overvannshåndtering, og det legges til rette for trafikksikkerhet og universell utforming. Prosjektet inkluderer også grunnarbeider og kabelpåvisning. Tiltaket er i samsvar med reguleringsplan for området, men har vært gjenstand for klage og opphevelse av tidligere vedtak på grunn av mangelfull nabovarsling og konflikt med eksisterende varelevering til Konnerud senter.

Produkter og materialer

Grunnarbeid Oppmåling og kabelpåvisning

Oppmålingsarbeid og kabelpåvisning før grunnarbeider

Forberedende arbeider før bygging

Fasade Granittkantstein

🧱 Granitt, finhogd, grad 2

12x25 cm kantstein med 2 cm fassatt i jordfuktig betong B30

Kantstein langs fortau og vei for avgrensning og estetikk

Annet Nabovarsling og dokumentasjon

Nabovarsel, svar på nabomerknader, oppdatert situasjonskart, plan- og profiltegninger, gjennomføringsplan

Nødvendig dokumentasjon for byggesaksbehandling

Tømrer Brostein markering

🧱 Brostein

Markering av grense mellom fortau og bebyggelse med brostein der fortauet ligger høyere enn terreng

Overgang mellom fortau og bygning

Tak Asfaltdekke

🧱 Asfalt Agb 11 og Agb 8

Slitelag 2,5-4 cm, bindlag 3-4 cm, bærelag 10 cm pukk Fk 0-32 mm

Asfaltdekke på kjørevei, fortau og sykkelvei

Mur Støttemur

🧱 Betongmur med granittheller

Støttemur ved varemottak, justert til minimum 1 m under kommende fortau

Støttemur mot varemottak og tilpasning til vei

Elektro Veibelysning

🧱 ITALO mast med pulverlakkert stålfundament

Antall: 12

Mast 6-8 m høy, fundament cc160 mm, 1000 mm dybde, armatur ITALO 1 0F2H1 STU-S

Ny veibelysning langs fortau og vei

VVS Overvannshåndtering

🧱 Infiltrasjonssandfang, stikkrenner, drensledninger

Infiltrasjonssandfang og stikkrenner for overvann, planlagt fall vekk fra formålsgrenser

Overvannshåndtering for vei og fortau

Rekkverk Ledgjerde og pullerter

🧱 Granittpullerter, demonterbare, diameter 170 mm, høyde 80 cm

Antall: 11

Pullerter plassert på grense mot felt BS2, innenfor frisiktssone i tråd med Statens vegvesens håndbok N100

Sikkerhetstiltak for å hindre uønsket kjøring og sikre varelevering

Grunnarbeid Overbygning vei og fortau

🧱 Fiberduk klasse 3, forsterkningslag Fk 22-63 mm

Forsterkningslag 30-60 cm, fiberduk vurderes

Grunnarbeid for vei, fortau og sykkelvei

Plantegning

KONNERUD SENTER 0.0 m²

Etasje 1 0.0 m²

Rom Areal Vinduer Dører
OMDELING OMDELING 0.0 m² 0 0
SPISEROM SPISEROM 0.0 m² 0 0
GARD M GARD M 0.0 m² 0 0
WC WC 0.0 m² 0 0
SOLLI OG PEDERSEN SOLLI OG PEDERSEN 0.0 m² 0 0
BRANNSEK-VEGG BRANNSEK-VEGG 0.0 m² 0 0
MOTEFORRETNING MOTEFORRETNING 0.0 m² 0 0
MEZZANINA FERDROM MEZZANINA FERDROM 0.0 m² 0 0
FOTO/RAHMER TONHEIM FOTO/RAHMER TONHEIM 0.0 m² 0 0
SPIS SPIS 0.0 m² 0 0
GARD GARD 0.0 m² 0 0
WC WC 0.0 m² 0 0
AVFALL AVFALL 0.0 m² 0 0
TRAFO TRAFO 0.0 m² 0 0
H-FORDELING H-FORDELING 0.0 m² 0 0
REMU R REMU R 0.0 m² 0 0
SPISEROM SPISEROM 0.0 m² 0 0
SPISEROM SPISEROM 0.0 m² 0 0
GARD KV GARD KV 0.0 m² 0 0
KONTOR/SPISEROM KONTOR/SPISEROM 0.0 m² 0 0
BOKSER BOKSER 0.0 m² 0 0
ARR ARR 0.0 m² 0 0
KONTOR KONTOR 0.0 m² 0 0
WC WC 0.0 m² 0 0
SPIS/LAGER SPIS/LAGER 0.0 m² 0 0
WC WC 0.0 m² 0 0
GARD GARD 0.0 m² 0 0
KONTOR KONTOR 0.0 m² 0 0
WC WC 0.0 m² 0 0
SPIS SPIS 0.0 m² 0 0
KONNERUD JERNVARE KONNERUD JERNVARE 0.0 m² 0 0
FRISOR FRISOR 0.0 m² 0 0
POSTST POSTST 0.0 m² 0 0
ARK ARK 0.0 m² 0 0
POST POST 0.0 m² 0 0
EKSP EKSP 0.0 m² 0 0
BORGEL BORGEL 0.0 m² 0 0
VF VF 0.0 m² 0 0
PUBLIKUM PUBLIKUM 0.0 m² 0 0
KONNERUD OPTISKE KONNERUD OPTISKE 0.0 m² 0 0
KONT SPISE KONT SPISE 0.0 m² 0 0
REF REF 0.0 m² 0 0
VERKSTED VERKSTED 0.0 m² 0 0
WC WC 0.0 m² 0 0
MEZZANINA MED AGENT OVER MEZZANINA MED AGENT OVER 0.0 m² 0 0
GANG AREAL GANG AREAL 0.0 m² 0 0
MEDISIN-UTSALG STRØMSØ APOTEK MEDISIN-UTSALG STRØMSØ APOTEK 0.0 m² 0 0
KONNITORI CHPEDERSEN KONNITORI CHPEDERSEN 0.0 m² 0 0
WC WC 0.0 m² 0 0
GANG GANG 0.0 m² 0 0
POLITI POLITI 0.0 m² 0 0
KONT KONT 0.0 m² 0 0
DISP DISP 0.0 m² 0 0
KRISTOFFERSEN TRUKT HM KRISTOFFERSEN TRUKT HM 0.0 m² 0 0
SKOGER PUBLIKUM SKOGER PUBLIKUM 0.0 m² 0 0
SPAREBANK EKSPED SPAREBANK EKSPED 0.0 m² 0 0
K SKARRA SPORT K SKARRA SPORT 0.0 m² 0 0
OVI THORESSON EL FORR OVI THORESSON EL FORR 0.0 m² 0 0

Etasje 2 0.0 m²

Rom Areal Vinduer Dører
Ventilasjonsrom VENTILASJONSROM 0.0 m² 1 1
Kjøkken KJØKKEN 0.0 m² 0 1
Spis SPIS 0.0 m² 0 0
Tørrvare lager TØRRVARE LAGER 0.0 m² 0 0
Kjøle-lager KJØLE-LAGER 0.0 m² 0 0
Dansgolv DANSEGULV 0.0 m² 0 1
Musikk MUSIKK 0.0 m² 0 1
Kafeteria KAFETERIA 0.0 m² 0 1
Restaurant RESTAURANT 0.0 m² 0 1
Toalett TOAL 0.0 m² 0 0
Garderobe GARD.KV 0.0 m² 0 0
Garderobe GARD.M 0.0 m² 0 0
WC WC 0.0 m² 0 0
WC WC 0.0 m² 0 0
WC WC 0.0 m² 0 0
WC WC 0.0 m² 0 0
Toalett TOAL 0.0 m² 0 0
Toalett TOAL 0.0 m² 0 0
Garderobe GARDEROBE 0.0 m² 0 0
Dispensasjon DISP 0.0 m² 0 1
Ventilasjonsrom VENTILASJONSRUM 0.0 m² 0 0
Garderobe GARDKV 0.0 m² 0 0
Garderobe GARD_M 0.0 m² 0 0
SPS SPS 0.0 m² 0 0
Tørrvarer TØRRVARER 0.0 m² 0 0
Lager LAGER 0.0 m² 0 0
Bar BAR 0.0 m² 0 0
Damsekull DAMSEKULL 0.0 m² 0 0
Video VIDEO 0.0 m² 0 0
Mezzanin MEZZANIN 0.0 m² 0 0
VENTILASJONSRØM 101 0.0 m² 0 0
UNGDOMSKROK 102 0.0 m² 0 0
KJØKKEN 103 0.0 m² 0 0
KJØLE-LAGER 104 0.0 m² 0 0
BAR 105 0.0 m² 0 0
RESTAURANT 106 0.0 m² 0 0
KAFETERIA 107 0.0 m² 0 0
WC 108 0.0 m² 0 0
TOALET 109 0.0 m² 0 0
GARDEROBE 110 0.0 m² 0 0
MUSIKK 111 0.0 m² 0 0
DANSEGULV 112 0.0 m² 0 0

Etasje 0 0.0 m²

Rom Areal Vinduer Dører
LASTERAMPE MED TAK OVER 001 0.0 m² 0 1
RENN 002 0.0 m² 0 1
TEKN. KOM 003 0.0 m² 0 1
BOD M 004 0.0 m² 0 1
BOD M 005 0.0 m² 0 1
BUTIKK 006 0.0 m² 0 1
KONTOR 007 0.0 m² 0 1
TOALET HERRER 008 0.0 m² 0 1
TOALET DAMER 009 0.0 m² 0 1
BLOMSTER BUT KY 010 0.0 m² 0 1
MEIERI / KJØL 011 0.0 m² 0 1
BUTIKK 012 0.0 m² 0 1
KONT/LAGER 013 0.0 m² 0 1
BUTIKK STYR GARN OG LAKER 014 0.0 m² 0 1
TOALET HERRER 015 0.0 m² 0 1
WC EH 016 0.0 m² 0 1
WC FH 017 0.0 m² 0 1
TOALET DAMER 018 0.0 m² 0 1
KONNERUD BLOMSTERSENTER 019 0.0 m² 0 1

Fasader

Konnerud Senter

Nord
Materiale
Glass
Taktype
Saltak
Høyde
10.0 m
Mønehøyde
12.0 m
Vinduer
12
Dører
0
Synlige etasjer
2
Øst
Vinduer
5
Dører
1
Synlige etasjer
2
Vest
Materiale
Betong
Taktype
Flatt tak
Vinduer
5
Dører
1
Balkonger
1
Synlige etasjer
2
Sør
Materiale
Glass
Taktype
Saltak
Vinduer
12
Dører
1
Synlige etasjer
2

Hendelser

21.04.2026 2023/01050 - Etablering av fortau og sykkelfelt langs Pettersvollen. Orientering om sakens fremdrift
23.03.2026 BYGG-23/01050-34 - Pettersvollen, sykkelveg med fortau - utsettelse av frist for komplettering
20.03.2026 Pettersvollen, sykkelveg med fortau - ber om fristutsettelse
25.02.2026 Pettersvollen, oppgradering av adkomstvei, varsel om avvisning
10.12.2025 BYGG-23/01050-31 - Pettersvollen,ber om at saken stilles i bero
16.05.2025 Pettersvollen,ber om at saken stilles i bero
08.04.2025 Pettersvollen, vi trenger flere opplysninger for å behandle søknaden din
20.02.2025 Pettersvollen, sender inn på nytt: tilsvar til notat for vurdering av nabovarsel
20.02.2025 Pettersvollen, tilsvar til notat for vurdering av nabovarsel
20.02.2025 Pettersvollen, tilbakemelding på søknad om etablering av fortau med sykkelfelt
16.10.2024 Pettersvollen, supplering av søknad 80/6028
15.10.2024 Pettersvollen, notat for vurdering av nabovarsel
27.09.2024 Søknad om tillatelse i ett trinn 80/6028
25.09.2024 Supplering av søknad 80/6028
26.08.2024 Pettersvollen, oppgradering av adkomstvei - opphevet vedtak av 29.09.2023 i sak BYGG-23/01050
29.09.2023 Pettersvollen, rammetillatelse til oppgradering av adkomstvei med fortau, sykkelfelt og belysning og igangsettingstillatelse nr. 1
25.09.2023 VS: Pettersvollen - avslutning mot Gramsborgveien
04.09.2023 BYGG-23/01050-12 - Pettersvollen, status i sak
04.09.2023 Pettersvollen, Ber om status i sak, og spørsmål om behandlingstid
01.09.2023 Vedrørende Pettersvollen 5
01.09.2023 Pettersvollen 5, tilleggsinformasjon
21.06.2023 Pettersvollen, melding om mottatt søknad
21.06.2023 Pettersvollen, Søknad om tillatelse i ett trinn 80/6028