Extension UnderBehandling Other

Tilbygg og ventilasjonsanlegg på Skarsmoen 13 renseanlegg

📍 Tjøreskarv 34 , 5763 SKARE

Nøkkelinfo

Sakstype
Tilbygg
Bygningstype
Other
Bruksareal
21 m²
Kommune
Ullensvang
Fylke
Vestland
Gnr / Bnr
38 / 60
Saksnummer
2026/183
Fase
Under behandling

Om byggesaken

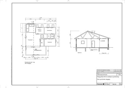
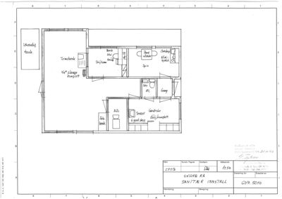
Ny utvidelse på 21 m² BYA på eksisterende renseanlegg i Skarsmoen 13, Ullensvang kommune, med formål å installere et nytt ventilasjonsanlegg for luktfjerning og forbedret arbeidsmiljø. Tilbygget bygges med bæresystem i tre, isolert med 150 mm mineralull i vegger og 200 mm i tak, utvendig liggende kledning, malt gips innvendig og takstein på taket. Takformen endres fra 30 til 19 grader. Fundamentering skjer på isolert ringmur og betongplate. Innvendig romfordeling inkluderer driftsrom, personalrom, WC, gang, garderobe, blås og nytt ventilasjonsrom. Ventilasjonsanlegget er et avansert system med UV/ozon og aktivt kullfilter for effektiv luktfjerning, levert av Lindum Clairs. Bygget ligger innenfor asfaltert område nær elva Opo, med dispensasjon for byggegrense og arealformål.

Produkter og materialer

Dører Innvendige dører

Antall: 8

Dører til rom som driftsrom, personalrom, WC, gang, garderobe, blås, prosesshall og ventilasjonsrom

Innvendige dører i tilbygg

Mur Isolert ringmur

🧱 Betong med isolasjon

Isolert ringmur som fundament

Fundamentering av tilbygg

Tømrer Bæresystem i tre

🧱 Tre

Bæresystem i vegger og tak av tre

Konstruksjon av tilbygg

Fasade Utvendig liggende kledning

🧱 Tre

Utvendig liggende kledning på tilbygg

Kledning for tilbyggets yttervegger

Elektro Styringssystem for ventilasjon

Antall: 1

Enkel trinnbryter ved inngang til prosessområdet, klargjort for SD-styring og avlesning

Styringssystem for ventilasjonsanlegg

Ventilasjon Ventilasjonsanlegg med luktfjerningsenhet

Antall: 1

Gold anlegg 007 RX Top levert av Swegon, med to-trinns rensesystem UV/ozon og aktivt kullfilter (500 kg kull) fra Lindum Clairs, spylefunksjon for UV-lamper, innebygget hjelpevifte, SD-styring og fjernstyring

Nytt ventilasjonsanlegg for luktfjerning og forbedret arbeidsmiljø i tilbygg

Tak Saltak med takstein

🧱 Takstein

Takform endres fra 30 til 19 grader, takstein som takmateriale

Nytt saltak på tilbygg med takstein

Isolasjon Mineralull isolasjon

🧱 Mineralull

150 mm isolasjon i vegger, 200 mm i tak

Isolasjon i vegger og tak på tilbygg

Betong Isolert ringmur og betongplate

🧱 Betong

Fundamentering på isolert ringmur og isolert betongplate på grunn

Fundament for tilbygg

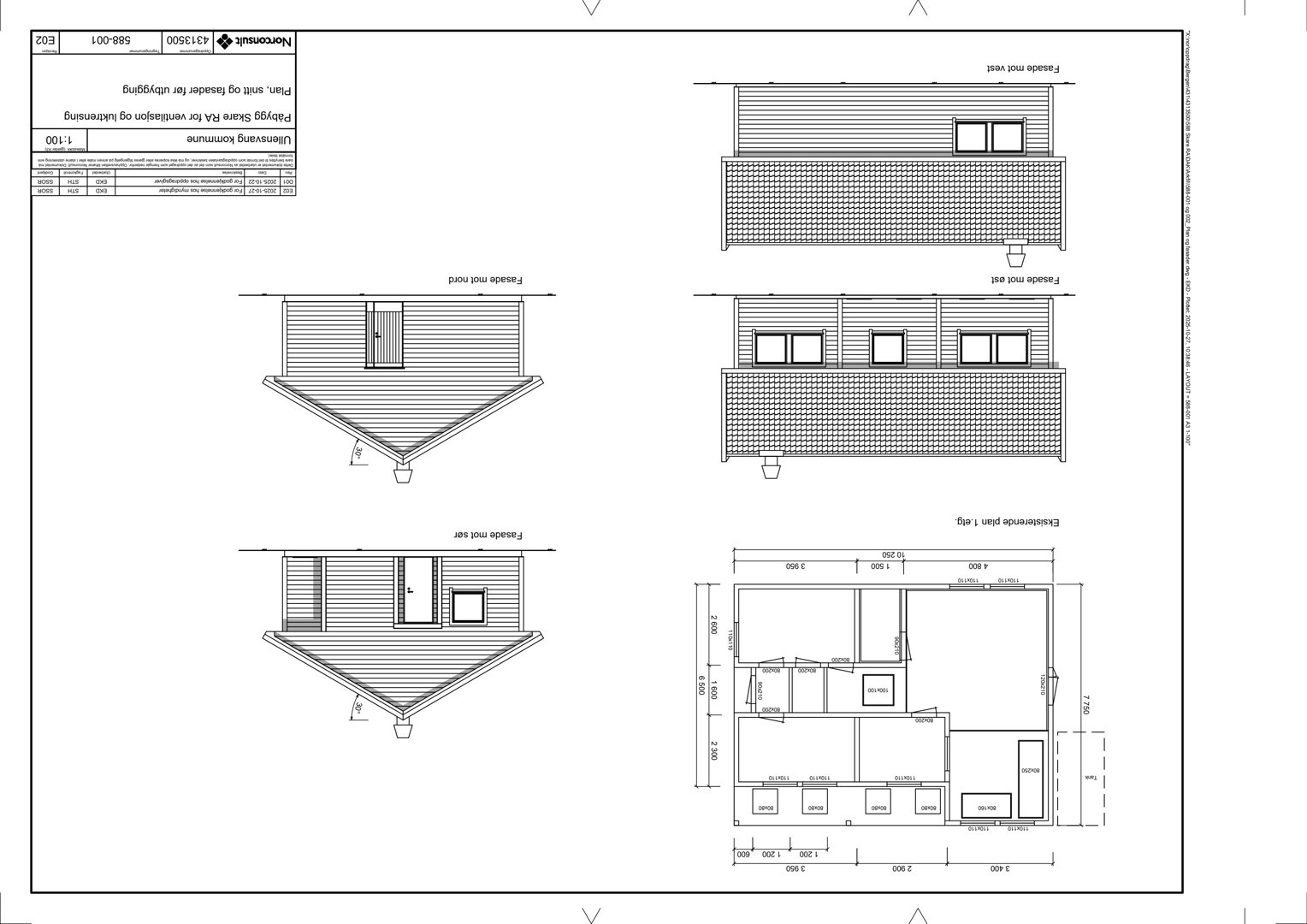
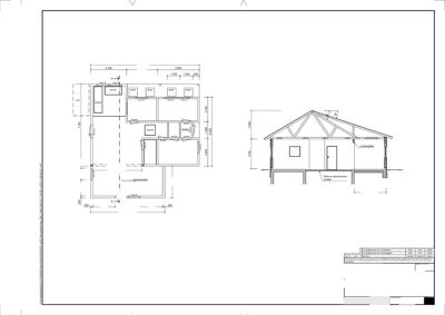
Plantegning

Påbygg Skare RA 102.5 m²

Etasje 1 102.5 m²

Rom Areal Vinduer Dører
Driftsrom (kontor) 101 29.0 m² 0 1
Personalrom 102 39.5 m² 0 1
WC 103 2.5 m² 0 1
Gang 104 2.5 m² 0 1
Garderobe 105 12.0 m² 0 1
Blås 106 2.0 m² 0 1
Prosesshall 107 29.0 m² 0 1
Nytt Ventilasjonsrom 108 15.0 m² 0 1

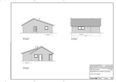
Fasader

Eksisterende plan 1. eig.

Sør
Materiale
Tre
Taktype
Saltak
Vinduer
1
Dører
1
Synlige etasjer
1
Nord
Materiale
Tre
Taktype
Saltak
Vinduer
1
Dører
1
Synlige etasjer
1
Øst
Materiale
Tre
Taktype
Saltak
Vinduer
3
Dører
0
Synlige etasjer
1
Vest
Materiale
Tre
Taktype
Saltak
Vinduer
1
Dører
0
Synlige etasjer
1

Hendelser

17.04.2026 Oversender søknad om dispensasjon for uttale - Gnr 38, bnr 60 - Skarsmoen 13 - tilbygg/påbyggg
20.01.2026 Skarsmoen 13 - Søknad om rammetillatelse - gnr .38, bnr. 60
19.01.2026 Vi innvilger søknaden om samtykke etter automatisk saksbehandling