NewConstruction UnderBehandling Rekkehus

Rekkehus med VA- og overvannsanlegg i Bakkedalen, Ullensaker

📍 Bakkedalen

Nøkkelinfo

Sakstype
Nybygg
Bygningstype
Rekkehus
Bruksareal
5,200 m²
Boenheter
17
Kommune
Ullensaker
Fylke
Akershus
Gnr / Bnr
29 / 20
Saksnummer
2026/825
Fase
Under behandling

Om byggesaken

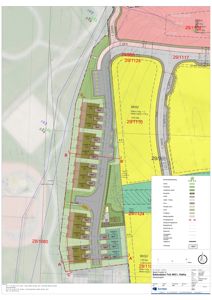
Prosjektet omfatter oppføring av ca. 17 rekkehus over tre plan med flate tak på et område på cirka 5,2 dekar i Bakkedalen, Ullensaker. Mellom boligene etableres grøntområder og lekeplass. Boligene får garasje- eller carportløsning. Overvannshåndteringen følger en tretrinnsstrategi med infiltrasjon i grønne arealer, lokal fordrøyning i lekeplass og lavbrekk, samt sikre flomveier. Et underjordisk lukket magasin under parkeringsplassen i nord mottar takvann fra husene vest for veien og vann fra veigrøfter, med et påslipp til kommunalt nett på 1,5 l/s. Veien i nord har fall mot øst med fordrøyning i grøft og sandfang med strupet utløp. Flomveier er dimensjonert for 100-års nedbør og sikrer at husene ikke utsettes for skadelig vannstand. Det er planlagt erosjonssikring i flomveier og snøopplag er plassert slik at de ikke blokkerer flomveier. Grunneier er ansvarlig for drift og vedlikehold av overvannssystemet.

Produkter og materialer

VA Vannkummer og brannkummer

🧱 Betong og PE, med NOR-koblinger og brannventiler

Brannkum sentralt plassert ved vendehammer, vannkummer med stiger og pakninger iht. VA-norm.

Vannforsyningskummer og brannkummer for boligfeltet.

Overflate Lekeplass og grøntområder

🧱 Tilførte masser 50 cm, vegetasjon, drenerende masser i vegoverbygning

Lekeplass med fordrøyningsvolum ca. 156 m³, grøntområder mellom husene for infiltrasjon og lokal fordrøyning.

Utomhusarealer for lek og grønt, med overvannshåndtering.

VA Sandfang

🧱 Betong kum med rist Ø1000 mm

Sandfang plassert i lekeplass og ved veigrøfter, med strupet utløp 0,5 l/s for felt J, og tilkoblet overvannsledninger.

Sandfang for oppsamling og fordrøyning av overvann før utløp til kommunalt nett.

Grunnarbeid Dreneringsgrøfter

🧱 Drensrør PE 110 DV-D, fiberduk, pukk 8-16 mm

Dreneringsgrøfter langs veier og lekeplass, med stikkrenner under atkomstveier, drensledning langs traubunn.

Dreneringsgrøfter for infiltrasjon og transport av overvann.

Overflate Snøopplag

Antall: 2

To snøopplag, en på slutten av blindvei og en ved vendehammeren, plassert slik at de ikke blokkerer flomveier.

Snøopplag for vinterdrift uten å hindre overvannshåndtering.

VA Fordrøyningsmagasin

🧱 Qbic el. tilsv. 4,8 m x 12,0 m x 1,26 m

Antall: 1

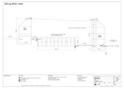
Underjordisk lukket fordrøyningsmagasin under parkeringsplass i nord med volum ca. 156 m³, påslipp til kommunalt nett 1,5 l/s via virvelkammer.

Fordrøyningsmagasin for takvann og veigrøfter fra vestlige deler av boligfeltet.

Overflate Veier, parkeringsplasser og fortau

🧱 Asfalt, betongkantstein

Veier med fall mot øst og grøfter, parkeringsplasser med overvannsledninger og fordrøyningsmagasin under.

Veier og parkeringsarealer med overvannshåndtering.

VA Spillvannsledninger

🧱 PVC 125 mm, PE 710 SDR17 varerør

Spillvannsledninger tilkoblet kommunalt nett, med dimensjonering for ca. 50 p.e.

Spillvannsledninger for boligfeltet, inkludert tilkobling til kommunalt nett.

VA Mengderegulator

Mengderegulator plassert i kum før tilkobling til kommunalt overvannsnett for å begrense påslipp til 2,0 l/s totalt.

Regulering av vannmengde til kommunalt nett fra fordrøyningsmagasin og sandfang.

Grunnarbeid Terrengplanering og forbelastning

Området planeres og det er utført forbelastning med oppfølging fram til høsten 2025 for å sikre stabilitet over eksisterende VA-ledninger.

Terrengplanering og forbelastning for å sikre grunnforhold og VA-ledninger.

VA Frostsikring

🧱 Isolasjon og frostfri dybde for ledninger og magasiner

Overvannsledninger og magasiner legges i frostfri dybde eller isoleres for å sikre funksjon året rundt.

Frostsikring av VA-anlegg.

VA Overvannsledninger og kummer

🧱 PVC, PE, betong

Overvannsledninger i PVC og PE, kummer med dimensjoner fra DN110 til DN1600, inkludert sandfang, stake-/spylekummer, nedstigningskummer med mellomdekke, virvelkammer og mengderegulatorer.

VA-ledninger og kummer for overvann, spillvann og vann, inkludert tilkoblinger til eksisterende nett.

Hendelser

14.04.2026 Gnr 29 bnr 20 - Bakkedalen - Oppdaterte vedlegg og redegjørelse - Anmodning om VA-uttalelse - Igangsettingstillatelse
30.03.2026 Gnr 29 bnr 20 - Bakkedalen - Om dokumentasjon
30.03.2026 Gnr 29 bnr 20 - Bakkedalen - Oppsummering fra møte
30.03.2026 Gnr 29 bnr 20 - Bakkedalen - VA tegninger og rapport for belastning
30.03.2026 Gnr 29 bnr 20 - Bakkedalen - Anmodning om redegjørelse
10.03.2026 Gnr 29 bnr 20 - Bakkedalen - Reviderte vedlegg - Anmodning om VA-uttalelse - Igangsettingstillatelse
10.03.2026 Gnr 29 bnr 20 - Bakkedalen - Reviderte vedlegg - Anmodning om VA-uttalelse - Igangsettingstillatelse
10.03.2026 Gnr 29 bnr 20 - Bakkedalen -Mangelbrev-Anmodning om VA-uttalelse - Igangsettingstillatelse
10.03.2026 Gnr 29 bnr 20 - Bakkedalen - Igangsettingstillatelse - Ny løsning for overvann og spillvann i svar på mangelbrev
10.03.2026 Gnr 29 bnr 20 - Bakkedalen - Igangsettingstillatelse- Utkast til ny løsning for overvann og spillvann
10.03.2026 Gnr 29 bnr 20 - Bakkedalen - Reviderte vedlegg - Anmodning om VA-uttalelse - Igangsettingstillatelse
02.03.2026 Gnr 29 bnr 20 - Bakkedalen - Reviderte vedlegg - Anmodning om VA-uttalelse - Igangsettingstillatelse
17.02.2026 Gnr 29 bnr 20 - Bakkedalen - Reviderte vedlegg - Anmodning om VA-uttalelse - Igangsettingstillatelse
05.02.2026 Gnr 29 bnr 20 - Bakkedalen - Foreløpig svar - Anmodning om VA-uttalelse - Igangsettingstillatelse
30.01.2026 Gnr 29 bnr 20 - Bakkedalen - VA rammeplan - Igangsettingstillatelse
28.01.2026 Gnr 29 bnr 20 - Bakkedalen - Foreløpig svar - Anmodning om VA-uttalelse - Igangsettingstillatelse
27.01.2026 Gnr 29 bnr 20 - Anmodning om VA-uttalelse - IG-søknad
26.01.2026 Gnr 29 bnr 20 - Bakkedalen - Anmodning om VA-uttalelse - Igangsettingstillatelse