NewConstruction Avslatt Rekkehus

Ny firemannsbolig med bod, carport og lekeplass i Heggumstubben, Asker

📍 Heggumstubben 1 , 3440 RØYKEN

Nøkkelinfo

Sakstype
Nybygg
Bygningstype
Rekkehus
Bruksareal
552 m²
Boenheter
4
Kommune
Asker
Fylke
Akershus
Gnr / Bnr
265 / 236
Saksnummer
24/2263
Fase
Avslått

Om byggesaken

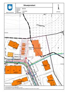
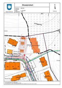
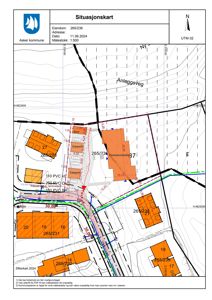
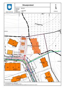
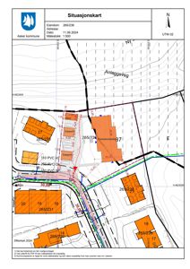
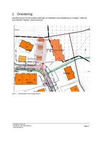
Prosjektet omfatter oppføring av et firemannsbolig rekkehus med totalt 4 boenheter, tilhørende boder og carporter, samt en felles lekeplass på eiendommen Heggumstubben 265/236 i Asker kommune. Bygget er planlagt i to etasjer med et samlet bruksareal på ca. 518 m², og carportene har flate tak i stål med tilhørende boder. Terrenginngrep er planlagt for å tilpasse bygget til det naturlige skrånende terrenget, med mindre utgraving og oppfylling for massebalanse. Parkering er løst på egen tomt med krav om to parkeringsplasser per boenhet. Prosjektet er regulert under boligformål i eldre reguleringsplan, men deler av tomten overlapper med et nyere midlertidig anleggs- og deponiområde (MAD) i reguleringsplan for rv. 23 Bjørnstad-Dagslett, noe som har medført behov for dispensasjon. Det foreligger godkjent sanitærmelding og vurderinger av områdestabilitet og trafikksikkerhet. Nabomerknader gjelder hovedsakelig fortetting, trafikk, parkering, sikkerhet for barn, terrengtilpasning og dispensasjonsspørsmål. Kommunen har avslått søknaden på grunn av plassering i MAD-området og manglende dispensasjon, men prosjektet er et reelt byggeprosjekt med omfattende dokumentasjon og planlegging.

Arbeidsomfang

- Oppføring av nybygg rekkehus (4-mannsbolig) - Bygging av bod - Anleggelse av carport - Utforming av felles lekeplass - Grunnarbeider og fundamentering - Oppføring av bærende konstruksjoner - Takkonstruksjon og taklegging - Fasadebehandling og vindusmontering - Sanitærinstallasjoner - Elektriske installasjoner

Produkter og materialer

Dører Ytterdører og balkongdører

Antall: 24

Ytterdører og dører mellom rom i rekkehusene

Trapper Innvendige trapper

Antall: 4

Innvendige trapper i firemannsboligen

Fasade Rekkehus fasade

Antall: 1

Moderne uttrykk med flatt tak, farger tilpasset naboer

Fasade for firemannsbolig i to etasjer

Isolasjon Bygningsisolasjon

Isolasjon i vegger, tak og gulv i henhold til TEK17

Garasje Carport med bod

🧱 Stål, flatt tak

Antall: 2

Carport med tilhørende boder, flatt tak i stål

Carport med bod til firemannsboligen

Terrasse Felles lekeplass

Antall: 1

Felles lekeplass på tomten

Felles lekeplass for beboerne i firemannsboligen

Tømrer Bygging av boligkonstruksjon

Tømrerarbeid for oppføring av firemannsbolig og tilhørende bygg

Vinduer Fasadevindu

Antall: 24

Fasadevindu i rekkehusets 1. og 2. etasje, inkludert soverom, stue og kjøkken

Maling Innvendig og utvendig maling

Maling av innvendige og utvendige flater

VVS Sanitærinstallasjon

Godkjent sanitærmelding, tilkobling til offentlig vann- og avløpsnett via privat fellesledning

Sanitærinstallasjon og tilkobling til vann og avløp

Elektro Elektriske installasjoner

Elektriske installasjoner i boligene

Grunnarbeid Terrenginngrep

Utgraving og oppfylling for tilpasning til terreng, massebalanse

Terrenginngrep for tilpasning av bygget til naturlig skrånende terreng

Plantegning

Firemannsbolig 551.7 m²

Etasje 2 292.8 m²

Rom Areal Vinduer Dører
Soverom 201 8.6 m² 1 1
Soverom 202 8.6 m² 1 1
Soverom 203 9.4 m² 1 1
Soverom 204 11.4 m² 1 1
Soverom 205 11.9 m² 1 1
Soverom 206 11.4 m² 1 1
Soverom 207 10.1 m² 1 1
Soverom 208 10.2 m² 1 1
Soverom 209 10.2 m² 1 1
Soverom 210 10.1 m² 1 1
TVstue 211 14.0 m² 1 1
Gang 212 5.4 m² 0 2
Gang 213 5.7 m² 0 2
Gang 214 5.7 m² 0 2
Gang 215 5.4 m² 0 2
Vaskerom/teknisk 216 3.2 m² 0 1
Vaskerom/teknisk 217 3.2 m² 0 1
Vaskerom/teknisk 218 3.2 m² 0 1
Vaskerom/teknisk 219 3.2 m² 0 1
Bad 220 6.4 m² 0 1
Bad 221 6.3 m² 0 1
Bad 222 6.3 m² 0 1
Bad 223 6.4 m² 0 1
Soverom 224 9.4 m² 1 1

Etasje 1 258.9 m²

Rom Areal Vinduer Dører
Gang 101 0.0 m² 0 2
Stue 102 0.0 m² 3 2
Kjøkken 103 0.0 m² 1 1
Vaskerom 104 0.0 m² 0 1
Bad 105 0.0 m² 0 1
Sovegang 106 0.0 m² 0 2
Soverom 1 107 0.0 m² 1 1
Soverom 2 108 0.0 m² 1 1
Soverom 3 109 0.0 m² 1 1
Teknisk rom 110 0.0 m² 0 1
Garderobe 111 7.5 m² 0 1
WC 112 2.4 m² 0 1
Teknisk/vaskerom 113 4.7 m² 0 1
Kjøkken 114 7.0 m² 1 1
Spisestue 115 11.8 m² 1 1
TV-Stue 116 11.4 m² 1 1
Gang 117 3.2 m² 0 2
Garderobe 118 4.6 m² 0 1
Bad/vaskerom 119 4.8 m² 0 1
Kjøkken 120 10.2 m² 1 1
Stue 121 27.1 m² 1 2

Carport 24.2 m²

Etasje 0 24.2 m²

Rom Areal Vinduer Dører
Bod 001 5.1 m² 0 0
Bod 002 5.1 m² 0 0
Bod 003 5.1 m² 0 0
Bod 004 5.1 m² 0 0

Fasader

Carport

Øst
Materiale
Stål
Taktype
Flatt tak
Høyde
2.6 m
Mønehøyde
8.2 m
Vinduer
0
Dører
0
Synlige etasjer
1
Nord
Materiale
Stål
Taktype
Flatt tak
Høyde
2.1 m
Vinduer
0
Dører
0
Synlige etasjer
1
Vest
Materiale
Stål
Taktype
Flatt tak
Høyde
2.4 m
Mønehøyde
6.4 m
Vinduer
0
Dører
0
Synlige etasjer
1
Sør
Materiale
Stål
Taktype
Flatt tak
Høyde
2.1 m
Mønehøyde
8.2 m
Vinduer
0
Dører
0
Synlige etasjer
1

Hendelser

31.03.2026 265/236 Heggumstubben - Oversendelse av klage til Statsforvalter klage
05.03.2026 265/236 Heggumstubben - Bekrefter at klagen er fremsatt på vegne av tiltakshaver UAB Eritėja klage
05.03.2026 265/236 Heggumstubben - Kvittering på mottatt klage klage
26.02.2026 265/236 Heggumstubben - Klage på avslag på søknad klage
16.02.2026 265/236 Heggumstubben - Avslag på søknad om rammetillatelse om nybygg rekkehus/4-mannsbolig med bod, carport og felles lekeplass rammetillatelse
10.02.2026 265/236 Heggumstubben - Svar på status i saken
29.01.2026 265/236 Heggumstubben - Ber om tilbakemelding
11.12.2025 265/236 Heggumstubben - Godkjent sanitærmelding
18.11.2025 265/236 Heggumstubben - Supplering av søknad rammetillatelse
11.11.2025 265/236 Heggumstubben - Supplering av søknad søknad
24.09.2025 265/236 Heggumstubben - Svar på forespørsel om utsettelse av frist for komplettering av søknad søknad
19.09.2025 265/236 Heggumstubben - Ber om utsettelse av frist for komplettering av søknad søknad
17.06.2025 265/236 Heggumstubben - Varsel om avslag nr. 2 og ufullstendig søknad avslag
28.05.2025 265/236 Heggumstubben - Svar på spørsmål om status i saken
26.05.2025 265/236 Heggumstubben - Purrer opp svar i saken
12.05.2025 265/236 Heggumstubben - Purrer opp svar i saken
25.04.2025 265/236 Heggumstubben - Ber om status i saken
10.04.2025 265/236 Heggumstubben - Forespørsel til reguleringsplan for rv 23 Bjørnstad-Dagslett - Midtdelerprosjekt (kopi)
09.04.2025 265/236 Heggumstubben - Supplering av søknad søknad
07.03.2025 265/236 Heggumstubben - Supplering av søknad søknad
10.02.2025 265/236 Heggumstubben - Tilbakemelding om forlengelse av fristen for komplettere byggesaken
04.02.2025 265/236 Heggumstubben - Ber om forlengelse av fristen for komplettering
16.12.2024 265/236 Heggumstubben - Tilbakemelding om utsatt frist
10.12.2024 265/236 Heggumstubben - Ber om utsatt frist for svar på mangelbrev
27.09.2024 265/236 Heggumstubben - Varsel om avslag og ufullstendig søknad for nybygg rekkehus/4-mannsbolig med bod, carport og felles lekeplass avslag
26.09.2024 265/236 Heggumstubben - Tilbakemelding
20.09.2024 265/236 Heggumstubben - Tilbakemelding på status i saken
17.09.2024 265/236 Heggumstubben - Ber om status i saken
03.09.2024 265/236 Heggumstubben - Tilbakemelding på spørsmål om saksbehandler og saksbehandlingstid
29.08.2024 265/236 Heggumstubben - Purring på svar
23.08.2024 265/236 Heggumstubben - Purring nr. 3 på svar
12.08.2024 265/236 Heggumstubben - Purring på svar og spørsmål om saksbehandler
17.07.2024 265/236 Heggumstubben - Ber om status
14.06.2024 265/236 Heggumstubben - Søknad om nybygg rekkehus / 4-mannsbolig med bod, carport og felles lekeplass søknad
14.06.2024 265/236 - Bekreftelse på at vi har mottatt din søknad søknad