NewConstruction Rammetillatelse Rekkehus

Oppføring av åtte rekkehus med riving i Nesveien 38, Ørje

📍 Nesveien 38 , 1870 ØRJE

Nøkkelinfo

Sakstype
Nybygg
Bygningstype
Rekkehus
Bruksareal
787 m²
Boenheter
8
Kommune
Marker
Fylke
Østfold
Gnr / Bnr
90 / 40
Saksnummer
2026/5
Fase
Rammetillatelse

Om byggesaken

Prosjektet omfatter oppføring av åtte nye rekkehus i to etasjer med carport og bod, totalt ca. 787 m² BYA, på eiendommen Nesveien 38 i Ørje. Eksisterende tomannsbolig og tilhørende bygninger rives. Rekkehusene har klassisk arkitektur med saltak og hvit panelkledning, og mønehøyde på 7,3 m. Byggene plasseres med tilpasning til eksisterende terreng og vegetasjon, med minimum 6 m avstand til vannkant. Det er planlagt uteoppholdsarealer og lekeplasser i tråd med kommuneplanens krav, og støyberegninger viser tilfredsstillende støynivå både ute og inne. Tiltaket inkluderer tilknytning til offentlig vann- og avløpsnett, grunnarbeider, miljøsanering og riving, samt landskapsutforming og vei. Dispensasjoner er gitt for byggegrenser mot vei og friområde, samt plassering på regulert kjørevei, uten at hensynene bak bestemmelsene anses vesentlig tilsidesatt.

Produkter og materialer

Mur Grunnmur

🧱 Betong

Antall: 8

Grunnmurer for rekkehus i betong

Grunnmurer for nye rekkehus

Ventilasjon Ventilasjon og klimainstallasjoner

Antall: 8

Ventilasjon i rekkehus, prosjektert og utført av Idéhus Østfoldbygg AS

Ventilasjonsanlegg i alle boliger

Tak Saltak med teglstein

🧱 Teglstein

Antall: 8

Saltak med rød teglstein på rekkehus

Taktekking for rekkehus

Rekkverk Balkongrekkverk

🧱 Tre/metall

Antall: 8

Rekkverk på balkonger til rekkehus

Sikkerhetsrekkverk på balkonger

Gulv Innvendige gulvflater

🧱 Parkett og fliser

Antall: 8

Innvendige gulv med parkett i oppholdsrom og fliser på bad

Gulvbelegg i rekkehus

VVS Innvendige sanitærinstallasjoner

Antall: 8

Sanitærinstallasjoner i rekkehus, utført av ASKIM & MYSEN RØR AS

VVS-installasjoner for alle boliger

Dører Ytterdør og balkongdør

🧱 Tre med glass

Antall: 16

Ytterdører og balkongdører til rekkehus

Ytterdører og balkongdører i rekkehus

Vinduer Fasadevindu

🧱 Tre/aluminium

Antall: 18

Vinduer i rekkehus, inkludert 3 vinduer i stue/kjøkken per bolig

Fasadevindu til rekkehus i to etasjer

Garasjeport Carport port

🧱 Tre eller metall

Antall: 8

Carport til hver rekkehusbolig

Carport med port til hver bolig

Miljøsanering Riving og miljøsanering

Antall: 1

Riving av eksisterende tomannsbolig og miljøsanering utført av HØITOMT FJELLBORING AS

Riving og miljøsanering av eksisterende bygninger

Trapper Innvendig trapp i L-form

🧱 Tre

Antall: 8

Innvendige trapper i rekkehus

Innvendige trapper i hver bolig

Terrasse Balkong/terrasse

🧱 Tre

Antall: 8

Balkonger på rekkehus, ca. 30,7 m² BRA per bolig

Balkonger til rekkehus

Maling Innvendig maling

🧱 Maling

Antall: 8

Innvendig maling av vegger og tak

Innvendige overflater i rekkehus

Betong Plasstøpte betongkonstruksjoner

🧱 Betong

Antall: 8

Betongkonstruksjoner for rekkehus, utført av Idéhus Østfoldbygg AS

Fundamenter og bærende konstruksjoner

Bad Baderomsinnredning og sanitærutstyr

Antall: 8

Bad med sanitærutstyr og baderomsinnredning

Bad i rekkehus

Fasade Panelkledning

🧱 Hvit malt trepanel

Antall: 8

Fasader med hvit panelkledning

Yttervegger med hvit panelkledning

Grunnarbeid Veg og grunnarbeider

Antall: 1

Grunnarbeider og vegarbeid utført av HØITOMT FJELLBORING AS

Grunnarbeid for bygg og uteområder

VVS Vannforsynings- og avløpsanlegg

Antall: 1

Tilknytning til offentlig vann- og avløpsnett, prosjektert av HØITOMT FJELLBORING AS

Offentlig vann og avløp til eiendommen

Kjøkken Kjøkkeninnredning

Antall: 8

Kjøkkeninnredning iht. leverandørs tegninger

Kjøkkeninnredning i rekkehus

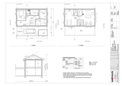
Plantegning

Enebolig 153.7 m²

Etasje 1 98.4 m²

Rom Areal Vinduer Dører
Carport/overbygde 101 25.0 m² 0 0
Utv. bod 102 5.1 m² 0 0
Soverom 1 103 10.9 m² 1 1
Entre 104 5.0 m² 0 1
Gang/trapp 105 12.2 m² 0 0
Soverom 2 106 7.9 m² 1 1
Soverom 3 107 8.0 m² 1 1
Bod 108 2.5 m² 0 1
Bad 109 5.7 m² 0 1

Etasje 2 55.3 m²

Rom Areal Vinduer Dører
Stue/kjøkken 201 44.3 m² 3 1
Wc 202 2.2 m² 0 1
Bod 203 3.3 m² 0 1

Fasader

Enebolig

Nord
Materiale
Tre
Taktype
Saltak
Takmat.
Tegl
Vinduer
0
Dører
0
Synlige etasjer
1
Vest
Materiale
Tre
Taktype
Saltak
Takmat.
Tegl
Vinduer
4
Dører
1
Balkonger
1
Synlige etasjer
2
Sør
Materiale
Tre
Taktype
Saltak
Takmat.
Tegl
Vinduer
4
Dører
1
Balkonger
1
Synlige etasjer
2
Øst
Materiale
Tre
Taktype
Saltak
Takmat.
Tegl
Vinduer
5
Dører
0
Balkonger
1
Synlige etasjer
2

Hendelser

21.04.2026 Supplering av søknad - Nesveien 38 - gnr 90 bnr 40
19.04.2026 Tillatelse til tiltak og dispensasjon - Oppføring åtte rekkehus - Nesveien 38 - gnr 90 bnr 40
06.02.2026 Supplering av søknad - Nesveien 38 - gnr 90 bnr 40
04.02.2026 Behov for ytterligere dokumentasjon - Oppføring åtte rekkehus og riving eksisterende bebyggelse - Nesveien 38 - gnr 90 bnr 40
03.02.2026 Supplerende dokumentasjon - Oppføring åtte rekkehus - Nesveien 38 - gnr 90 bnr 40
12.01.2026 Supplerende dokumentasjon - Oppføring åtte rekkehus - Nesveien 38 - gnr 90 bnr 40
02.01.2026 Søknad om tillatelse i ett trinn - Nesveien 38 - gnr 90 bnr 40