ChangeOfUse Soeknad Tomannsbolig

Bruksendring til to boenheter i Bjørnsons gate 40, Bergen

📍 Bjørnsons gate 40 , 5052 BERGEN

Nøkkelinfo

Sakstype
Bruksendring
Bygningstype
Tomannsbolig
Bruksareal
187 m²
Boenheter
10
Kommune
Bergen
Fylke
Vestland
Gnr / Bnr
162 / 557
Saksnummer
BYGG-2026/12657
Fase
Søknad

Om byggesaken

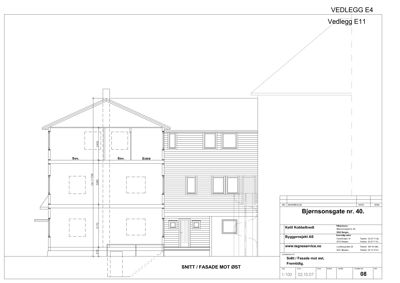
Eksisterende bygning i Bjørnsons gate 40, Bergen, gjennomgår bruksendring fra næringsareal (butikk) til boligformål med etablering av to nye boenheter i 1. etasje. Bygningen er en eldre bolig med totalt 8 boenheter, og tiltaket øker dette til 10 boenheter. Det utføres oppgradering av bærekonstruksjoner og sekundære bygningsdeler i henhold til TEK17. Fasadeendringer inkluderer reduksjon i vindusstørrelse og omgjøring av tidligere butikkdør til vindu. I kjeller etableres sportsboder for alle boenheter. Prosjektet omfatter også tilpasninger for lydisolering på grunn av støy fra vegtrafikk. Det er ikke planlagt endringer i byggehøyde eller vesentlige fasadeendringer, og uteoppholdsareal er begrenset med dispensasjonssøknad for krav til uteareal og plankrav. Parkeringsdekning opprettholdes med eksisterende plasser, inkludert garasje.

Produkter og materialer

Vinduer Fasadevindu

🧱 tre med økt brystning for lydisolering

Antall: 5

Reduksjon i vindusstørrelse mot fasade vest og øst, lydisolerende egenskaper pga. vegtrafikkstøy

Nye og modifiserte fasadevinduer med økt brystning for bedre lydisolering

Elektro Bygningstekniske installasjoner

Oppgradering av tekniske installasjoner i forbindelse med bruksendring

Oppgradering av elektroinstallasjoner i bygget

VVS Vann og avløp tilkobling

Eksisterende tilknytning til offentlig vann og avløp, vurdering av kapasitet for økt belastning

VVS-tilpasninger for økt boligbruk

Bod Sportsbod i kjeller

Antall: 10

Etablering av sportsboder for alle boenheter i kjeller, i henhold til TEK17

Oppbevaringsboder for hver boenhet i kjeller

Dører Fasadedør omgjort til vindu

🧱 tre

Antall: 1

Tidligere butikkdør på hjørne endres til vindu

Ombygging av dør til vindu i fasade

Garasjeport Eksisterende garasje

Antall: 1

Garasje på 28,9 m² med 1 vindu og 1 dør, parkeringsplass opprettholdes

Eksisterende garasje for parkering

Isolasjon Lydisolering vegg og vindu

Krav til gode lydvinduer og veggkonstruksjoner for å ivareta innendørs støynivå pga. vegtrafikk

Lydisoleringstiltak for å redusere støy fra trafikk

Grunnarbeid Ingen utgraving planlagt

Ingen utgraving i eksisterende grunn, takhøyde innenfor krav

Ingen nye grunnarbeider planlagt

Tømrer Oppgradering bærekonstruksjoner og sekundære bygningsdeler

Oppgradering i henhold til TEK17 for bruksendring

Oppgradering av bærekonstruksjoner og sekundære bygningsdeler

Trapper Innvendige trapper

Antall: 2

To trapperom i leilighetsdelen, ett trapperom i enebolig

Trapper for adkomst til boenheter

Plantegning

Enebolig 516.0 m²

Etasje 1 172.0 m²

Rom Areal Vinduer Dører
Stue 101 42.0 m² 2 2
Kjøkken 102 17.0 m² 1 1
Bad/WC 103 8.0 m² 0 1
Soveområde 104 12.0 m² 1 1
Soveområde 105 12.0 m² 1 1
Soveområde 106 12.0 m² 1 1
Gang 107 11.0 m² 0 0
Entré 108 5.0 m² 0 1

Etasje 2 172.0 m²

Rom Areal Vinduer Dører
Stue 201 42.0 m² 2 2
Kjøkken 202 17.0 m² 1 1
Bad/WC 203 8.0 m² 0 1
Soveområde 204 12.0 m² 1 1
Soveområde 205 12.0 m² 1 1
Soveområde 206 12.0 m² 1 1
Gang 207 11.0 m² 0 0
Entré 208 5.0 m² 0 1

Etasje 3 172.0 m²

Rom Areal Vinduer Dører
Stue 301 42.0 m² 2 2
Kjøkken 302 17.0 m² 1 1
Bad/WC 303 8.0 m² 0 1
Soveområde 304 12.0 m² 1 1
Soveområde 305 12.0 m² 1 1
Soveområde 306 12.0 m² 1 1
Gang 307 11.0 m² 0 0
Entré 308 5.0 m² 0 1

Etasje 0 0.0 m²

Rom Areal Vinduer Dører
Lager 001 0.0 m² 0 0
Bod 002 0.0 m² 0 0
Bod 003 0.0 m² 0 0
Vaskehus 004 0.0 m² 0 0
Gang 005 0.0 m² 0 0
Kum 006 0.0 m² 0 0
Bod 007 0.0 m² 0 0
Bod 008 0.0 m² 0 0
Bod 009 0.0 m² 0 0
Rum 010 0.0 m² 0 0
Fellesareal 011 15.9 m² 0 6
Felles Vaskerom 012 12.1 m² 0 1
Trapperom 013 8.9 m² 0 1

Leilighet 187.3 m²

Etasje 1 187.3 m²

Rom Areal Vinduer Dører
Stue/Kjøkken H0101 25.2 m² 2 2
Stue/Kjøkken H0102 29.6 m² 1 1
Stue H0103 27.2 m² 1 1
Soverom U01 12.0 m² 1 1
Soverom U02 11.0 m² 1 1
Soverom U03 11.3 m² 1 1
Soverom U04 15.7 m² 1 1
Kjøkken U05 6.1 m² 0 1
Gang U06 2.0 m² 0 1
Entre U07 4.1 m² 0 1
Bad U08 4.4 m² 0 1
Bad U09 4.3 m² 0 1
Bad U10 3.5 m² 0 1
Vaskerom U11 3.0 m² 0 1
Trapperom U12 10.1 m² 0 1
Trapperom U13 8.4 m² 0 1
Garasje Garasje 28.9 m² 1 1

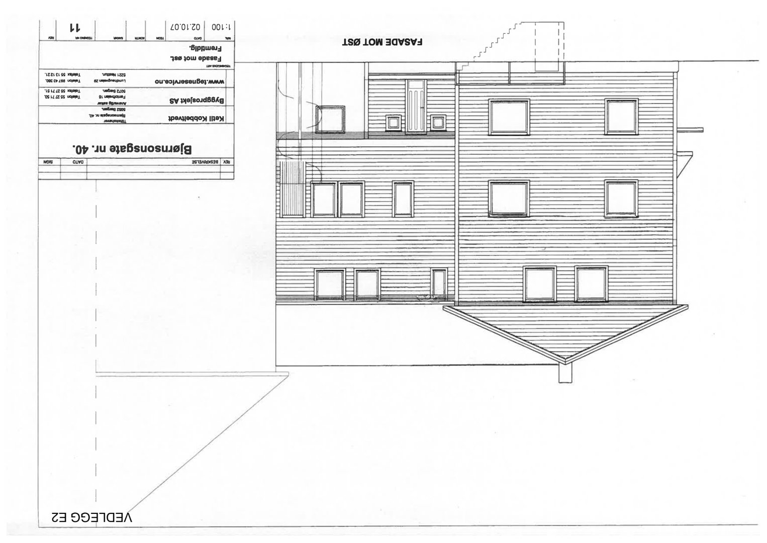
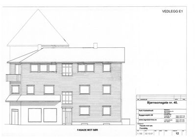
Fasader

Enebolig

Øst
Materiale
Tre
Taktype
Saltak
Vinduer
9
Dører
1
Balkonger
1
Synlige etasjer
3
Sør
Materiale
Tre
Taktype
Saltak
Vinduer
13
Dører
1
Balkonger
1
Synlige etasjer
3
Vest
Materiale
Tre
Taktype
Saltak
Vinduer
11
Dører
1
Balkonger
1
Synlige etasjer
3

Garasje

Nord
Vinduer
0
Dører
0
Synlige etasjer
1
Vest
Vinduer
2
Dører
0
Synlige etasjer
2

Hendelser

20.04.2026 Bjørnsons gate 40 Søknad om rammetillatelse 162/557