ChangeOfUse UnderBehandling Tomannsbolig

Omgjøring til tomannsbolig med tilbygg og garasje i Brusetveien 89

📍 Brusetveien 89A , 1395 HVALSTAD

Nøkkelinfo

Sakstype
Bruksendring
Bygningstype
Tomannsbolig
Bruksareal
261 m²
Boenheter
2
Kommune
Asker
Fylke
Akershus
Gnr / Bnr
28 / 186
Saksnummer
21/3191
Fase
Under behandling

Om byggesaken

Eksisterende enebolig på Brusetveien 89 ombygges til vertikaldelt tomannsbolig med to boenheter. Bygget får et tilbygg på 52 m² over to plan på vestfasaden, samt et karnapp på nordfasaden. Takformen endres fra saltak til pulttak, og fasadene får ny kledning og nye vinduer. Innvendig bygges boder i kjeller om til bad, vaskerom og kjellerstue med rømningsvindu. Det oppføres en ny frittstående garasje med flatt tak for to biler og bod, med tilhørende parkeringsplass på terreng. Eksisterende garasje rives. Det bygges også en utvendig trapp langs østfasaden. Totalt areal for bygget er ca. 261 m² fordelt på tre etasjer. Tiltaket inkluderer også etterisolering og oppgradering av bygningskroppen. Eiendommen ligger innenfor 30 meter byggegrense fra jernbane, og det foreligger dispensasjon og tillatelse fra Bane NOR for tiltak nær jernbanen. Støyvurdering viser at eiendommen ligger i gul støysone, og det er gitt dispensasjon for to soverom uten vindu mot stille side. Prosjektet har ansvarlig søker og utførende med ansvarsrett, og det foreligger godkjent rammetillatelse.

Arbeidsomfang

- Omgjøring av enebolig til tomannsbolig (innredning/endring av bruksform) - Oppføring av tilbygg - Oppføring av garasje (frittstående) - Oppføring av utvendig trapp

Produkter og materialer

Vinduer Støydempende vinduer

Antall: 30

Vinduer med lydisolasjon tilpasset gul støysone, inkludert rømningsvindu i kjeller (800x1000 mm)

Nye vinduer med tilstrekkelig lydisolasjon for å tilfredsstille krav i gul støysone, inkludert rømningsvindu i kjellerstue.

Isolasjon Etterisolering yttervegger

🧱 Mineralull 100 mm

Tilleggsisolering av yttervegger med 100 mm mineralull

Etterisolering av eksisterende bindingsverksvegger for bedre energiytelse.

Tak Pulttak og flatt tak

🧱 Taktekking iht. TEK17

Endring av takform fra saltak til pulttak på bolig, og flatt tak på ny garasje

Nytt pulttak på bolig og flatt tak på garasje med ny taktekking i henhold til gjeldende forskrifter.

Betong Støttemur og såle

🧱 Betong

Støttemur langs garasje øst- og nordfasade, betongsåle for garasje

Støttemur og betongsåle for garasje og terrengjusteringer.

Maling Utvendig maling

Maling av ny kledning og fasader

Overflatebehandling av trefasader med maling.

Garasjeport Dobbel garasjeport

Antall: 1

Garasje for to biler med bod, flatt tak, grunnflate ca. 49 m²

Ny frittstående garasje med dobbel port og bod, tilpasset parkering for to biler.

Gulv Innvendige gulvflater

Nye gulv i tilbygg og ombygde rom, inkludert bad og kjellerstue

Gulvlegging i nye og ombygde rom, tilpasset våtrom og oppholdsrom.

Dører Ytterdører og inngangspartier

🧱 Tre

Antall: 10

Nye inngangspartier til hoveddel og sekundærdel, samt dører til balkong og utvendig trapp

Nye ytterdører og inngangspartier i tre, inkludert dører til utvendig trapp langs østfasade.

Trapper Utvendig trapp langs østfasade

🧱 Betong

Antall: 1

1200 mm bred utvendig trapp langs boligens østlige fasade

Ny utvendig betongtrapp langs østfasaden for adkomst.

Terrasse Parkeringsareal på terreng

Antall: 72

Parkeringsareal på terreng øst for bolig, 72 m²

Opparbeidelse av parkeringsplass på terreng for sekundærleilighet.

Bad Nye våtrom

Nye bad i kjeller og 1. etasje med sanitærutstyr og fliser

Oppgradering og etablering av nye bad med nødvendig utstyr og overflater.

VVS Sanitærinstallasjoner

Nye bad, vaskerom og kjellerstue med sanitærinstallasjoner i kjeller

Ombygging av boder til bad, vaskerom og kjellerstue med nødvendige sanitærinstallasjoner.

Grunnarbeid Utgraving og fundamentering

Utgraving for tilbygg og garasje, fundamentering med betongsåle og støttemur

Grunnarbeider for tilbygg og garasje, inkludert støttemur og fundamentering.

Fasade Kledning

🧱 Tre

Ny kledning på boligfasader, etterisolering under kledning

Etterisolering og ny tre-kledning på eksisterende bygningskropp.

Elektro Balansert ventilasjon med varmegjenvinning

Balansert ventilasjonsanlegg installeres som støy- og energitiltak

Ventilasjonsanlegg for å sikre god luftkvalitet og redusere støy innendørs.

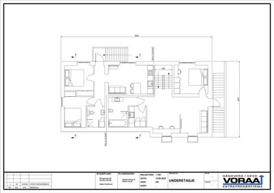
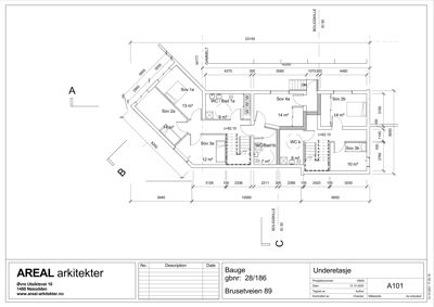
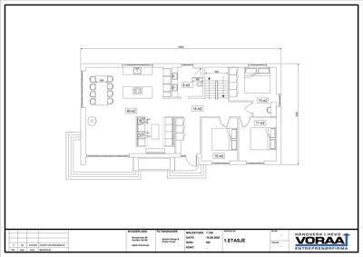
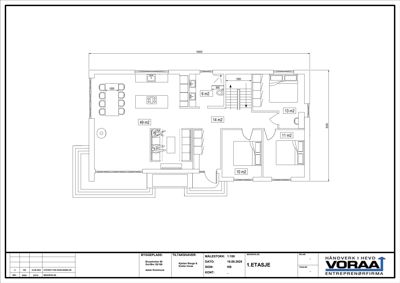
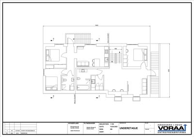
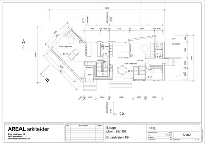
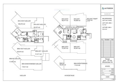
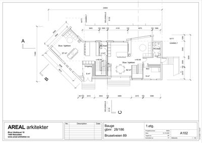
Plantegning

Enebolig 261.0 m²

Etasje 2 38.0 m²

Rom Areal Vinduer Dører
Stue 201 25.0 m² 1 1
Sovev. 1 202 10.4 m² 1 1
Sovev. 2 203 2.6 m² 0 1

Etasje 1 103.0 m²

Rom Areal Vinduer Dører
Stue 101 49.0 m² 1 2
Kjøkken 102 14.0 m² 0 1
Bad 103 6.0 m² 0 1
Gang 104 13.0 m² 0 3
Soverom 1 105 11.0 m² 1 1
Soverom 2 106 10.0 m² 1 1
Soverom 107 13.0 m² 1 1
BRA Ny 108 40.8 m² 0 0
BRA Eksisterende 109 113.4 m² 0 0

Etasje 0 120.0 m²

Rom Areal Vinduer Dører
Stue 001 49.0 m² 1 2
Kjøkken 002 14.0 m² 1 2
Bad 003 6.0 m² 0 2
Soverom 004 13.0 m² 1 2
Soverom 005 11.0 m² 1 2
Soverom 006 10.0 m² 1 2
Sov 2a U01 14.0 m² 0 1
Sov 1a U02 13.0 m² 0 1
WC / Bad 1a U03 9.0 m² 0 1
Sov 3a U04 12.0 m² 0 1
WC / Bad 1b U05 6.0 m² 0 1
Sov 4a U06 15.0 m² 0 1
WC b U07 8.0 m² 0 1
Sov 2b U08 14.0 m² 0 1
Sov 3b U09 10.0 m² 0 1
WC / Bad 1a 007 9.0 m² 0 1
WC / Bad 1b 008 7.0 m² 0 1
WC b 009 8.0 m² 0 1

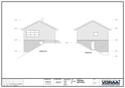
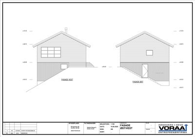
Fasader

Enebolig

Nord
Materiale
Tre
Taktype
Flatt tak
Høyde
6.5 m
Mønehøyde
8.2 m
Vinduer
5
Dører
1
Synlige etasjer
2
Vest
Materiale
Tre
Taktype
Pulttak
Høyde
3.2 m
Mønehøyde
7.8 m
Vinduer
6
Dører
2
Synlige etasjer
2
Sør
Materiale
Tre
Taktype
Flatt tak
Høyde
6.5 m
Mønehøyde
7.0 m
Vinduer
10
Dører
1
Synlige etasjer
2
Sydvest
Materiale
Tre
Taktype
Flatt tak
Vinduer
6
Dører
2
Synlige etasjer
2
Øst
Materiale
Tre
Taktype
Saltak
Høyde
3.2 m
Mønehøyde
7.8 m
Vinduer
1
Dører
1
Synlige etasjer
2

Hendelser

07.04.2026 28/186 Brusetveien 89 - Svar på brev om avvisning av søknad om igangsettingstillatelse rammetillatelse
18.03.2026 28/186 Brusetveien 89 - Ny situasjonsplan
17.03.2026 28/186 Brusetveien 89 Vedr søknad om igangsettingstillatelse - Omgjøring av enebolig til tomannsbolig m.m. igangsettingstillatelse
11.03.2026 28/186 Brusetveien 89 Vedr søknad om endring av gitt tillatelse - Omgjøring av enebolig til tomannsbolig m.m. dispensasjon
05.01.2026 246/225 Brusetveien 89 - Søknad om endring av gitt tillatelse søknad
23.12.2025 28/186 Brusetveien 89 - Vedtak om tillatelse til oppføring av garasje og utvendig trapp til bolig (kopi) vedtak
17.12.2025 28/186 Brusetveien 89 - Varsel om avslutning av sak - Omgjøring av enebolig til tomannsbolig m.m.
16.12.2025 28/186 Brusetveien 89 - Veien videre
07.11.2025 28/186 Brusetveien 89 - Endringssøknad omgjøring av enebolig til tomannsbolig - Ufullstendig søknad søknad
31.10.2025 28/186 Brusetveien 89 - Søknad om endring av gitt tillatelse søknad
16.10.2025 28/186 Brusetveien 89 - Svar på kommentar til videre behandling - Omgjøring av enebolig til tomannsbolig mm.
05.09.2025 28/186 Brusetveien 89 - Kommentar til videre behandling av saken
04.09.2025 28/186 Brusetveien 89 - Svar på melding om utførte arbeider - Omgjøring av enebolig til tomannsbolig mm.
27.08.2025 28/186 Brusetveien 89 - Tegninger som viser gjennomført ombygging
11.07.2025 28/186 Brusetveien 89 - Ufullstendig søknad om igangsettingstillatelse igangsettingstillatelse
24.10.2024 28/186 Brusetveien 89 - Gjennomføringsplan
24.10.2024 28/186 Brusetveien 89 - Søknad om igangsettingstillatelse igangsettingstillatelse
21.12.2021 28/186 Avklaring om brannvannsdekning - Omgjøring av enebolig til tomannsbolig mm.
03.12.2021 28/186 Reduksjon av gebyr - Omgjøring av enebolig til tomannsbolig mm.
02.12.2021 28/186 Avklaring om brannvernsdekning - Omgjøring av enebolig til tomannsbolig mm.
26.11.2021 28/186 Søknad om reduksjon av gebyr - Omgjøring av enebolig til tomannsbolig mm. søknad
05.11.2021 28/186 Godkjent dispensasjon og rammetillatelse - Endring av enebolig til tomannsbolig, tilbygg mm. rammetillatelse
29.10.2021 28/186 Supplerende dokumentasjon - Omgjøring av enebolig til tomannsbolig mm.
23.09.2021 28/186 Mangler i søknad - Omgjøring av enebolig til tomannsbolig mm. søknad
02.08.2021 28/186 Tillatelse fra Bane Nor - Omgjøring av enebolig til tomannsbolig mm.
21.07.2021 28/186 Kvitteringsbrev - Omgjøring av enebolig til tomannsbolig mm.
19.07.2021 28/186 Søknad om omgjøring av enebolig til tomannsbolig mm. søknad