ChangeOfUse Avslatt Tomannsbolig

Bruksendring og ombygging av tomannsbolig på Krohnhaugen 13, Bergen

📍 Krohnhaugen 13 , 5059 BERGEN

Nøkkelinfo

Sakstype
Bruksendring
Bygningstype
Tomannsbolig
Bruksareal
141 m²
Boenheter
3
Kommune
Bergen
Fylke
Vestland
Gnr / Bnr
159 / 124
Saksnummer
BYGG-2026/00123
Fase
Avslått

Om byggesaken

Bruksendring av deler av underetasje fra tilleggsdel (boder og vaskerom) til hoveddel som ny boenhet på ca. 58,8 m², samt innlemming av loftetasje til underliggende boenhet i 2. etasje med påfølgende bruksendring fra tilleggsdel (boder og tørkeloft) til boligrom. Bygningen er en sammenbygd tomannsbolig med fire etasjer inkludert underetasje og loft. Det utføres fasadeendringer med godkjenning av innsatte takvinduer i takflater mot flere himmelretninger og utvidelse av vindusåpning i underetasje. Tiltaket inkluderer også oppgradering av våtrom, installasjon av sprinkleranlegg, brannalarmanlegg og ventilasjon, samt endringer i brann- og lydskillende bygningsdeler. Bygningen har saltak med teglstein og trekledning. Det søkes dispensasjon fra plankrav, parkeringskrav og byggegrensebestemmelser. Tiltaket er avslått i denne saken, men prosjektet er et reelt byggeprosjekt med omfattende bygningsmessige og tekniske tiltak.

Produkter og materialer

VVS Sanitærinstallasjoner

Nye våtrom i underetasje og oppgradering av eksisterende bad

Sanitærinstallasjoner for nye og oppgraderte våtrom

Isolasjon Innvendig veggisolasjon

🧱 Mineralull 100 mm

Innvendig isolasjon av yttervegger i underetasje med 100 mm mineralull

Isolasjon for bedre energieffektivitet

VVS Sprinkleranlegg

Antall: 1

Automatisk sprinkleranlegg med buffertank og pumpe i kjeller

Brannsikkerhetstiltak for boenhet i 2. etasje og loft

Annet Brannsikkerhetstiltak

Brann- og lydskillende bygningsdeler rundt trapperom, sprinkling og brannalarmanlegg

Tiltak for å ivareta brannsikkerhet ved bruksendring

Vinduer Fasadevindu

🧱 2-lags energiglass

Antall: 1

Utvidelse av vindusåpning i underetasje i fasade mot sørøst for ekstra vindu

Fasadevindu for økt dagslys i oppholdsrom i underetasje

Dører Ytterdør

Antall: 3

Ytterdører i fasader, inkludert dør til garasje

Ytterdører til boenheter og garasje

Mur Grunnmur i betong

🧱 Betong

Eksisterende grunnmur i betong

Grunnmur for bygning

Garasjeport Garasjeport

Antall: 1

Garasjeport i underetasje

Port til felles garasje

Ventilasjon Balansert ventilasjon

Antall: 1

Balansert ventilasjon med varmegjenvinning for ny boenhet

Ventilasjon for god luftkvalitet og energibesparelse

Gulv Isolert gulv med varmekabler

🧱 EPS isolasjon

Nytt støpt gulv med minimum 50 mm EPS isolasjon og varmekabler i underetasje

Isolert gulvkonstruksjon for ny boenhet

Tak Saltak med teglstein

🧱 Teglstein

Saltak med teglstein på alle fasader

Taktekking med teglstein på saltak

Grunnarbeid Miljøteknisk grunnundersøkelse

Miljøteknisk grunnundersøkelse og tiltaksplan ved eventuell graving i underetasje

Grunnundersøkelse for miljø og sikkerhet ved gravearbeider

Elektro Brannalarmanlegg

Antall: 1

Brannalarmanlegg med sprinklervakt

Brannsikkerhetstiltak i boenheter

Fasade Trekledning

🧱 Tre

Trekledning på fasader mot sørvest, nordvest, sørøst og vest

Fasadebekledning i tre

Trapper Innvendig trapp

🧱 Tre

Antall: 3

Eksisterende trapp mellom 2. etasje og loft, samt trapper i underetasje og 1. etasje

Trapper for intern kommunikasjon mellom etasjer

Vinduer Takvindu

🧱 3-lags energiglass

Antall: 4

Takvinduer i takflater mot sørøst, sørvest og nordvest, godkjent i ettertid

Takvinduer for økt lysinnfall og utsyn i loftsetasje og bruksendret areal

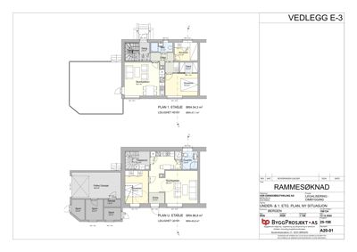
Plantegning

Enebolig 141.1 m²

Etasje 1 54.3 m²

Rom Areal Vinduer Dører
Stue/kjøkken 101 18.1 m² 1 1
Soverom 102 10.0 m² 1 1
Soverom 103 6.1 m² 1 1
Gang 104 2.6 m² 0 1
Entre 105 5.1 m² 0 1
Bad 106 3.1 m² 0 1
Gard. 107 2.6 m² 0 1
Gang 108 0.0 m² 0 0
Kjøkken 109 0.0 m² 0 0
WC 110 0.0 m² 0 0
Gang 111 0.0 m² 0 0

Etasje 0 86.8 m²

Rom Areal Vinduer Dører
Stue/kjøkken U01 26.5 m² 1 1
Soverom U02 10.6 m² 1 1
Dusj/Wc U03 3.9 m² 0 1
Trapperom U04 6.2 m² 0 0
Entre U05 2.4 m² 0 1
Felles Garasje U06 18.0 m² 0 1
Sport U07 3.4 m² 0 0
Sport U08 5.0 m² 0 0
Sport U09 2.9 m² 0 0
Teknisk U10 1.8 m² 0 0
Vedlikehold 001 0.0 m² 0 0
Vaskerom 002 0.0 m² 0 0

Etasje 2 0.0 m²

Rom Areal Vinduer Dører
Kjøkken 201 0.0 m² 0 0
Vedlikehold 202 0.0 m² 0 0
Teknisk loft 203 0.0 m² 0 0

Fasader

Enebolig

Sørvest
Materiale
Tre
Taktype
Saltak
Takmat.
Tegl
Vinduer
4
Dører
1
Balkonger
1
Synlige etasjer
2
Nordvest
Materiale
Tre
Taktype
Saltak
Takmat.
Tegl
Vinduer
4
Dører
1
Balkonger
1
Synlige etasjer
2
Sørøst
Materiale
Tre
Taktype
Saltak
Takmat.
Tegl
Vinduer
5
Dører
1
Balkonger
1
Synlige etasjer
2
Vest
Taktype
Saltak
Høyde
6.5 m
Mønehøyde
8.2 m
Vinduer
2
Dører
0
Synlige etasjer
2

Hovedbygg

Nord
Taktype
Flatt tak
Vinduer
8
Dører
2
Synlige etasjer
2

Hendelser

09.04.2026 Fakturagrunnlag
09.04.2026 Ubw ordre 20693880
25.03.2026 Avslag på søknad 159/124, Krohnhaugen 13
25.03.2026 Rammetillatelse, 159/124, Krohnhaugen 13
24.03.2026 Krohnhaugen 13 Supplering av søknad 159/124
23.02.2026 Krohnhaugen 13 Supplering av søknad 159/124
29.01.2026 Behov for tilleggsopplysninger
08.01.2026 Bekreftelse på mottatt søknad
07.01.2026 Krohnhaugen 13 Søknad om rammetillatelse 159/124