ChangeOfUse UnderBehandling Tomannsbolig

Bruksendring og fasadeendringer på tomannsbolig, Nordre Strandvei 63

📍 Nordre Strandvei 63 , 3145 TJØME

Nøkkelinfo

Sakstype
Bruksendring
Bygningstype
Tomannsbolig
Bruksareal
187 m²
Boenheter
2
Kommune
Færder
Fylke
Vestfold
Gnr / Bnr
209 / 183
Saksnummer
2025/12547
Fase
Under behandling

Om byggesaken

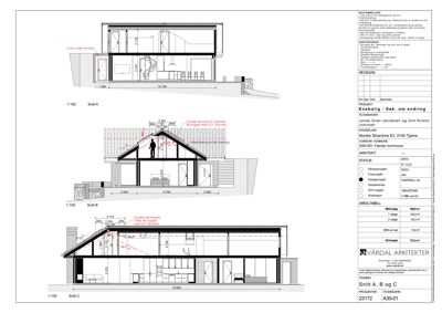
Bruksendring av loftareal fra tilleggsdel til hoveddel i en tomannsbolig med totalt 186,8 m² BRA fordelt på to etasjer. Bygget har gjennomgått fasadeendringer som inkluderer nye takvinduer og utskifting av et lite gavlvindu med to skråvinduer. Taket er etterisolert og takvinkelen endret fra 25° til 31,5°, noe som øker mønehøyden med ca. 80 cm. Det er også etablert en gårdsplass med trappeadkomst og en bod under terreng. Fasadeendringene og bruksendringen forbedrer lysinnslipp, ventilasjon og rømningsmuligheter. Terrassen og støttemur er etablert samtidig med boligen i 1968 og vurderes som en del av tomteopparbeidelsen. Det planlegges også etterisolering av tak og nye takvinduer for bedre energieffektivitet.

Produkter og materialer

Dører Ytterdør til bod under terreng

Antall: 1

Enkel dør montert i hulrom under trapp for å hindre innblåsing av løv og dyr

Dør til utendørs oppbevaringsareal under trapp

Vinduer Skråvinduer

Antall: 2

To skråvinduer som erstatter et lite gavlvindu mot vest

Erstatning av gavlvindu for bedre lys og estetikk

Mur Forstøtningsmur/steinvegg

🧱 Stein

Antall: 1

Steinvegg ca. 1,6 m høy som støtter terrasseareal, etablert samtidig med boligen i 1968

Forstøtningsmur som stabiliserer terreng og terrasse

Fasade Murfasade

🧱 Mur

Mindre fasadeendringer, inkludert buet utførelse på stuevindu og endring av vindusplassering

Fasadeendringer for å tilpasse bruksendring og forbedre estetikk

Tømrer Innvendig trapp

Antall: 1

Endret innvendig trapp til løsning som tilfredsstiller TEK17 krav

Oppgradering av innvendig trapp for å oppfylle dagens tekniske krav

Vinduer Takvindu

Antall: 6

Nye takvinduer i ulike størrelser, blant annet 78x140, 78x118, 78x160, 78x98, 55x90 cm

Nye takvinduer for bedre lysinnslipp og ventilasjon i loftsetasje

Gulv Etterisolering tak

Etterisolering av tak utvendig for bedre energieffektivitet

Isolasjonstiltak for å forbedre byggets energiytelse

Ventilasjon Generell ventilasjon

Forbedret ventilasjon i loftsetasje i forbindelse med bruksendring

Ventilasjonstiltak for å tilfredsstille krav ved innredning av loft

Trapper Utendørs adkomsttrapp

Antall: 1

Trapp og repos etablert i 1968 som del av tomteopparbeidelsen, ikke søknadspliktig etter 1965-loven

Adkomsttrapp fra parkeringsplass til bolig, integrert i terreng

Tak Saltak med takstein

🧱 Tegl

Takvinkel endret fra 25° til 31,5°, etterisolering av tak utvendig, økning i mønehøyde med ca. 80 cm

Etterisolering og endring av takvinkel for bedre energieffektivitet og utnyttelse av loftsareal

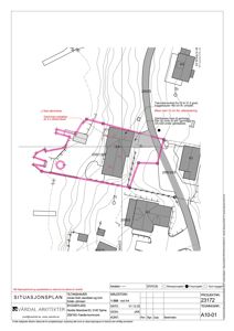
Grunnarbeid Tomteopparbeidelse

Terrasse og gårdsplass etablert i 1968 som del av tomteopparbeidelsen, ikke søknadspliktig

Opparbeidelse av utearealer og terrengjusteringer ved boligoppføring

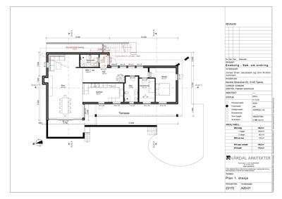
Plantegning

Enebolig 186.8 m²

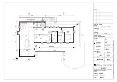
Etasje 1 126.6 m²

Rom Areal Vinduer Dører
Stue 101 82.4 m² 1 1
Kjøkken 102 16.9 m² 1 1
Hall 103 18.0 m² 0 4
Bad/vask 104 5.0 m² 0 1
V.I. 105 2.2 m² 0 0
Master 106 16.7 m² 1 1
Bad 107 7.4 m² 0 1
Gjest/kontor 108 8.1 m² 0 1

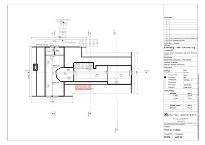
Etasje 2 60.2 m²

Rom Areal Vinduer Dører
Stue BRA 2. etg. 60.0 m² 0 1
Lofstue Lofstue 21.7 m² 1 1
Soverom Sov 16.9 m² 1 1
Bad Bad 2.7 m² 0 1
Vaskerom V.f. 2.7 m² 0 1
Gjest/hobby Gjest/hobby 27.0 m² 0 1
Bod Bod 8.7 m² 0 1

Etasje 0 0.0 m²

Rom Areal Vinduer Dører

Fasader

Enebolig

Sør
Materiale
Mur
Taktype
Saltak
Mønehøyde
9.0 m
Vinduer
3
Dører
2
Synlige etasjer
1
Vest
Materiale
Mur
Taktype
Saltak
Vinduer
8
Dører
1
Synlige etasjer
1
Nord
Materiale
Mur
Taktype
Saltak
Takmat.
Tegl
Vinduer
2
Dører
1
Synlige etasjer
2
Øst
Materiale
Mur
Taktype
Saltak
Takmat.
Tegl
Vinduer
4
Dører
1
Synlige etasjer
2

Hendelser

20.04.2026 Gbnr 209/183 - Nordre Strandvei 63 - Bruksendring fra tilleggsdel til hoveddel, fasadeendringer og etterhåndsgodkjenning for justeringer - Supplering av søknad
19.03.2026 Gbnr 209/183 - Nordre Strandvei 63 - Bruksendring fra tilleggsdel til hoveddel, fasadeendringer og etterhåndsgodkjenning for justeringer - Mangelbrev
20.01.2026 Gbnr 209/183 - Nordre Strandvei 63 - Bruksendring, fasadeendringer og etterhåndsgodkjenning for justeringer - Supplering av søknad
06.01.2026 Gbnr 209/183 - Nordre Strandvei 63 - Bruksendring fra tilleggsdel til hoveddel, fasadeendringer og etterhåndsgodkjenning for justeringer - Behov for ytterligere dokumentasjon
22.12.2025 Gbnr 209/183 - Nordre Strandvei 63 - Søknad om tillatelse i ett trinn for bruksendring fra tilleggsdel til hoveddel