FloorPlan
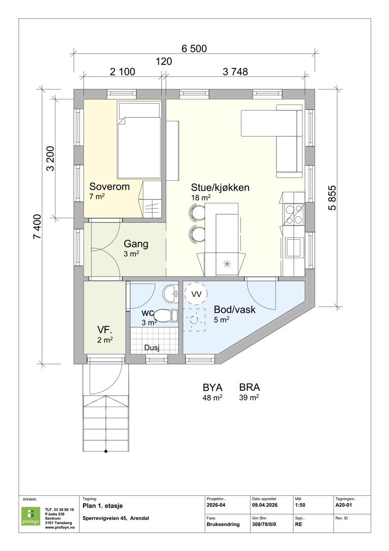
Etasjeplan (Plan 1. etasje) som viser romfordeling, mål og areal for et hus.
1 / 3
ChangeOfUse
Soeknad
Tomannsbolig
Bruksendring fra kontor til bolig i Sperrevigveien 45, Arendal
📍 Sperrevigveien 1 , 4816 KOLBJØRNSVIK
Nøkkelinfo
- Sakstype
- Bruksendring
- Bygningstype
- Tomannsbolig
- Bruksareal
- 48 m²
- Boenheter
- 2
- Kommune
- Arendal
- Fylke
- Agder
- Gnr / Bnr
- 308 / 78
- Saksnummer
- 2026/11790
- Fase
- Søknad
Om byggesaken
Bruksendring av 1. etasje i tomannsbolig på 48 m² fra kontor/laboratorium til bolig. Etasjen inneholder soverom (7 m²), stue/kjøkken (18 m²), gang, vindfang, WC og bod/vaskerom. Bygget har ett trappetrinn og flere vinduer fordelt på rommene. Arbeidet inkluderer arkitekturprosjektering og tømrerarbeid for tilpasning til boligformål, med tilknytning til offentlig vann og avløp. Bygningen ligger i et område regulert til boligbebyggelse.
Produkter og materialer
Gulv
Innvendige gulv
Oppgradering eller tilpasning av gulv i boligrom
Elektro
Elektrisk installasjon
Oppgradering eller tilpasning av elektrisk anlegg til boligstandard
VVS
Sanitærinstallasjoner
Tilpasning av vann- og avløpsinstallasjoner for boligbruk, inkludert WC og vaskerom
Vinduer
Fasadevindu
Antall: 5
Vinduer i soverom (1), stue/kjøkken (3) og bod/vask (1)
Trapper
Innvendig trapp
Antall: 1
Eksisterende trapp til 1. etasje
Tømrer
Ombygging og tilpasning
Tømrerarbeid for ombygging fra kontor/laboratorium til boligformål
Dører
Innvendige dører
Antall: 6
Dører til soverom, stue/kjøkken, gang, vindfang, WC og bod/vask
Maling
Innvendig maling
Maling og overflatebehandling av vegger og tak i boligrom
Plantegning
Enebolig 48.0 m²
Etasje 1 48.0 m²
| Rom | Areal | Vinduer | Dører |
|---|---|---|---|
| Soverom 101 | 7.0 m² | 1 | 1 |
| Stue/kjøkken 102 | 18.0 m² | 3 | 1 |
| Gang 103 | 3.0 m² | 0 | 1 |
| VF. 104 | 2.0 m² | 0 | 1 |
| WC 105 | 3.0 m² | 0 | 1 |
| Bod/vask 106 | 5.0 m² | 1 | 1 |
Hendelser
16.04.2026
Søknad om tillatelse i ett trinn 308/78