ChangeOfUse UnderBehandling Tomannsbolig

Bruksendring og oppdeling i tomannsbolig, Storgata 16

📍 Storgata 16 , 8480 ANDENES

Nøkkelinfo

Sakstype
Bruksendring
Bygningstype
Tomannsbolig
Bruksareal
146 m²
Boenheter
2
Kommune
Andøy
Fylke
Nordland - Nordlánnda
Gnr / Bnr
49 / 15
Saksnummer
2025/1320
Fase
Under behandling

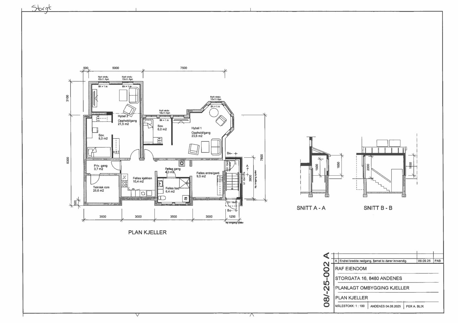
Om byggesaken

Bruksendring fra tilleggsdel til hoveddel i kjelleretasjen av en tomannsbolig på Storgata 16, med oppdeling av boenhet. Prosjektet omfatter etablering av ny inngang, fjerning av en lett trapp, og innsetting av fire store godkjente vinduer i kjelleren. Kjellertaket skal males med godkjent brannhemmende maling. Arealet i kjelleretasjen er ca. 145,6 m² fordelt på flere rom som teknisk rom, felles kjøkken, bad, gangarealer, to hybler og soverom. Bygget har en trapp og flere dører og vinduer som inngår i ombyggingen.

Produkter og materialer

Vinduer Store godkjente vinduer

Antall: 4

Store godkjente vinduer i kjeller, dimensjon ca. 10x11 (fra tegninger)

Innsetting av fire store godkjente vinduer i kjelleretasjen

Grunnarbeid Endring av inngangspartier

Arbeid med ny inngang og tilpasning av kjellerinngang

Grunnarbeid knyttet til ny inngang og trappefjerning

Dører Ny inngangsdør

Antall: 1

Ny inngangsdør til kjeller

Etablering av ny inngangsdør i kjelleretasjen

Tømrer Innvendige vegger og dører

Oppdeling av boenhet med nye vegger og dører i kjeller

Oppføring av nye vegger og dører for oppdeling av boenhet

Trapper Lett trapp fjernes

Antall: 1

Fjerning av en lett trapp i kjeller

Fjerning av eksisterende lett trapp i kjelleretasjen

Maling Brannhemmende maling

🧱 Godkjent brannhemmende maling

Maling av kjellertak med godkjent brannhemmende maling

Overflatebehandling av kjellertak med brannhemmende maling

Plantegning

Enebolig 145.6 m²

Etasje 0 145.6 m²

Rom Areal Vinduer Dører
Teknisk rom U01 25.6 m² 0 1
Felles kjøkken U02 10.4 m² 0 1
Felles bad U03 6.4 m² 0 2
Priv. gang U04 3.7 m² 0 1
Felles entre/gang U05 9.5 m² 0 2
Felles gang U06 4.3 m² 0 1
Sov. U07 9.0 m² 1 1
Hybel 2 U08 21.5 m² 3 1
Sov. U09 6.0 m² 1 1
Hybel 1 U10 23.6 m² 4 1

Hendelser

09.04.2026 Purring på svar
07.04.2026 Etterlyser svar
08.10.2025 Henvendelse angående nabomerknad
06.10.2025 Melding om mottatt søknad
23.09.2025 Svar på nabovarsel
19.09.2025 Søknad om tillatelse til tiltak
19.09.2025 Tegninger