NewConstruction Igangsettingstillatelse Tomannsbolig

Riving og nybygg av to boliger med hybelleiligheter i Barbugårdsveien 30, Arendal

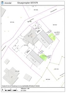
📍 Barbugårdsveien 30 , 4846 ARENDAL

Nøkkelinfo

Sakstype
Nybygg
Bygningstype
Tomannsbolig
Bruksareal
330 m²
Boenheter
2
Kommune
Arendal
Fylke
Agder
Gnr / Bnr
507 / 579
Saksnummer
2026/10775
Fase
Igangsettingstillatelse

Om byggesaken

Prosjektet omfatter riving av en eksisterende enebolig og oppføring av to nye eneboliger med hver sin hybelleilighet på eiendommen Barbugårdsveien 30 i Arendal. Hver bolig har et bruksareal på 164,8 m² fordelt på to etasjer, med bebygd areal på 90 m² per bolig. Boligene er i tre med saltak tekket med teglstein, og inkluderer carport og veranda/terrasse. Tomten består av tre matrikkelnummer som sammenføyes og deles i to nye boligtomter. Det er gitt tillatelse til endret plassering av boligene, som ligger lavere i terrenget enn dagens bolig og med god avstand til nabogrense. Prosjektet inkluderer grunnarbeid, riving, miljøsanering, mur- og tømrerarbeid, ventilasjon, rørleggerarbeid og uavhengig kontroll. Det foreligger også tillatelse til utvidet bruk av eksisterende avkjørsel for de nye boligene.

Produkter og materialer

Rekkverk Rekkverk på veranda/terrasse

🧱 Tre

Antall: 2

Rekkverk på veranda/terrasse over carport

Sikkerhetsrekkverk til veranda

Oppmåling Innmåling og utstikking

Antall: 1

Generering av koordinater for utstikking av bolig og kontrollmål av støpt såle

Oppmålingstjenester for prosjektet

Terrasse Veranda/terrasse over carport

🧱 Tre

Antall: 2

Veranda/terrasse på 18 m² over carport i hver bolig

Uteplass til to boliger

Mur Støping av såle og ringmur

🧱 Betong

Antall: 2

Støping av såle og ringmur for to nye boliger

Fundamentering av nye boliger

Riving Riving av eksisterende bolig

Antall: 1

Miljøsanering og kildesortering, levering til godkjent behandlingsanlegg

Riving og miljøsanering av eksisterende enebolig på eiendommen

Dører Ytterdører og innerdører

🧱 Tre

Antall: 18

Ytterdører og innerdører til to boliger, inkludert dører til sportsbod, bad og soverom

Dører til nye boliger

Grunnarbeid Planering, sprengning og masseutskifting

Antall: 1

Planlegging av grunnarbeid, vurdering av grunnforhold, masseutskifting, sprengning og sikringsarbeid

Grunnarbeid for to nye boliger på tomten

Tømrer Oppføring av boliger i tre

🧱 Tre

Antall: 2

To eneboliger med saltak tekket med teglstein, inkludert carport og veranda/terrasse

Bygging av to nye eneboliger med hybelleiligheter

Bad Membraner i våtrom

Antall: 2

Membraner i våtrom i to boliger

Våtromsarbeid i nye boliger

Ventilasjon Balansert ventilasjonsanlegg

Antall: 2

Prosjektering, montering og innkjøring av balansert ventilasjonsanlegg

Ventilasjon for nye boliger

Vinduer Fasadevindu og vinduer i stue/kjøkken

🧱 Tre

Antall: 19

Totalt 19 vinduer fordelt på to boliger, inkludert 3 vinduer i stue/kjøkken i hver etasje

Vinduer til nye boliger

VVS Rørleggerarbeider

Antall: 2

Rørleggerarbeider for to boliger

VVS-installasjoner i nye boliger

Grunnarbeid Miljøsanering

Antall: 1

Vurdering av avfallsfraksjoner og farlig avfall i forbindelse med riving

Miljøsanering i forbindelse med riving

Tak Saltak med teglstein

🧱 Teglstein

Antall: 2

Saltak tekket med teglstein på to boliger

Taktekking for nye boliger

Carport Carport under veranda

🧱 Tre

Antall: 2

Carport på 18 m² under veranda i hver bolig

Carport til to boliger

Garasjeport Garasjeport til carport

Antall: 2

Garasjeporter til carport under veranda i to boliger

Garasjeporter til carport

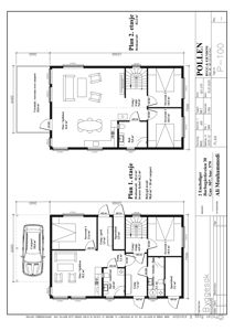
Plantegning

Enebolig 164.8 m²

Etasje 1 82.4 m²

Rom Areal Vinduer Dører
Stue / kjøkken 101 18.2 m² 3 1
Bad / vaskerom 102 4.8 m² 0 1
Gang 103 7.3 m² 0 2
Gang 104 3.1 m² 0 1
Gang / gard. 105 3.9 m² 0 1
Soverom 1 106 11.6 m² 1 1
Soverom 1 107 10.5 m² 1 1
Sportsbod 108 2.9 m² 1 1
Sportsbod 109 5.1 m² 1 1
Vaskerom / teknisk / Bad 110 5.1 m² 0 1
Carport 111 18.0 m² 0 0

Etasje 2 82.4 m²

Rom Areal Vinduer Dører
Stue / kjøkken 201 44.6 m² 3 1
Bad 202 5.8 m² 0 1
Gang / trapp 203 9.0 m² 0 2
Soverom 2 204 10.5 m² 1 1
Soverom 3 205 10.5 m² 1 1
Veranda / terrasse over carport 206 18.0 m² 0 1

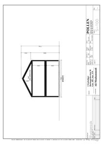
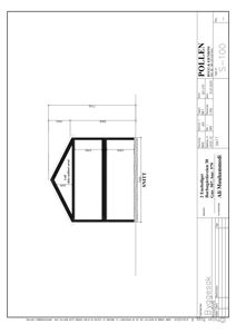
Fasader

Enebolig

Nordøst
Materiale
Tre
Taktype
Saltak
Takmat.
Tegl
Vinduer
3
Dører
1
Synlige etasjer
2
Sydøst
Materiale
Tre
Taktype
Saltak
Takmat.
Tegl
Vinduer
2
Dører
0
Synlige etasjer
2
Nordvest
Materiale
Tre
Taktype
Saltak
Takmat.
Tegl
Vinduer
4
Dører
1
Balkonger
1
Synlige etasjer
2
Sydvest
Materiale
Tre
Taktype
Saltak
Takmat.
Tegl
Vinduer
4
Dører
1
Synlige etasjer
2

Hendelser

15.04.2026 Vurdering av klage - 507/605/0/0 - Barbugårdsveien 30 - rive bygg- Bygge 2 boliger - Endret bruk av avkjørsel - Fradeling og sammenføyning av matrikkelenheter
10.04.2026 Svar - 507/579, 605 Barbugårdsveien 30
10.04.2026 507/579, 605 - Kommentarer til klage
09.04.2026 507/579, 605 - Vedrørende klage og eier/tiltakshaver
09.04.2026 Klage oversendes til eventuell kommentar - 507/605/0/0 - Barbugårdsveien 30 - rive bygg- Bygge 2 boliger - Endret bruk av avkjørsel - Fradeling og sammenføyning av matrikkelenheter
09.04.2026 507/605 - Ber om å få oversendt klagen
08.04.2026 Klage på vedtak i plan og byggesak - rive bygg- Bygge 2 boliger - Endret bruk av avkjørsel - Fradeling og sammenføyning av matrikkelenheter